Luxueus duplexappartement met schitterende open zichten!
€ 575.000
Een pand van Astrid Immobilia
Overzicht
- 136 m² bewoonbaar
- 151 m² grond
- 3 Slaapkamer(s)
- 2 Badkamer(s)
- 1 Toilet(ten)
Beschrijving
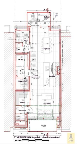
Dit prachtig dakappartement biedt een ongeëvenaarde combinatie van luxe, comfort en een doordachte indeling. Gelegen in een uiterst rustige en recente klein residentie vlakbij zee. Het appartement ligt alleen op de derde en duplex-verdieping, dus privacy gegarandeerd!
Indeling: de woonkamer, met grote raampartijen en een ingebouwde haard, straalt een warme en moderne sfeer uit. Aangrenzend vindt u de volledig uitgeruste open keuken die is afgewerkt met hoogwaardige materialen en voorzien van de nieuwste toestellen, ideaal voor culinaire liefhebbers. Verder vinden we op dit verdiep: een ruime berging, apart toilet en een volledig ingebouwde wellness met finse sauna (+Infrarood therapie korte golf), douche en hammam! Op de bovenste verdieping zijn er drie slaapkamers, waarvan de master bedroom direct verbonden is met een prachtige dressing die voldoende opbergruimte biedt. De luxueuze badkamer is uitgerust met een inloopdouche en een stijlvol badkamermeubel en er is een apart gastentoilet aanwezig.
Wat dit appartement echt bijzonder maakt, zijn de twee terrassen die elk een prachtig open zicht bieden. Hier kunt u genieten van rust en privacy, zowel in de ochtendzon als tijdens een sfeervolle avond. De ingebouwde haard in de leefruimte versterkt de warme en uitnodigende uitstraling van het appartement. Het geheel is afgewerkt met hoogwaardige materialen, van de vloeren tot de ingebouwde verlichting, en voldoet aan de nieuwste energienormen, waardoor u geniet van een laag energieverbruik en maximaal comfort. Het appartement beschikt ook over een private parkeerplaats en een extra berging (niet in de prijs begrepen), wat bijdraagt aan de praktische voordelen.
De ligging combineert het beste van beide werelden: een rustige groene omgeving en toch in de nabijheid van winkels, scholen en openbaar vervoer. Deze woning is perfect voor wie op zoek is naar een combinatie van luxe, comfort en een uitstekende locatie. Aarzel niet om contact met ons op te nemen voor meer informatie of een bezichtiging. Dit is uw kans om een uitzonderlijk appartement te ontdekken dat aan al uw verwachtingen voldoet.
Indeling: de woonkamer, met grote raampartijen en een ingebouwde haard, straalt een warme en moderne sfeer uit. Aangrenzend vindt u de volledig uitgeruste open keuken die is afgewerkt met hoogwaardige materialen en voorzien van de nieuwste toestellen, ideaal voor culinaire liefhebbers. Verder vinden we op dit verdiep: een ruime berging, apart toilet en een volledig ingebouwde wellness met finse sauna (+Infrarood therapie korte golf), douche en hammam! Op de bovenste verdieping zijn er drie slaapkamers, waarvan de master bedroom direct verbonden is met een prachtige dressing die voldoende opbergruimte biedt. De luxueuze badkamer is uitgerust met een inloopdouche en een stijlvol badkamermeubel en er is een apart gastentoilet aanwezig.
Wat dit appartement echt bijzonder maakt, zijn de twee terrassen die elk een prachtig open zicht bieden. Hier kunt u genieten van rust en privacy, zowel in de ochtendzon als tijdens een sfeervolle avond. De ingebouwde haard in de leefruimte versterkt de warme en uitnodigende uitstraling van het appartement. Het geheel is afgewerkt met hoogwaardige materialen, van de vloeren tot de ingebouwde verlichting, en voldoet aan de nieuwste energienormen, waardoor u geniet van een laag energieverbruik en maximaal comfort. Het appartement beschikt ook over een private parkeerplaats en een extra berging (niet in de prijs begrepen), wat bijdraagt aan de praktische voordelen.
De ligging combineert het beste van beide werelden: een rustige groene omgeving en toch in de nabijheid van winkels, scholen en openbaar vervoer. Deze woning is perfect voor wie op zoek is naar een combinatie van luxe, comfort en een uitstekende locatie. Aarzel niet om contact met ons op te nemen voor meer informatie of een bezichtiging. Dit is uw kans om een uitzonderlijk appartement te ontdekken dat aan al uw verwachtingen voldoet.
Energie
![]() |
- EPC Certificaat: 35002-G-DBA_2017/39/A001/D01/SD005
- Energieverbruik: 64 kWh/m²/jaar
- E-peil: E0
- Verwarming: Gas
- Beglazing: Standaard dubbel
Op de kaart

Financieel
Prijs | |
---|---|
Kadastraal inkomen (niet geïndexeerd) | € 1.179 |
Berekening kosten
Je aankoopkosten? Die heb je snel berekent via de knop hieronder.
Bijkomende info
Gebouw
Bouwjaar | 2022 |
---|---|
Staat | Zo goed als nieuw |
Bouwcertificaat | Nee |
Bewoonbaar (m²) | 136 |
Verdieping | 3 |
Badkamers | 2 |
Slaapkamers | 3 |
Verdiepingen | 4 |
Garages | 0 |
Parkeerplaatsen | 0 |
Toiletten | 1 |
Faciliteiten
Keuken uitrusting | Luxueus uitgerust |
---|---|
Beglazing | Standaard dubbel |
Brandstof primaire verwarming | Gas |
Septische tank | Nee |
Perceel
Overstromingsgevoelig | Geen |
---|---|
P-score | C |
G-score | C |
Totale oppervlakte (m²) | 151 |
Bebouwde oppervlakte (m²) | 0 |
Oppervlakte terras (m²) | 0 |
Vergunning
Verkavelingsvergunning | Geen beschikbaar |
---|
Uitrusting
Investeringspand | Nee |
---|---|
Parking | Nee |
Garage | Nee |
Opslagruimte | Ja |
Terras | Ja |
Lift | Ja |
Rioolaansluiting | Nee |
Gasaansluiting | Ja |
Wateraansluiting | Ja |
Elektriciteitsaansluiting | Ja |
Internetaansluiting | Nee |
Telefoonaansluiting | Nee |
Zonnepanelen | Nee |
Zonneboiler | Nee |
Alarm | Nee |
Videofoon | Nee |
Grondwaterput | Nee |
Appartementsblok
Aantal verdiepingen | 4 |
---|---|
Lift | Ja |
Intercom | Nee |
Een pand van
Astrid Immobilia
Astrid Immobilia - wonen in Bredene en daarrond
Astrid Immobilia, al veertig jaar aanwezig in Bredene, is een familiezaak die sinds 2017 in handen is van Matthias Maelfeyt, zaakvoerder, en zijn echtgenote, Eva Depuydt. Een uiterst sterk koppel die elke klant een persoonlijke service garandeert!
Onze unieke commerciële ligging met zonnige etalage en marktkennis, én daarbovenop de unieke combinatie van Interhome en Astrid Immobilia in één kantoor zorgt voor een ideale mix! Wij krijgen allerlei klanten over de vloer met uiteenlopende vragen, wat zorgt voor een stevige basis aan kopers en huurders.
Kom gerust langs voor een vrijblijvend gesprek!
Kapelstraat 171/301
Leer meer over vastgoed
11 June 2025
Huis kopen met bouwovertreding? Dit moet je weten
11 May 2025
Renoveren? Vraag je Mijn VerbouwPremie aan
22 April 2025
Je allereerste renovatieproject selecteren én budgetteren: met de praktische hulp van Spotto
17 February 2025