Luxueus duplexappartement met schitterende open zichten!
€ 575.000
Kapelstraat 171/301 - 8450 BREDENE
Een pand van Astrid Immobilia
Overzicht
- 136 m² bewoonbaar
- 151 m² grond
- 3 Slaapkamer(s)
- 2 Badkamer(s)
- 1 Toilet(ten)
Beschrijving
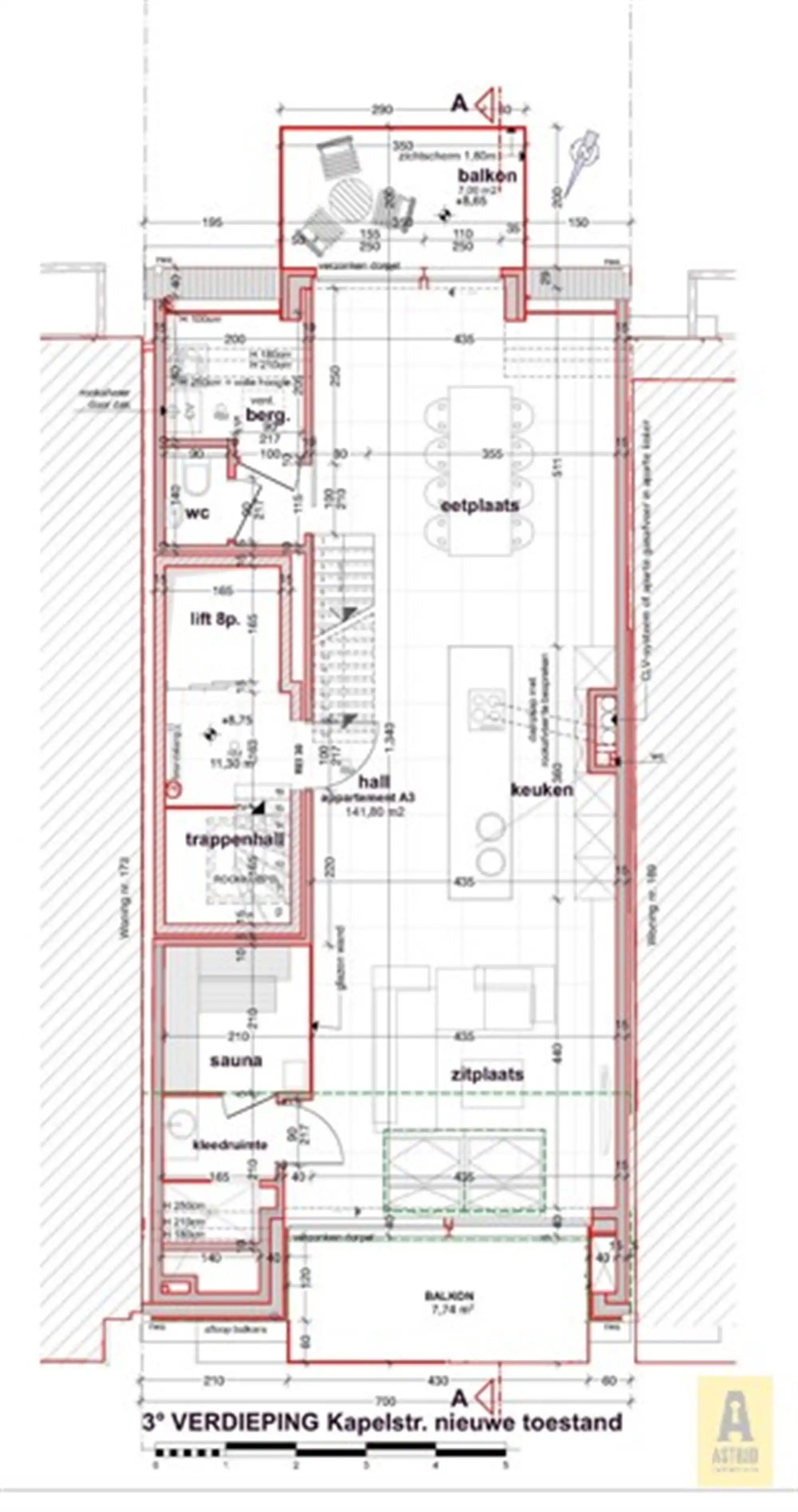
Dit prachtig dakappartement biedt een ongeëvenaarde combinatie van luxe, comfort en een doordachte indeling. Gelegen in een uiterst rustige en recente klein residentie vlakbij zee. Het appartement ligt alleen op de derde en duplex-verdieping, dus privacy gegarandeerd!
Indeling: de woonkamer, met grote raampartijen en een ingebouwde haard, straalt een warme en moderne sfeer uit. Aangrenzend vindt u de volledig uitgeruste open keuken die is afgewerkt met hoogwaardige materialen en voorzien van de nieuwste toestellen, ideaal voor culinaire liefhebbers. Verder vinden we op dit verdiep: een ruime berging, apart toilet en een volledig ingebouwde wellness met finse sauna (+Infrarood therapie korte golf), douche en hammam! Op de bovenste verdieping zijn er drie slaapkamers, waarvan de master bedroom direct verbonden is met een prachtige dressing die voldoende opbergruimte biedt. De luxueuze badkamer is uitgerust met een inloopdouche en een stijlvol badkamermeubel en er is een apart gastentoilet aanwezig.
Wat dit appartement echt bijzonder maakt, zijn de twee terrassen die elk een prachtig open zicht bieden. Hier kunt u genieten van rust en privacy, zowel in de ochtendzon als tijdens een sfeervolle avond. De ingebouwde haard in de leefruimte versterkt de warme en uitnodigende uitstraling van het appartement. Het geheel is afgewerkt met hoogwaardige materialen, van de vloeren tot de ingebouwde verlichting, en voldoet aan de nieuwste energienormen, waardoor u geniet van een laag energieverbruik en maximaal comfort. Het appartement beschikt ook over een private parkeerplaats en een extra berging (niet in de prijs begrepen), wat bijdraagt aan de praktische voordelen.
De ligging combineert het beste van beide werelden: een rustige groene omgeving en toch in de nabijheid van winkels, scholen en openbaar vervoer. Deze woning is perfect voor wie op zoek is naar een combinatie van luxe, comfort en een uitstekende locatie. Aarzel niet om contact met ons op te nemen voor meer informatie of een bezichtiging. Dit is uw kans om een uitzonderlijk appartement te ontdekken dat aan al uw verwachtingen voldoet.
Indeling: de woonkamer, met grote raampartijen en een ingebouwde haard, straalt een warme en moderne sfeer uit. Aangrenzend vindt u de volledig uitgeruste open keuken die is afgewerkt met hoogwaardige materialen en voorzien van de nieuwste toestellen, ideaal voor culinaire liefhebbers. Verder vinden we op dit verdiep: een ruime berging, apart toilet en een volledig ingebouwde wellness met finse sauna (+Infrarood therapie korte golf), douche en hammam! Op de bovenste verdieping zijn er drie slaapkamers, waarvan de master bedroom direct verbonden is met een prachtige dressing die voldoende opbergruimte biedt. De luxueuze badkamer is uitgerust met een inloopdouche en een stijlvol badkamermeubel en er is een apart gastentoilet aanwezig.
Wat dit appartement echt bijzonder maakt, zijn de twee terrassen die elk een prachtig open zicht bieden. Hier kunt u genieten van rust en privacy, zowel in de ochtendzon als tijdens een sfeervolle avond. De ingebouwde haard in de leefruimte versterkt de warme en uitnodigende uitstraling van het appartement. Het geheel is afgewerkt met hoogwaardige materialen, van de vloeren tot de ingebouwde verlichting, en voldoet aan de nieuwste energienormen, waardoor u geniet van een laag energieverbruik en maximaal comfort. Het appartement beschikt ook over een private parkeerplaats en een extra berging (niet in de prijs begrepen), wat bijdraagt aan de praktische voordelen.
De ligging combineert het beste van beide werelden: een rustige groene omgeving en toch in de nabijheid van winkels, scholen en openbaar vervoer. Deze woning is perfect voor wie op zoek is naar een combinatie van luxe, comfort en een uitstekende locatie. Aarzel niet om contact met ons op te nemen voor meer informatie of een bezichtiging. Dit is uw kans om een uitzonderlijk appartement te ontdekken dat aan al uw verwachtingen voldoet.
Energie
![]() |
- EPC Certificaat: 35002-G-DBA_2017/39/A001/D01/SD005
- Energieverbruik: 64 kWh/m²/jaar
- E-peil: E0
- Verwarming: Gas
- Beglazing: Standaard dubbel
Financieel
| Prijs | |
|---|---|
| Kadastraal inkomen (niet geïndexeerd) | € 1.179 |
| Kadastraal inkomen (geïndexeerd) | € 0 |
Berekening kosten
Je aankoopkosten? Die heb je snel berekend via de knop hieronder.
Bijkomende info
Gebouw
| Bouwjaar | 2022 |
|---|---|
| Bouwcertificaat | Nee |
| Bewoonbaar (m²) | 136 |
| Verdieping | 3 |
| Badkamers | 2 |
| Slaapkamers | 3 |
| Verdiepingen | 4 |
| Garages | 0 |
| Parkeerplaatsen | 0 |
| Doucheruimtes | 0 |
| Toiletten | 1 |
Faciliteiten
| Keuken uitrusting | Luxueus uitgerust |
|---|---|
| Materiaal ramenomlijstingen | Aluminium |
| Beglazing | Standaard dubbel |
| Brandstof primaire verwarming | Gas |
| Elektrisch keuringsattest | Ja |
Perceel
| Overstromingsgevoelig | Geen |
|---|---|
| P-score | C |
| G-score | C |
| Voorkeurrecht | Nee |
| Totale oppervlakte (m²) | 151 |
| Bebouwde oppervlakte (m²) | 0 |
| Tuin oppervlakte (m²) | 0 |
| Oppervlakte terras (m²) | 0 |
Vergunning
| Vergunning | Vergunning beschikbaar |
|---|---|
| Verkavelingsvergunning | Geen beschikbaar |
Uitrusting
| Investeringspand | Nee |
|---|---|
| Geschikt voor praktijk | Nee |
| Parking | Nee |
| Garage | Nee |
| Thuiskantoor | Nee |
| Kelder | Nee |
| Zolder | Nee |
| Tuin | Nee |
| Terras | Ja |
| Lift | Ja |
| Rioolaansluiting | Nee |
| Gasaansluiting | Ja |
| Wateraansluiting | Ja |
| Elektriciteitsaansluiting | Ja |
| TV aansluiting | Nee |
| Internetaansluiting | Nee |
| Telefoonaansluiting | Nee |
Appartementsblok
| Aantal verdiepingen | 4 |
|---|---|
| Lift | Ja |
Een pand van
Astrid Immobilia
Astrid Immobilia - wonen in Bredene en daarrond
Astrid Immobilia, al veertig jaar aanwezig in Bredene, is een familiezaak die sinds 2017 in handen is van Matthias Maelfeyt, zaakvoerder, en zijn echtgenote, Eva Depuydt. Een uiterst sterk koppel die elke klant een persoonlijke service garandeert!
Onze unieke commerciële ligging met zonnige etalage en marktkennis, én daarbovenop de unieke combinatie van Interhome en Astrid Immobilia in één kantoor zorgt voor een ideale mix! Wij krijgen allerlei klanten over de vloer met uiteenlopende vragen, wat zorgt voor een stevige basis aan kopers en huurders.
Kom gerust langs voor een vrijblijvend gesprek!
BREDENE Kapelstraat 171 301
Leer meer over vastgoed
01 March 2026
Wanneer heb ik een bouwvergunning of omgevingsvergunning nodig?
17 February 2026
Hoe breng ik een bod uit op een woning?
24 November 2025
Uitgezocht voor jouw gemeente: Hoeveel stijgt de waarde van je woning door een renovatie?
22 October 2025
