Nieuw
Recent appartement aan Spuikom Bredene
€ 195.000
Een pand van Agence Vanbeckevoort
Favoriet
Jouw zoektocht
Jouw scoretabel voor dit pand
Aan het laden...
Jouw geplande bezichtigingen
Aan het laden...
Overzicht
- 70 m² bewoonbaar
- 2 Slaapkamer(s)
- 1 Badkamer(s)
- 1 Toilet(ten)
Overstromingsgevaar gebouw
Overstromingsgevaar perceel
Beschrijving
2-slaapkamer appartement (70m²) op de eerste verdieping in "Residentie Spuikom" - gelegen op een idyllische woonlocatie nabij de Spuikom - dagdagelijkse faciliteiten liggen op wandel- en fietsafstand (shoppingcentra, scholen, bakker, sportdomeinen, zwembad, apotheek, frituur, ...). Ook het openbaar vervoer stopt op 400 meter van de residentie. Het appartement is verhuurd aan een correcte huurder ( geindexeerd 842 euro/maand).
Een blik binnenin:
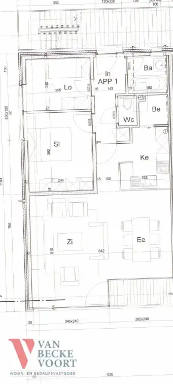
Je betreedt het appartement via de inkomhal die leidt tot de leefruimte (33m²) met rechtstreekse toegang tot het zonnig terras - halfopen keuken ingericht met spoelbak, vaatmachine, kookfornuis, dampkap, koelkast en heteluchtoven en aansluitend een nuttige berging met aansluiting voor een wasmachine. Vervolgens vinden we 2 slaapkamers (11m² en 7m²) - een badkamer voorzien van ligbad, lavabomeubel en apart toilet.
Op het gelijkvloers bevinden zich de gemeenschappelijke fietsenberging en vuilnislokaal.
Troeven:
- Moderne bouwstijl met veel lichtinval;
- Elektriciteit conform aan AREI;
- Gebouw is eenvoudig te bereiken met openbaar vervoer, wagen, fiets en te voet;
- Uitstekende verbinding naar autostrade en kustbaan;
- Ideaal als investeringspand (momenteel verhuurd);
- Terras aanwezig;
- Fietsenberging;
- Recent gebouw en goed onderhouden (bouwjaar d.d. 2005);
- Er kan een autostandplaats in het gebouw aangekocht worden (vraagprijs 12.500 euro).
Ideaal als permanente woning, tweede verblijf of slimme investering. De ligging combineert rust en groen met uitstekende connectiviteit.
Voor een exclusieve bezichtiging of meer informatie, kan u contact opnemen met ons kantoor via mail of 059 80 99 20.
Een blik binnenin:
Je betreedt het appartement via de inkomhal die leidt tot de leefruimte (33m²) met rechtstreekse toegang tot het zonnig terras - halfopen keuken ingericht met spoelbak, vaatmachine, kookfornuis, dampkap, koelkast en heteluchtoven en aansluitend een nuttige berging met aansluiting voor een wasmachine. Vervolgens vinden we 2 slaapkamers (11m² en 7m²) - een badkamer voorzien van ligbad, lavabomeubel en apart toilet.
Op het gelijkvloers bevinden zich de gemeenschappelijke fietsenberging en vuilnislokaal.
Troeven:
- Moderne bouwstijl met veel lichtinval;
- Elektriciteit conform aan AREI;
- Gebouw is eenvoudig te bereiken met openbaar vervoer, wagen, fiets en te voet;
- Uitstekende verbinding naar autostrade en kustbaan;
- Ideaal als investeringspand (momenteel verhuurd);
- Terras aanwezig;
- Fietsenberging;
- Recent gebouw en goed onderhouden (bouwjaar d.d. 2005);
- Er kan een autostandplaats in het gebouw aangekocht worden (vraagprijs 12.500 euro).
Ideaal als permanente woning, tweede verblijf of slimme investering. De ligging combineert rust en groen met uitstekende connectiviteit.
Voor een exclusieve bezichtiging of meer informatie, kan u contact opnemen met ons kantoor via mail of 059 80 99 20.
Energie
![]() |
- EPC Certificaat: 20200211-0002246772-RES-2
- Energieverbruik: 381 kWh/m²/jaar
- E-peil: E0
- Verwarming: Elektriciteit
- Beglazing: Standaard dubbel
Extra budget nodig voor je renovatie?
De overheid helpt je dit pand energetisch te renoveren! Hieronder zie je het premiebedrag dat je mogelijks van de overheid krijgt.
Het huidige EPC-label is:

Op de kaart

Financieel
| Prijs | |
|---|---|
| Kadastraal inkomen (niet geïndexeerd) | € 698 |
Berekening kosten
Je aankoopkosten? Die heb je snel berekend via de knop hieronder.
Bijkomende info
Gebouw
| Bouwjaar | 2005 |
|---|---|
| Staat | Goed onderhouden |
| Bouwcertificaat | Nee |
| Bewoonbaar (m²) | 70 |
| Verdieping | 1 |
| Badkamers | 1 |
| Slaapkamers | 2 |
| Verdiepingen | 3 |
| Garages | 0 |
| Parkeerplaatsen | 0 |
| Toiletten | 1 |
Faciliteiten
| Keuken uitrusting | Goed uitgerust |
|---|---|
| Beglazing | Standaard dubbel |
| Brandstof primaire verwarming | Elektriciteit |
| Septische tank | Ja |
Perceel
| Overstromingsgevoelig | Geen |
|---|---|
| P-score | D |
| G-score | D |
| Bebouwde oppervlakte (m²) | 0 |
| Oppervlakte terras (m²) | 0 |
Vergunning
| Verkavelingsvergunning | Geen beschikbaar |
|---|
Uitrusting
| Investeringspand | Nee |
|---|---|
| Parking | Nee |
| Garage | Nee |
| Opslagruimte | Ja |
| Terras | Ja |
| Lift | Ja |
| Rioolaansluiting | Ja |
| Gasaansluiting | Nee |
| Wateraansluiting | Ja |
| Elektriciteitsaansluiting | Ja |
| Internetaansluiting | Nee |
| Telefoonaansluiting | Nee |
| Zonnepanelen | Nee |
| Zonneboiler | Nee |
| Alarm | Nee |
| Videofoon | Nee |
| Grondwaterput | Nee |
Appartementsblok
| Aantal verdiepingen | 3 |
|---|---|
| Lift | Ja |
| Intercom | Nee |
Een pand van
Agence Vanbeckevoort
Vanbeckevoort - Immo Oostende
Al drie generaties lang schuimt de familie Vanbeckevoort het vastgoedlandschap in Oostende af. Met bijzondere voorliefde voor bedrijfs- en residentiële panden bouwde het immo-kantoor een sterke expertise uit. Verhuren, verkopen, overnemen of een pand beschikbaar? Vanbeckevoort gaat voluit voor uw dossier. Van marktconforme schatting en de zoektocht naar de juiste kandidaat tot het opstellen en ondertekenen van het contract. Zodat uw vastgoeddromen maximale zuurstof krijgen.
Spuikomlaan 7 bus 0101
Leer meer over vastgoed
23 March 2026
Op Spotto zoeken als een pro: 10 slimme tips
21 March 2026
Hoeveel kan ik lenen om een huis te kopen?
01 March 2026
Wanneer heb ik een bouwvergunning of omgevingsvergunning nodig?
17 February 2026


