Stijlvolle, halfopen nieuwbouwwoning met oprit en grote, zonnige tuin!
€ 394.000
Een pand van Agence Eeckhout
Favoriet
Jouw zoektocht
Jouw scoretabel voor dit pand
Aan het laden...
Jouw geplande bezichtigingen
Aan het laden...
Overzicht
- 338 m² grond
- 3 Slaapkamer(s)
- 1 Badkamer(s)
- 2 Toilet(ten)
- 1 Tuin
Overstromingsgevaar gebouw
Overstromingsgevaar perceel
Beschrijving
Deze halfopen bebouwing is gelegen aan de Blauwe Sluis in Bredene, op een gunstige ligging met een vlotte bereikbaarheid richting centrum, kust en omliggende gemeenten.
Achteraan geniet je van volledige rust: de woning paalt aan open velden, wat zorgt voor een prachtig, weids uitzicht en een groot gevoel van ruimte en privacy.
Deze nieuwbouwwoning is zeer energiezuinig (E-peil 30) en is ingedeeld als volgt:
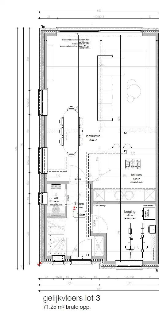
- gelijkvloers: inkomhal, grote (fietsen)berging, apart toilet, lichtrijke woonkamer met open, geïnstalleerde keuken en diepe, zonnige tuin;
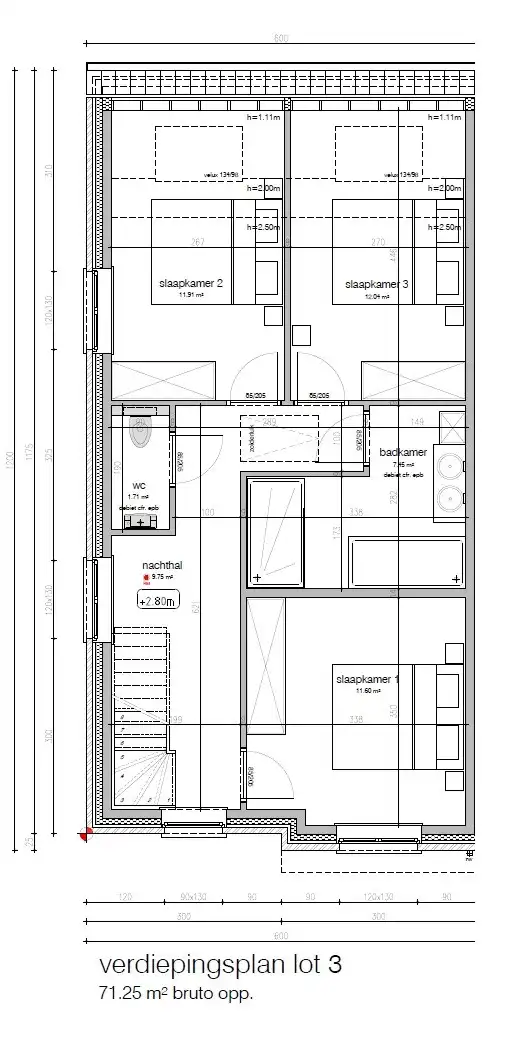
- eerste verdieping: nachthal, 3 volwaardige slaapkamers, apart toilet en badkamer.
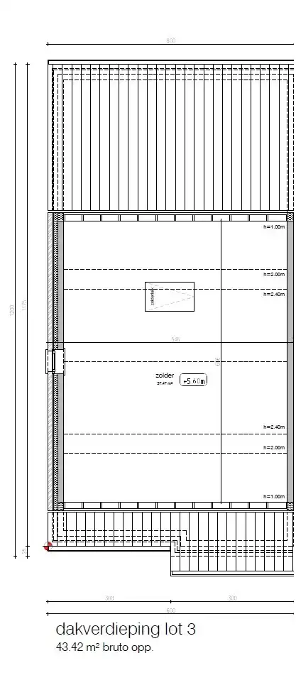
- zolder
De koper heeft de mogelijk om, mits meerprijs, de zolder volledig te laten afwerken door de bouwheer (inclusief het doortrekken van de trap).
Aan de voorzijde is er een private oprit. Daarnaast is er (gratis) parkeergelegenheid in de straat.
Deze woning is praktisch ingedeeld met oog voor licht, ruimte en energiezuinig wonen. Dankzij de halfopen structuur geniet je bovendien van extra privacy én veel natuurlijk lichtinval!
De koper heeft deels nog inspraak in de stijl en afwerking van de woning voor zover deze zaken nog niet werden vastgelegd door vergunning of bestelling van materialen.
De vermelde prijs is exclusief BTW en andere kosten. Contacteer ons voor een gedetailleerde prijsberekening!
Achteraan geniet je van volledige rust: de woning paalt aan open velden, wat zorgt voor een prachtig, weids uitzicht en een groot gevoel van ruimte en privacy.
Deze nieuwbouwwoning is zeer energiezuinig (E-peil 30) en is ingedeeld als volgt:
- gelijkvloers: inkomhal, grote (fietsen)berging, apart toilet, lichtrijke woonkamer met open, geïnstalleerde keuken en diepe, zonnige tuin;
- eerste verdieping: nachthal, 3 volwaardige slaapkamers, apart toilet en badkamer.
- zolder
De koper heeft de mogelijk om, mits meerprijs, de zolder volledig te laten afwerken door de bouwheer (inclusief het doortrekken van de trap).
Aan de voorzijde is er een private oprit. Daarnaast is er (gratis) parkeergelegenheid in de straat.
Deze woning is praktisch ingedeeld met oog voor licht, ruimte en energiezuinig wonen. Dankzij de halfopen structuur geniet je bovendien van extra privacy én veel natuurlijk lichtinval!
De koper heeft deels nog inspraak in de stijl en afwerking van de woning voor zover deze zaken nog niet werden vastgelegd door vergunning of bestelling van materialen.
De vermelde prijs is exclusief BTW en andere kosten. Contacteer ons voor een gedetailleerde prijsberekening!
Energie
![]() |
- E-peil: E30
- Beglazing: Hoog efficient dubbel
Op de kaart

Financieel
| Prijs | |
|---|---|
| Kadastraal inkomen (niet geïndexeerd) | € 0 |
| Kadastraal inkomen (geïndexeerd) | € 0 |
Bijkomende info
Gebouw
| Bouwjaar | 2026 |
|---|---|
| Staat | Goed onderhouden |
| Is beschermd | Nee |
| Badkamers | 1 |
| Slaapkamers | 3 |
| Verdiepingen | 3 |
| Parkeerplaatsen | 2 |
| Opslagruimtes | 1 |
| Toiletten | 2 |
Ruimtes
| Opbergruimte | 7.7 m² |
|---|
Faciliteiten
| Keuken | Open keuken |
|---|---|
| Keuken uitrusting | Goed uitgerust |
| Materiaal ramenomlijstingen | PVC |
| Beglazing | Hoog efficient dubbel |
| Luiken | Nee |
| Primaire verwarmingsbron | Bodemwater warmtepomp (geothermisch) |
Perceel
| Overstromingsgevoelig | Geen |
|---|---|
| P-score | D |
| G-score | D |
| Voorkeurrecht | Nee |
| Totale oppervlakte (m²) | 338 |
| Oriëntatie tuin | Zuidwest |
Vergunning
| Verkavelingsvergunning | Vergunning beschikbaar |
|---|---|
| Bouwovertreding dagvaardiging | Geen |
| Type gebied | Stedelijk |
Uitrusting
| Meerdere eigenaars | Nee |
|---|---|
| Geschikt als kangoeroewoning | Nee |
| Geschikt voor rolstoelgebruikers | Nee |
| Geschikt voor praktijk | Nee |
| Volledig onderkelderd | Nee |
| Parking | Ja |
| Garage | Nee |
| Thuiskantoor | Nee |
| Kelder | Nee |
| Zolder | Nee |
| Opslagruimte | Ja |
| Tuin | Ja |
| Terras | Nee |
| Lift | Nee |
| Rioolaansluiting | Ja |
| Gasaansluiting | Nee |
| Wateraansluiting | Ja |
| Elektriciteitsaansluiting | Ja |
| TV aansluiting | Ja |
| Internetaansluiting | Ja |
| Zonnepanelen | Ja |
| Zonneboiler | Nee |
| Alarm | Nee |
| Zwembad | Nee |
| Jacuzzi | Nee |
| Toonzaal | Nee |
| Ventilatie | Ja |
Een pand van
Agence Eeckhout
Een zee aan vastgoedkennis!
Vastgoed verkopen (of kopen) is een belangrijke en emotionele stap in het leven. Daar zijn wij ons als specialist elke dag van bewust. Dat is nog maar één van de redenen waarom we uw dossier op een heel persoonlijke manier behandelen, en dat al sinds 1993. In zee gaan met Agence Eeckhout om uw vastgoed te verkopen betekent professionele begeleiding, transparantie en afhandeling met voldoening. Eén aanspreekpunt begeleidt u op een gedegen manier doorheen alle fases van het project. Onze agence in Oostende ligt in het hart van de bruisende kuststad. Daarnaast openden we een nieuw kantoor in het rustiger gelegen Bredene. Onze kantoren vormen een uitstekende uitvalsbasis voor wie vastgoed wenst te kopen in Oostende, Bredene en zijn ruime omgeving. Onze uitgestrekte etalages vormen de ideale start voor de verkoop van uw eigendom.
SLUI3
Leer meer over vastgoed
23 March 2026
Op Spotto zoeken als een pro: 10 slimme tips
21 March 2026
Hoeveel kan ik lenen om een huis te kopen?
01 March 2026
Wanneer heb ik een bouwvergunning of omgevingsvergunning nodig?
17 February 2026
