Jouw zoektocht
Jouw scoretabel voor dit pand
Aan het laden...
Jouw geplande bezichtigingen
Aan het laden...
Overzicht
- 118 m² grond
- 3 Slaapkamer(s)
- 1 Badkamer(s)
- 3 Toilet(ten)
- 1 Tuin
Beschrijving
Prachtige nieuwbouwwoning (LOT 1 IS VERKOCHT) gelegen op slechts 100m van de spuikom.
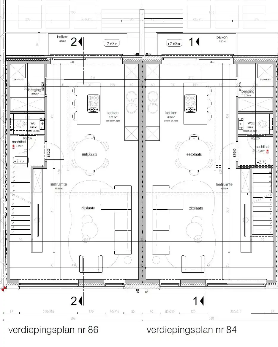
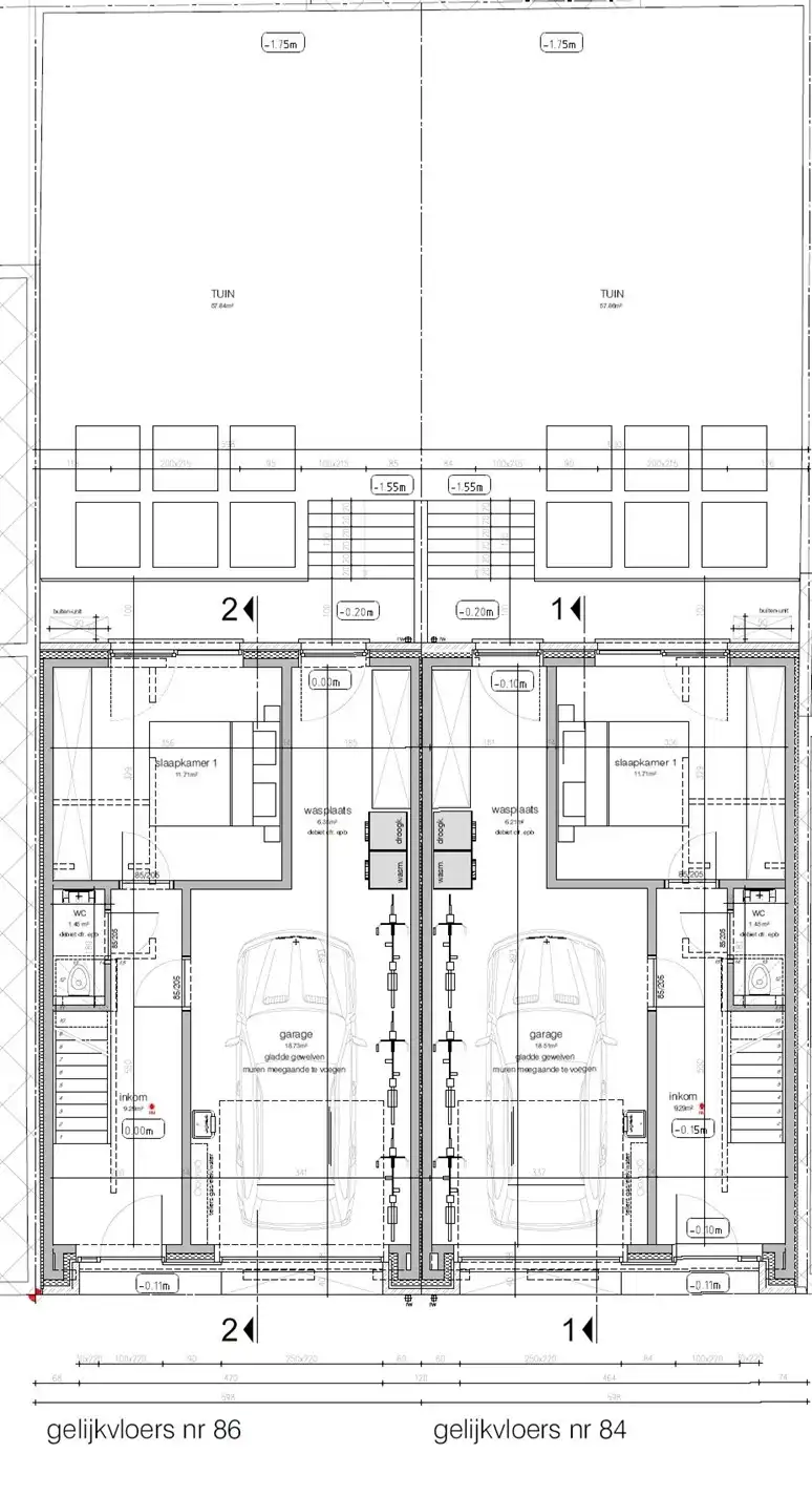
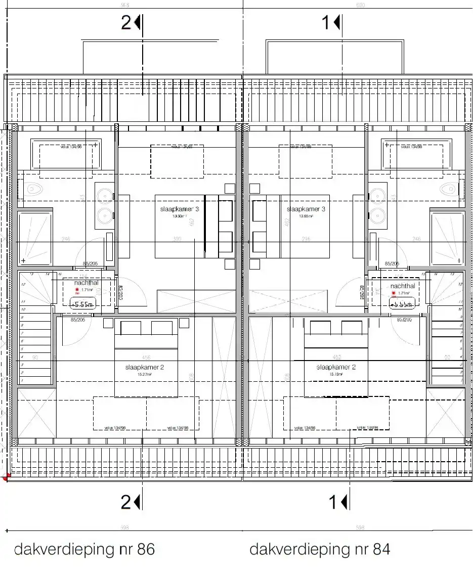
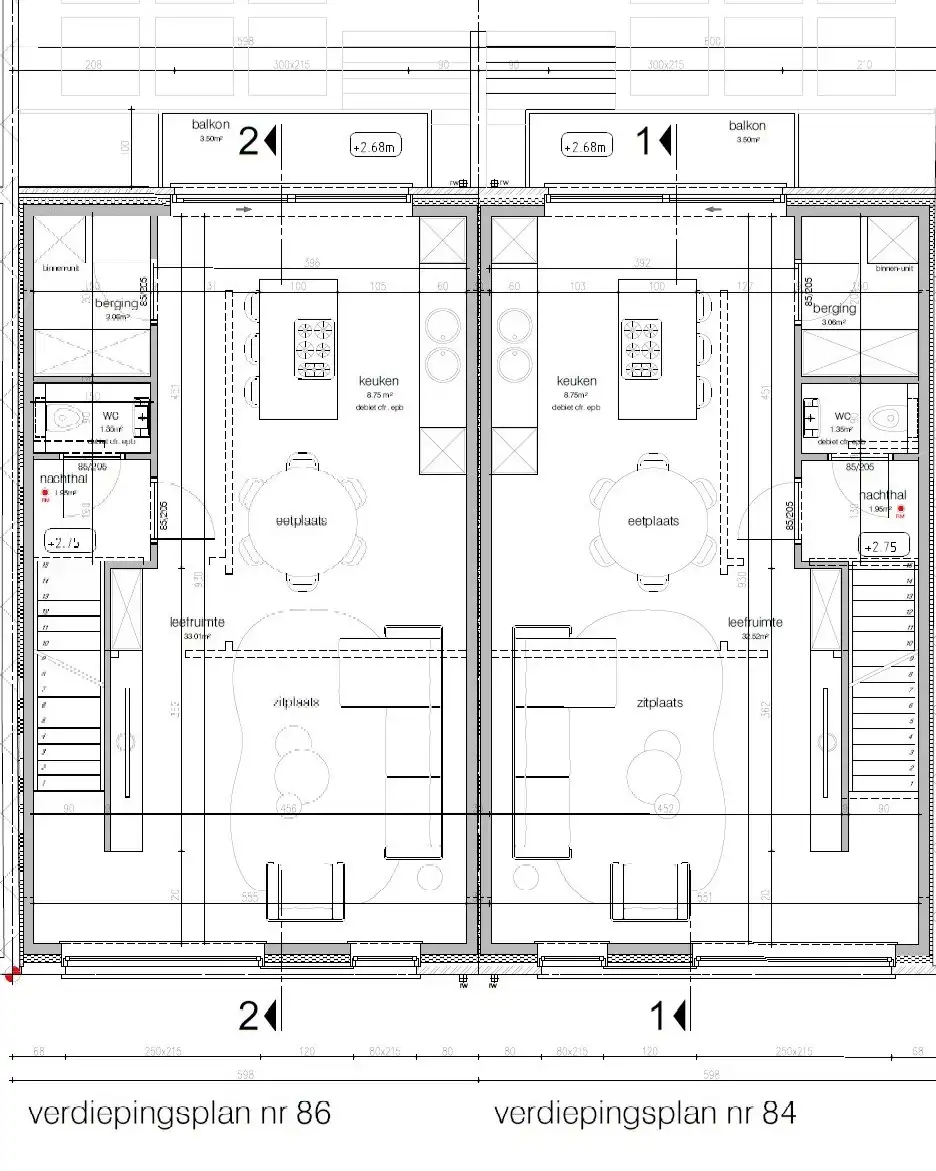
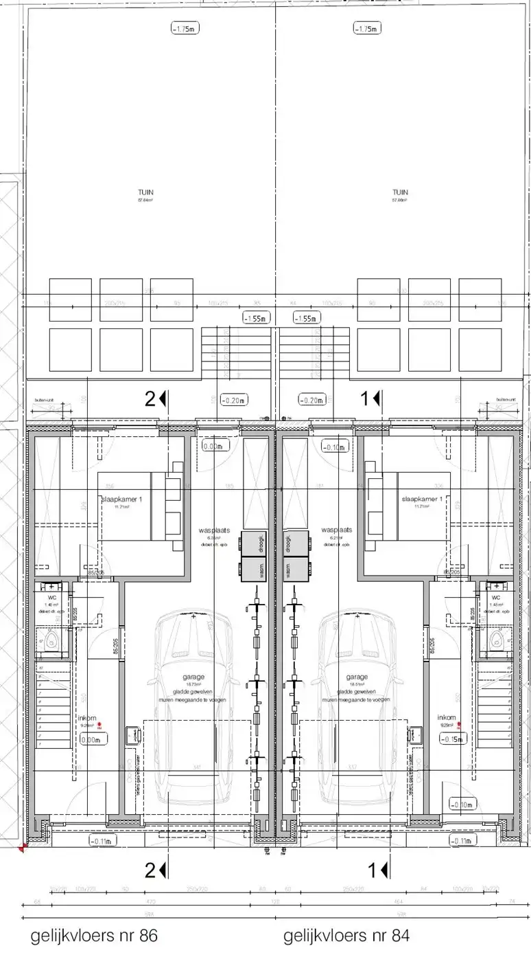
Indeling (LOT 2):
Inkomhall, 3 toiletten, garage met wasplaats, woonkamer, open keuken, balkon, berging, 3 slaapkamers, badkamer met ligbad en douche, zonnige tuin.
- KEUZE IN AFWERKING NOG MOGELIJK.
- E-peil 30
- Zonnepanelen
- Vloerverwarming
Indeling (LOT 2):
Inkomhall, 3 toiletten, garage met wasplaats, woonkamer, open keuken, balkon, berging, 3 slaapkamers, badkamer met ligbad en douche, zonnige tuin.
- KEUZE IN AFWERKING NOG MOGELIJK.
- E-peil 30
- Zonnepanelen
- Vloerverwarming
Energie
- E-peil: E30
- Beglazing: Hoog efficient driedubbel
Op de kaart

Financieel
| Prijs | |
|---|---|
| Kadastraal inkomen (niet geïndexeerd) | € 0 |
| Kadastraal inkomen (geïndexeerd) | € 0 |
Bijkomende info
Gebouw
| Staat | Goed onderhouden |
|---|---|
| Is beschermd | Nee |
| Badkamers | 1 |
| Slaapkamers | 3 |
| Toiletten | 3 |
Faciliteiten
| Keuken | Open keuken |
|---|---|
| Materiaal ramenomlijstingen | PVC |
| Beglazing | Hoog efficient driedubbel |
| Luiken | Nee |
| Primaire verwarming | Vloerverwarming |
| Warm water type | Geen verwarming |
Perceel
| Overstromingsgevoelig | Mogelijk overstromingsgevoelig |
|---|---|
| Voorkeurrecht | Nee |
| Totale oppervlakte (m²) | 118 |
Vergunning
| Vergunning | Vergunning beschikbaar |
|---|---|
| Verkavelingsvergunning | Vergunning beschikbaar |
Uitrusting
| Meerdere eigenaars | Nee |
|---|---|
| Geschikt als kangoeroewoning | Nee |
| Geschikt voor rolstoelgebruikers | Nee |
| Geschikt voor praktijk | Nee |
| Volledig onderkelderd | Nee |
| Parking | Nee |
| Garage | Ja |
| Thuiskantoor | Nee |
| Kelder | Nee |
| Zolder | Nee |
| Opslagruimte | Ja |
| Tuin | Ja |
| Terras | Nee |
| Lift | Nee |
| Rioolaansluiting | Ja |
| Gasaansluiting | Ja |
| Wateraansluiting | Ja |
| Elektriciteitsaansluiting | Ja |
| TV aansluiting | Nee |
| Internetaansluiting | Ja |
| Zonnepanelen | Ja |
| Zonneboiler | Nee |
| Alarm | Nee |
| Zwembad | Nee |
| Jacuzzi | Nee |
| Toonzaal | Nee |
| Ventilatie | Ja |
Leer meer over vastgoed
23 March 2026
Op Spotto zoeken als een pro: 10 slimme tips
21 March 2026
Hoeveel kan ik lenen om een huis te kopen?
01 March 2026
Wanneer heb ik een bouwvergunning of omgevingsvergunning nodig?
17 February 2026