Handelsfonds + handelshuis
€ 650.000
Een pand van Agence Vanbeckevoort
Overzicht
- 130 m² bewoonbaar
- 237 m² grond
Beschrijving
TE KOOP: handelshuis + handelsfonds
Eigentijds en duurzaam ingericht horeca-handelshuis met inrichting (handelsfonds) te koop, gevestigd in een historisch pand centrum Gistel. Uitmuntende locatie aan de voet van het Stadhuis en kruising met de invalswegen van Gistel, alsook de fietsroute "Groene 62". Dé vaste stopplaats voor vele voorbijgangers.
De populaire gelateria “Gelato di Franco” is gevestigd in de authentieke Wachterswoning aan de toenmalige spoorlijn Torhout-Oostende. Inmiddels werd het veelzijdig handelshuis duurzaam / energetisch gerenoveerd met oog voor detail.
Actueel ingericht als horecapand waar je terecht kan voor zelfgemaakt ijs, gebak, wafels, pannenkoeken, verwenkoffies, tapas en pizza om ter plaatse te verordenen of om af te halen. De actuele kaart kan naar believen worden ingevuld, uitgebreid of aangepast. Alle professionele keukentoestellen en pandinrichting zijn nieuw en uitstekend onderhouden.
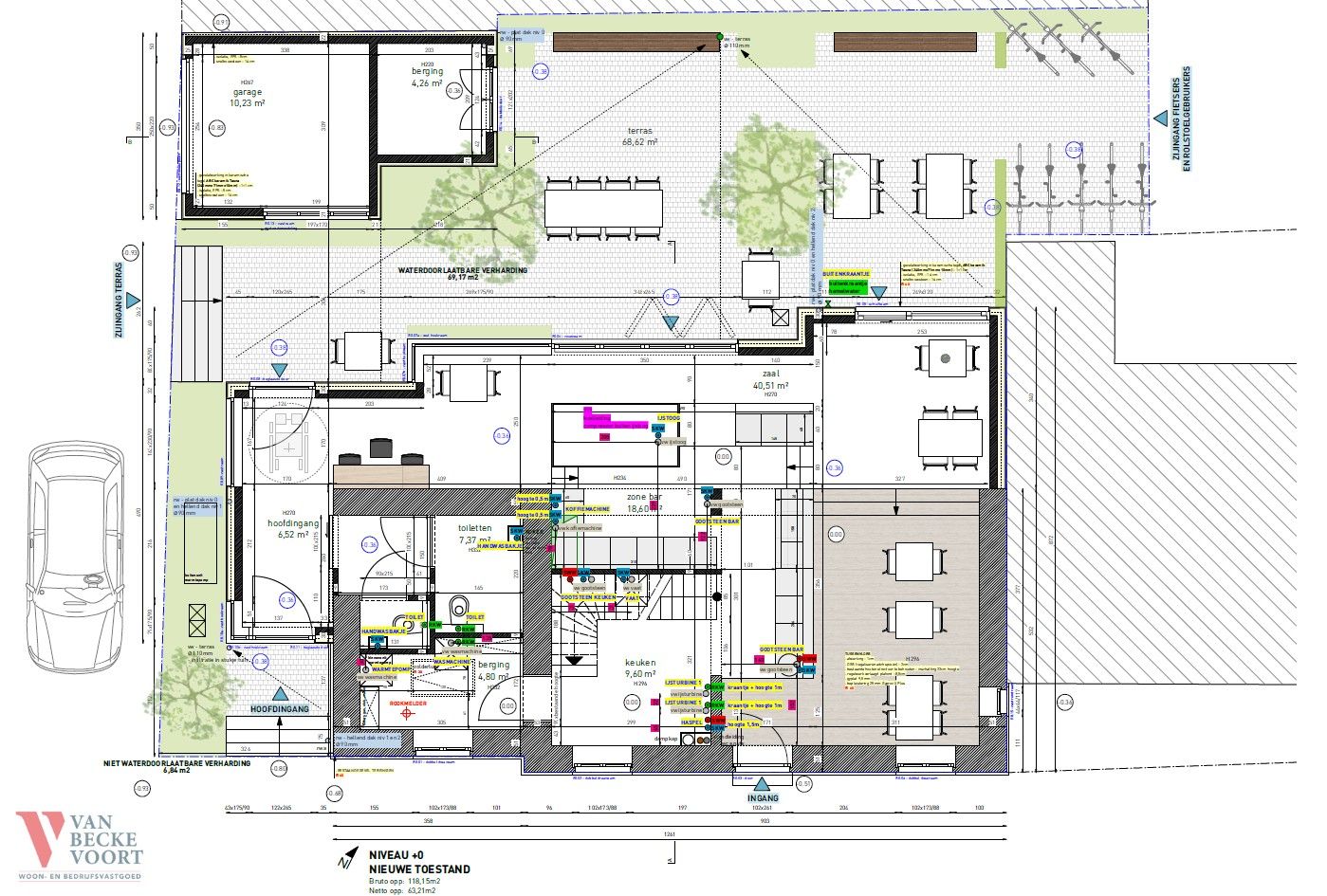
Indeling:
237m² grondoppervlakte en 130m² benutbare oppervlakte.
* gelijkvloers: inkomhall, gelagzaal 40m² die rechtstreekse toegang geeft naar het terras, ijs- en koffiebar met koeltoog 19m², keuken 10m² met nieuwe professionele toestellen, toiletzone en technische berging. Daarbovenop vind je aan de achterzijde van het gebouw een idyllisch aangelegde terraszone 69m², tuinberging 4m² en garagebox van 10m² (toegankelijk van op straat).
* eerste verdieping (30m²): professioneel ingerichte keuken én veel lichtinval, waar ondermeer de verse pizza's worden gemaakt /afgebakken. Deze ruimte kan ook perfect dienen als privégedeelte.
In het handelsfonds zit tevens vervat: de gelato-foodtruck, de ijsformule, wafel- en pannenkoekrecepten.
Dankzij de doordachte indeling, is deze zaak perfect uit te baten als horecakoppel (zonder personeel). Daarnaast ben je omringd door tal van lokale ondernemers op deze passagelocatie: La Gare, Logopedie Vanhaerents, frituur Groene 62, schoonheidssalon Elysée, Crélan bank, kinderopvang De Kriebel, Fietsenwinkel David Sport, verzekeringskantoor Fibam, KBC-bank, tandartspraktijk Kurt Hellyn, advocatenkantoor Concilegal, huisartsen, wijnhandel Lootens,....
Het handelsfonds en het karaktervolle handelshuis worden samen te koop aangeboden. Een unieke opportuniteit voor wie de bestaande zaak wil verderzetten of heroriënteren.
Het hedendaagse ijssalon is tevens geschikt voor andere doeleinden, zoals: verkooppunt, traiteur, restaurant (dak- en/of avondzaak), brasserie, tearoom, Panos, ontbijt- en koffiezaak,...
Extra troeven:
- Herkenbaar authentiek gebouw met karaktervolle gevel;
- Levendige locatie langs een veelgebruikte invalsweg en fietsroute;
- Optimaal geschikt voor horeca, tearoom, koffiebar of ambachtelijke winkel;
- Seizoensgebonden met bewezen klantenbestand;
- Parkeergelegenheid in de straat;
- Openbaar vervoer stopt om de hoek;
- Pand is up to date met de laatste bouw- en energienormen;
- Zeer energetisch gerenoveerd (EPC-label "A") met ondermeer:
° zonnepanelen
° dakisolatie
° hoogrendementsglas met aantrekkelijke aluminium raamprofielen
° verwarming adhv warmtepomp
° led-verlichting
° mechanisch ventilatiesysteem (aan- en afvoer van lucht)
° elektriciteit conform
- Regenwaterput: +- 10.000 liter
- Resultaat van de inspectie FAVV: zeer goed.
Eigentijds en duurzaam ingericht horeca-handelshuis met inrichting (handelsfonds) te koop, gevestigd in een historisch pand centrum Gistel. Uitmuntende locatie aan de voet van het Stadhuis en kruising met de invalswegen van Gistel, alsook de fietsroute "Groene 62". Dé vaste stopplaats voor vele voorbijgangers.
De populaire gelateria “Gelato di Franco” is gevestigd in de authentieke Wachterswoning aan de toenmalige spoorlijn Torhout-Oostende. Inmiddels werd het veelzijdig handelshuis duurzaam / energetisch gerenoveerd met oog voor detail.
Actueel ingericht als horecapand waar je terecht kan voor zelfgemaakt ijs, gebak, wafels, pannenkoeken, verwenkoffies, tapas en pizza om ter plaatse te verordenen of om af te halen. De actuele kaart kan naar believen worden ingevuld, uitgebreid of aangepast. Alle professionele keukentoestellen en pandinrichting zijn nieuw en uitstekend onderhouden.
Indeling:
237m² grondoppervlakte en 130m² benutbare oppervlakte.
* gelijkvloers: inkomhall, gelagzaal 40m² die rechtstreekse toegang geeft naar het terras, ijs- en koffiebar met koeltoog 19m², keuken 10m² met nieuwe professionele toestellen, toiletzone en technische berging. Daarbovenop vind je aan de achterzijde van het gebouw een idyllisch aangelegde terraszone 69m², tuinberging 4m² en garagebox van 10m² (toegankelijk van op straat).
* eerste verdieping (30m²): professioneel ingerichte keuken én veel lichtinval, waar ondermeer de verse pizza's worden gemaakt /afgebakken. Deze ruimte kan ook perfect dienen als privégedeelte.
In het handelsfonds zit tevens vervat: de gelato-foodtruck, de ijsformule, wafel- en pannenkoekrecepten.
Dankzij de doordachte indeling, is deze zaak perfect uit te baten als horecakoppel (zonder personeel). Daarnaast ben je omringd door tal van lokale ondernemers op deze passagelocatie: La Gare, Logopedie Vanhaerents, frituur Groene 62, schoonheidssalon Elysée, Crélan bank, kinderopvang De Kriebel, Fietsenwinkel David Sport, verzekeringskantoor Fibam, KBC-bank, tandartspraktijk Kurt Hellyn, advocatenkantoor Concilegal, huisartsen, wijnhandel Lootens,....
Het handelsfonds en het karaktervolle handelshuis worden samen te koop aangeboden. Een unieke opportuniteit voor wie de bestaande zaak wil verderzetten of heroriënteren.
Het hedendaagse ijssalon is tevens geschikt voor andere doeleinden, zoals: verkooppunt, traiteur, restaurant (dak- en/of avondzaak), brasserie, tearoom, Panos, ontbijt- en koffiezaak,...
Extra troeven:
- Herkenbaar authentiek gebouw met karaktervolle gevel;
- Levendige locatie langs een veelgebruikte invalsweg en fietsroute;
- Optimaal geschikt voor horeca, tearoom, koffiebar of ambachtelijke winkel;
- Seizoensgebonden met bewezen klantenbestand;
- Parkeergelegenheid in de straat;
- Openbaar vervoer stopt om de hoek;
- Pand is up to date met de laatste bouw- en energienormen;
- Zeer energetisch gerenoveerd (EPC-label "A") met ondermeer:
° zonnepanelen
° dakisolatie
° hoogrendementsglas met aantrekkelijke aluminium raamprofielen
° verwarming adhv warmtepomp
° led-verlichting
° mechanisch ventilatiesysteem (aan- en afvoer van lucht)
° elektriciteit conform
- Regenwaterput: +- 10.000 liter
- Resultaat van de inspectie FAVV: zeer goed.
Energie
![]() |
- EPC Certificaat: 20250617-0003626873-KNR-2
- E-peil: E0
- Verwarming: Elektriciteit
- Beglazing: Standaard dubbel
Op de kaart

Financieel
| Prijs | |
|---|---|
| Kadastraal inkomen (niet geïndexeerd) | € 923 |
Berekening kosten
Je aankoopkosten? Die heb je snel berekend via de knop hieronder.
Bijkomende info
Gebouw
| Bouwjaar | 1900 |
|---|---|
| Renovatie jaar | 2021 |
| Staat | Nieuw |
| Bouwcertificaat | Nee |
| Bewoonbaar (m²) | 130 |
| Badkamers | 0 |
| Slaapkamers | 0 |
| Verdiepingen | 0 |
| Garages | 0 |
| Parkeerplaatsen | 0 |
| Toiletten | 0 |
Faciliteiten
| Beglazing | Standaard dubbel |
|---|---|
| Brandstof primaire verwarming | Elektriciteit |
| Septische tank | Nee |
Perceel
| Overstromingsgevoelig | Geen |
|---|---|
| P-score | A |
| G-score | A |
| Totale oppervlakte (m²) | 237 |
| Bebouwde oppervlakte (m²) | 0 |
Vergunning
| Verkavelingsvergunning | Geen beschikbaar |
|---|
Uitrusting
| Investeringspand | Nee |
|---|---|
| Parking | Nee |
| Garage | Nee |
| Lift | Nee |
| Rioolaansluiting | Ja |
| Gasaansluiting | Nee |
| Wateraansluiting | Ja |
| Elektriciteitsaansluiting | Ja |
| Internetaansluiting | Nee |
| Telefoonaansluiting | Nee |
| Zonnepanelen | Ja |
| Zonneboiler | Nee |
| Alarm | Ja |
| Videofoon | Nee |
| Grondwaterput | Ja |
Appartementsblok
| Lift | Nee |
|---|---|
| Intercom | Nee |
Een pand van
Agence Vanbeckevoort
Vanbeckevoort - Immo Oostende
Al drie generaties lang schuimt de familie Vanbeckevoort het vastgoedlandschap in Oostende af. Met bijzondere voorliefde voor bedrijfs- en residentiële panden bouwde het immo-kantoor een sterke expertise uit. Verhuren, verkopen, overnemen of een pand beschikbaar? Vanbeckevoort gaat voluit voor uw dossier. Van marktconforme schatting en de zoektocht naar de juiste kandidaat tot het opstellen en ondertekenen van het contract. Zodat uw vastgoeddromen maximale zuurstof krijgen.
Nieuwpoortse Steenweg 2A - Gelato
Leer meer over vastgoed
04 January 2026
Zoek je een kantoor, een magazijn of… iets ertussenin? Bedrijfsvastgoed uitgelegd
05 November 2024
Bedrijfsvastgoed in transitie: ontdek de toekomst van werkplekken
16 October 2024
Opbrengsteigendom: een slim pad naar passief inkomen en vermogensgroei
09 September 2024
