In optie
Rustig gelegen nieuwbouwwoning net buiten het centrum van Gistel.
€ 419.879
Een pand van Albert Gistel
Favoriet
Jouw zoektocht
Jouw scoretabel voor dit pand
Aan het laden...
Overzicht
- 180 m² bewoonbaar
- 302 m² grond
- 4 Slaapkamer(s)
- 1 Badkamer(s)
- 2 Toilet(ten)
- 1 Tuin
Beschrijving
Aankoop aan 6% BTW* op de constructie mogelijk!
(* onder voorwaarden)
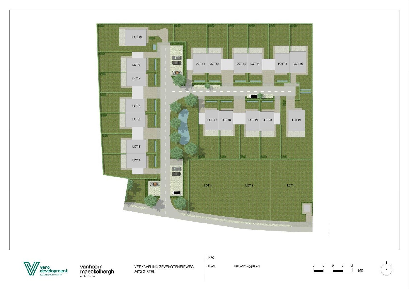
Deze nieuwe verkaveling vlakbij de Groene 62 is ideaal voor wie landelijk wil wonen, maar toch vlakbij het centrum van Gistel.
De op maat gebouwde woningen zorgen voor een stijlvolle, maar vooral tijdloze uitstraling in een rustige omgeving.
De combinatie van verschillende type woningen zorgt voor een speelse toets in de architectuur.
Alle woningen beschikken over een inkom met een gastentoilet en nis voor een vestiaire.
De mooie leefruimte met open, geïnstalleerde keuken betreedt je via de glazen deur met een zwart stalen frame.
Er is een ruime berging/wasplaats naast de keuken.
Alle huizen hebben minstens drie volwaardige slaapkamer, sommige zijn uitbreidbaar tot vijf.
Elke woning beschikt over een badkamer met inloopdouche en aansluitingen voor een ligbad.
Zowel het gelijkvloers als de eerste verdieping is voorzien van vloerverwarming en elke kamer en badkamer hebben een eigen thermostaat.
De landelijke types beschikken eveneens over een zolder, en sommige hebben reeds een vaste trap naar de zolderverdieping.
Binnen het standaard lastenboek zijn er ruime budgetten voorzien, zo ben je zeker van een fijn en volledig afgewerkte woning met hoogwaardige materialen.
De woningen zijn standaard voorzien van een aluminium carport, voorzien van een laadpunt (wallbox niet inbegrepen) of een inpandige garage.
Wens je meer informatie over deze mooie, duurzame verkaveling? Neem dan contact op met Kris via mail naar kris.bauwens@albert.immo of bel 0470/51 04 09.
(* onder voorwaarden)
Deze nieuwe verkaveling vlakbij de Groene 62 is ideaal voor wie landelijk wil wonen, maar toch vlakbij het centrum van Gistel.
De op maat gebouwde woningen zorgen voor een stijlvolle, maar vooral tijdloze uitstraling in een rustige omgeving.
De combinatie van verschillende type woningen zorgt voor een speelse toets in de architectuur.
Alle woningen beschikken over een inkom met een gastentoilet en nis voor een vestiaire.
De mooie leefruimte met open, geïnstalleerde keuken betreedt je via de glazen deur met een zwart stalen frame.
Er is een ruime berging/wasplaats naast de keuken.
Alle huizen hebben minstens drie volwaardige slaapkamer, sommige zijn uitbreidbaar tot vijf.
Elke woning beschikt over een badkamer met inloopdouche en aansluitingen voor een ligbad.
Zowel het gelijkvloers als de eerste verdieping is voorzien van vloerverwarming en elke kamer en badkamer hebben een eigen thermostaat.
De landelijke types beschikken eveneens over een zolder, en sommige hebben reeds een vaste trap naar de zolderverdieping.
Binnen het standaard lastenboek zijn er ruime budgetten voorzien, zo ben je zeker van een fijn en volledig afgewerkte woning met hoogwaardige materialen.
De woningen zijn standaard voorzien van een aluminium carport, voorzien van een laadpunt (wallbox niet inbegrepen) of een inpandige garage.
Wens je meer informatie over deze mooie, duurzame verkaveling? Neem dan contact op met Kris via mail naar kris.bauwens@albert.immo of bel 0470/51 04 09.
Deze nieuwbouwwoning maakt deel uit van een prachtige, stijlvolle, maar vooral tijdloze verkaveling, op wandelafstand van het centrum van Gistel en vlakbij de Groene 62. De woning op LOT 11 is een moderne, energiezuinige woning dat gebouwd wordt voor de toekomst! Het huis omvat een inkom met gastentoilet, een lichtrijke leefruimte met open, geïnstalleerde keuken en aanpalende berging/wasplaats. Op de verdieping bevinden er zich drie volwaardige slaapkamers, een apart toilet en een badkamer met ruime inloopdouche en lavabo. De woning wordt voorzien van hernieuwbare energie en vloerverwarming op elke verdieping. De hoogwaardige, duurzame materialen zorgen voor een prachtig afgewerkte woning binnen het standaard lastenboek. Uiteraard kan je alle materialen vrij kiezen, zodat je jouw woning afwerkt naar jouw eigen smaak. De tuin wordt voorzien van een afsluiting rondom het perceel en voor de wagen wordt er een onderhoudsvriendelijke carport voorzien. Ben je op zoek naar een nieuwbouwwoning op een unieke locatie in Gistel? Dan is deze of één van de woningen in deze verkaveling iets voor jou. Voor meer informatie over deze verkaveling, mail of bel naar Kris, kris.bauwens@albert.immo of 0470/51 04 09
Energie
![]() |
Op de kaart

Financieel
| Prijs |
|---|
Bijkomende info
Gebouw
| Bouwjaar | 2024 |
|---|---|
| Staat | Zo goed als nieuw |
| Bewoonbaar (m²) | 180 |
| Gevels | 3 |
| Badkamers | 1 |
| Slaapkamers | 4 |
| Parkeerplaatsen | 2 |
| Toiletten | 2 |
Faciliteiten
| Type vloer | |
|---|---|
| Keuken uitrusting | Goed uitgerust |
| Elektrisch keuringsattest | Ja |
Perceel
| Overstromingsgevoelig | Geen |
|---|---|
| P-score | A |
| G-score | A |
| Voorkeurrecht | Nee |
| Totale oppervlakte (m²) | 302 |
| Tuin oppervlakte (m²) | 0 |
| Oriëntatie voorgevel | Zuid |
| Oriëntatie terras | Noordwest |
Vergunning
| Vergunning | Vergunning beschikbaar |
|---|---|
| Verkavelingsvergunning | Vergunning beschikbaar |
| Bouwovertreding | Geen |
| Bouwovertreding dagvaardiging | Geen |
Uitrusting
| Geschikt voor rolstoelgebruikers | Ja |
|---|---|
| Parking | Ja |
| Garage | Nee |
| Zolder | Ja |
| Tuin | Ja |
| Terras | Ja |
| Lift | Nee |
| Wateraansluiting | Ja |
| Elektriciteitsaansluiting | Ja |
| TV aansluiting | Ja |
| Telefoonaansluiting | Ja |
| Zwembad | Nee |
| Zwemvijver | Nee |
| Regenwaterput | Ja |
Een pand van
Albert Gistel
Albert is jouw no-nonsense partner in residentieel vastgoed en dit vanuit onze 10 lokaal verankerde kantoren in Vlaanderen
Bij ons kom je thuis!
Albert is jouw no-nonsense partner in residentieel vastgoed en dit vanuit onze 10 lokaal verankerde kantoren in Vlaanderen!
Of het nu aankoop, verkoop, huur, verhuur of andere vastgoed gerelateerde vragen betreft, ons ervaren en gepassioneerd team van experten staat voor je klaar!
Bij Albert geen overhaaste aanpak maar een oprechte investering in elke klant, elk dossier, elke keer opnieuw. We always go the extra mile zodat we een kwalitatief resultaat en persoonlijke service kunnen bieden en garanderen.
Benieuwd wat jouw eigendom waard is? Bij Albert kan je terecht voor een gratis en vrijblijvende schatting in één van onze kantoren.
Aarzel niet en contacteer ons vandaag nog geheel vrijblijvend via familie@albert.immo of 0800 252 37. Wij ondersteunen en ontzorgen jou graag op een transparante, authentieke en persoonlijke wijze!
7140467
Leer meer over vastgoed
Nieuw
23 March 2026
Op Spotto zoeken als een pro: 10 slimme tips
01 March 2026
Wanneer heb ik een bouwvergunning of omgevingsvergunning nodig?
17 February 2026
Hoe breng ik een bod uit op een woning?
24 November 2025
