Halfopen casco woning op 256m² op rustige ligging
Een pand van Residentie Vastgoed
Favoriet
Jouw zoektocht
Jouw scoretabel voor dit pand
Aan het laden...
Jouw geplande bezichtigingen
Aan het laden...
Overzicht
- 124 m² bewoonbaar
- 265 m² grond
- 3 Slaapkamer(s)
- 1 Badkamer(s)
- 2 Toilet(ten)
- 1 Living(s)
- 1 Tuin
Beschrijving
Unieke kans! Casco woning in het hartje van Eernegem. Rustig gelegen in de Oude Bruggeweg, vlakbij het centrum met verschillende winkels, lokale handelaars, openbaar vervoer, ...
Deze halfopen woning wordt aangeboden in Casco (wind/waterdichte afwerking), waarbij u zelf bepaalt hoe de woning wordt afgewerkt — ideaal om uw eigen touch toe te voegen!
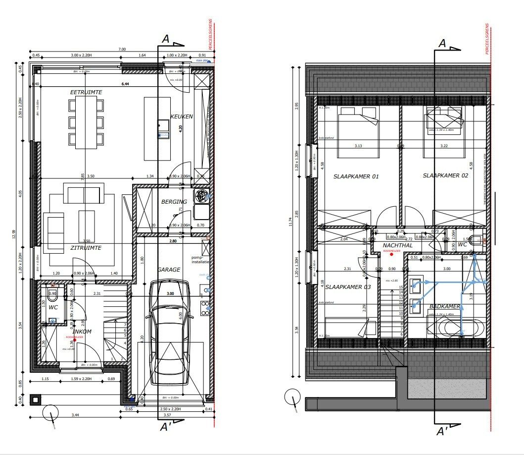
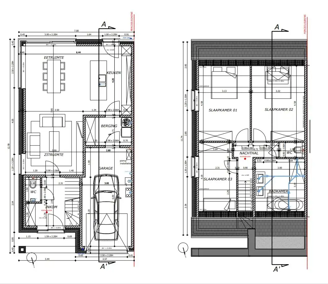
De woning biedt twee volwaardige verdiepingen. Op het gelijkvloers vindt u een ruime, lichtrijke leefruimte met open keuken. Daarnaast beschikt de woning over een berging, praktische garage met oprit, inkomhal én een afzonderlijk gastentoilet. Op de eerste verdieping bevinden zich drie volwaardige slaapkamers, een badkamer en een apart toilet op de nachthal.
Deze halfopen woning wordt aangeboden in Casco (wind/waterdichte afwerking), waarbij u zelf bepaalt hoe de woning wordt afgewerkt — ideaal om uw eigen touch toe te voegen!
De woning biedt twee volwaardige verdiepingen. Op het gelijkvloers vindt u een ruime, lichtrijke leefruimte met open keuken. Daarnaast beschikt de woning over een berging, praktische garage met oprit, inkomhal én een afzonderlijk gastentoilet. Op de eerste verdieping bevinden zich drie volwaardige slaapkamers, een badkamer en een apart toilet op de nachthal.
Energie
- Verwarming: Geen
- Beglazing: Hoog efficient dubbel
Op de kaart

Downloads
- Lastenboek.pdf (PDF)
- Inplantingsplan.pdf (PDF)
Financieel
| Prijs | |
|---|---|
| Kadastraal inkomen (niet geïndexeerd) | € 0 |
| Kadastraal inkomen (geïndexeerd) | € 0 |
Bijkomende info
Gebouw
| Bouwjaar | 2025 |
|---|---|
| Staat | Goed onderhouden |
| Is beschermd | Nee |
| Bewoonbaar (m²) | 124 |
| Gevelbreedte | 7 |
| Badkamers | 1 |
| Slaapkamers | 3 |
| Verdiepingen | 2 |
| Keukens | 1 |
| Leefruimtes | 1 |
| Parkeerplaatsen | 1 |
| Opslagruimtes | 1 |
| Toiletten | 2 |
Ruimtes
| Slaapkamer | 14.34 m² |
|---|---|
| Slaapkamer | 14.75 m² |
| Slaapkamer | 9.66 m² |
| Tuin | 174 m² |
| Keuken | 12.35 m² |
| Leefruimte | 27.48 m² |
| Opbergruimte | 4.79 m² |
Faciliteiten
| Keuken | Open keuken |
|---|---|
| Materiaal ramenomlijstingen | PVC |
| Beglazing | Hoog efficient dubbel |
| Luiken | Nee |
| Primair verwarmingstype | Geen verwarming |
| Brandstof primaire verwarming | Geen |
Perceel
| Diepte (m) | 8 |
|---|---|
| Breedte (m) | 10 |
| Overstromingsgevoelig | Geen |
| P-score | A |
| G-score | A |
| Voorkeurrecht | Nee |
| Totale oppervlakte (m²) | 265 |
| Bebouwde oppervlakte (m²) | 91 |
| Tuin oppervlakte (m²) | 174 |
| Oriëntatie tuin | Zuid |
Vergunning
| Vergunning | Vergunning beschikbaar |
|---|---|
| Verkavelingsvergunning | Vergunning beschikbaar |
| Bouwovertreding dagvaardiging | Geen |
Uitrusting
| Meerdere eigenaars | Nee |
|---|---|
| Geschikt als kangoeroewoning | Nee |
| Geschikt voor rolstoelgebruikers | Nee |
| Geschikt voor praktijk | Nee |
| Volledig onderkelderd | Nee |
| Parking | Ja |
| Garage | Ja |
| Thuiskantoor | Nee |
| Kelder | Nee |
| Zolder | Ja |
| Opslagruimte | Ja |
| Tuin | Ja |
| Terras | Nee |
| Lift | Nee |
| Rioolaansluiting | Ja |
| Gasaansluiting | Ja |
| Wateraansluiting | Ja |
| Elektriciteitsaansluiting | Ja |
| TV aansluiting | Nee |
| Internetaansluiting | Nee |
| Zonnepanelen | Nee |
| Zonneboiler | Nee |
| Alarm | Nee |
| Zwembad | Nee |
| Jacuzzi | Nee |
| Toonzaal | Nee |
| Ventilatie | Nee |
Een pand van
Residentie Vastgoed
Wij stellen jouw woning voorop!
Residentie Vastgoed heeft tot doel u op een deskundige en correcte manier te helpen bij het vinden van een gepaste woning. U, als eigenaar, helpen wij om uw eigendom aan een eerlijke en juiste prijs te verkopen. Binnen onze site ontdekt u een waaier van diensten die Residentie Vastgoed aanbiedt. www.residentievastgoed.be
OU28470
Leer meer over vastgoed
23 March 2026
Op Spotto zoeken als een pro: 10 slimme tips
21 March 2026
Hoeveel kan ik lenen om een huis te kopen?
01 March 2026
Wanneer heb ik een bouwvergunning of omgevingsvergunning nodig?
17 February 2026