Huis
€ 378.000
Een pand van CORRECT VASTGOED
Overzicht
- 208 m² bewoonbaar
- 347 m² grond
- 4 Slaapkamer(s)
- 1 Badkamer(s)
- 2 Toilet(ten)
- 1 Tuin
Beschrijving
Wij zijn gestart met bouwen! Oplevering eind 2026.
Als u in 2026 wil wonen in een allernieuwste woning met landelijk karakter, is dit uw kans.
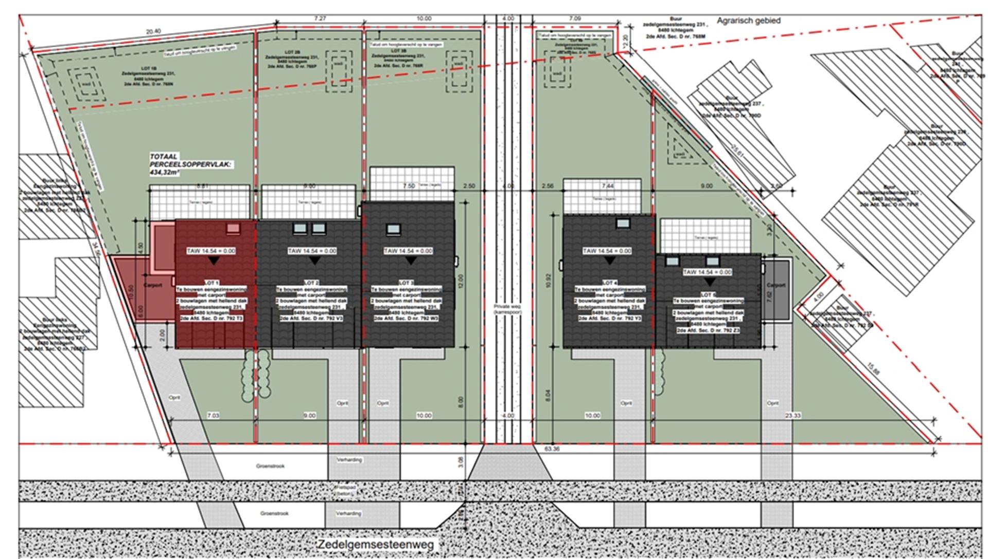
Het kleinschalig en groen project (5) waarvan vier halfopen en één gesloten bouwwijze u kunnen verassen, wordt einde 2026 opgeleverd.
De woningen worden uitgevoerd met hoogwaardige isolatie, eigentijdse warmtepomp, vloerverwarming (ook op de verdiepingen), regenput van 10.000l, ventilatiesysteem D, en zonnepanelen, waardoor de woningen niet alleen comfortabel zijn, maar ook bijzonder energiezuinig en toekomstbestendig!
Al deze hedendaagse voorzieningen resulteren zich in lage energiekosten!
De woningen zijn ruim, bezitten 4 slaapkamers (in 4 van de woningen) en krijgen een vaste trap op het 1ste en 2de verdiep, de geïnstalleerde keuken en goed voorziene badkamer zijn nog naar eigen wens te bepalen. Elke woning biedt een doordachte indeling, met veel lichtinval, en een mooi perceel met uitzicht op het omliggende landschap. De ligging is bovendien zeer centraal, en ligt ongeveer in een driehoek tussen Brugge – Oostende – Torhout, met vlotte verbinding naar diverse invalswegen.
Toegift voor de snelle beslisser: Gratis sanitair ter waarde van € 5000 incl btw bij aankoop voor eind 2025!!
Dit prachtig project is echt een buitenkans voor wie op zoek is naar een kwalitatief afgewerkte, energiezuinige, eigentijdse woning en dit in een unieke, groene omgeving!
Sinds kort kunt u ook gebruik maken van onze online schattingstool: https://www.correctvastgoed.be/schatting.
Contacteer Regine voor een bezoek ter plaatse:
0493 11 20 50
regine@correctvastgoed.be
Als u in 2026 wil wonen in een allernieuwste woning met landelijk karakter, is dit uw kans.
Het kleinschalig en groen project (5) waarvan vier halfopen en één gesloten bouwwijze u kunnen verassen, wordt einde 2026 opgeleverd.
De woningen worden uitgevoerd met hoogwaardige isolatie, eigentijdse warmtepomp, vloerverwarming (ook op de verdiepingen), regenput van 10.000l, ventilatiesysteem D, en zonnepanelen, waardoor de woningen niet alleen comfortabel zijn, maar ook bijzonder energiezuinig en toekomstbestendig!
Al deze hedendaagse voorzieningen resulteren zich in lage energiekosten!
De woningen zijn ruim, bezitten 4 slaapkamers (in 4 van de woningen) en krijgen een vaste trap op het 1ste en 2de verdiep, de geïnstalleerde keuken en goed voorziene badkamer zijn nog naar eigen wens te bepalen. Elke woning biedt een doordachte indeling, met veel lichtinval, en een mooi perceel met uitzicht op het omliggende landschap. De ligging is bovendien zeer centraal, en ligt ongeveer in een driehoek tussen Brugge – Oostende – Torhout, met vlotte verbinding naar diverse invalswegen.
Toegift voor de snelle beslisser: Gratis sanitair ter waarde van € 5000 incl btw bij aankoop voor eind 2025!!
Dit prachtig project is echt een buitenkans voor wie op zoek is naar een kwalitatief afgewerkte, energiezuinige, eigentijdse woning en dit in een unieke, groene omgeving!
Sinds kort kunt u ook gebruik maken van onze online schattingstool: https://www.correctvastgoed.be/schatting.
Contacteer Regine voor een bezoek ter plaatse:
0493 11 20 50
regine@correctvastgoed.be
Energie
![]() |
- E-peil: E0
- Beglazing: Onbekend
Op de kaart

Downloads
Financieel
| Prijs | |
|---|---|
| Kadastraal inkomen (niet geïndexeerd) | € 0 |
| Kadastraal inkomen (geïndexeerd) | € 0 |
Bijkomende info
Gebouw
| Bouwjaar | 2025 |
|---|---|
| Staat | Nieuw |
| Bouwcertificaat | Nee |
| Bewoonbaar (m²) | 208 |
| Verdieping | 0 |
| Badkamers | 1 |
| Slaapkamers | 4 |
| Verdiepingen | 0 |
| Garages | 0 |
| Parkeerplaatsen | 0 |
| Doucheruimtes | 0 |
| Toiletten | 2 |
Faciliteiten
| Keuken uitrusting | Luxueus uitgerust |
|---|---|
| Elektrisch keuringsattest | Ja |
Perceel
| Overstromingsgevoelig | Geen |
|---|---|
| Voorkeurrecht | Ja |
| Totale oppervlakte (m²) | 347 |
| Bebouwde oppervlakte (m²) | 0 |
| Tuin oppervlakte (m²) | 0 |
| Oppervlakte terras (m²) | 0 |
Vergunning
| Vergunning | Aanvraag ingediend |
|---|---|
| Verkavelingsvergunning | Aanvraag ingediend |
Uitrusting
| Investeringspand | Nee |
|---|---|
| Geschikt voor praktijk | Nee |
| Parking | Nee |
| Garage | Nee |
| Thuiskantoor | Nee |
| Kelder | Nee |
| Zolder | Ja |
| Tuin | Ja |
| Terras | Ja |
| Lift | Nee |
| Rioolaansluiting | Nee |
| Gasaansluiting | Nee |
| Wateraansluiting | Nee |
| Elektriciteitsaansluiting | Nee |
| TV aansluiting | Nee |
| Internetaansluiting | Nee |
| Telefoonaansluiting | Nee |
Een pand van
CORRECT VASTGOED
Correct Vastgoed
Correct vastgoed
ZEDELGEMSESTEENWEG 231 EERNEGEM
Leer meer over vastgoed
Nieuw
24 November 2025
Uitgezocht voor jouw gemeente: Hoeveel stijgt de waarde van je woning door een renovatie?
22 October 2025
Hoeveel kan ik lenen om een huis te kopen?
11 June 2025
Huis kopen met bouwovertreding? Dit moet je weten
11 May 2025
