Nieuw
Wonen aan de Leie in een recent nieuwbouwappt met ruim terras
Een pand van Casteels vastgoed
Overzicht
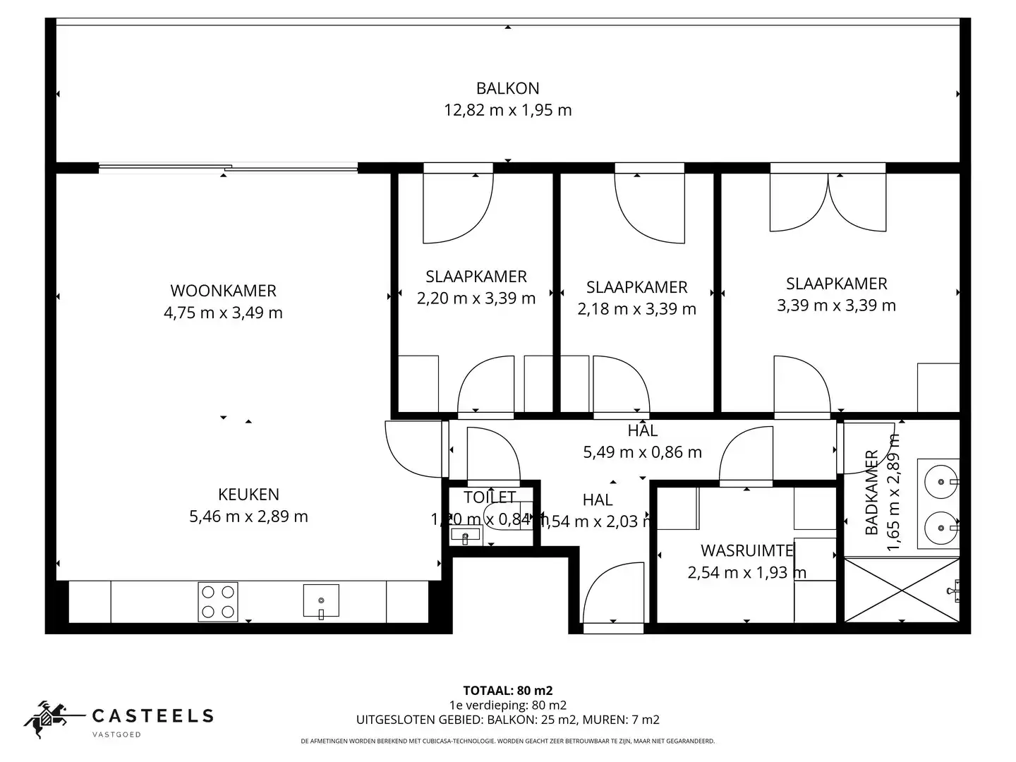
- 87 m² bewoonbaar
- 112 m² grond
- 3 Slaapkamer(s)
- 1 Badkamer(s)
- 1 Toilet(ten)
Beschrijving
Contacteer Camille op 09 396 10 20 of via camille@casteelsvastgoed.be
Dossierstukken en plannen steeds beschikbaar op onze website
__
Droomt u van een recent, lichtrijk nieuwbouwappartement aan het water? Dit appartement (2024) in Harelbeke combineert modern wooncomfort met een uitstekende bereikbaarheid nabij de Leie, N36/N43 en het station. Met een energiezuinige afwerking (EPC A) en een bewoonbare oppervlakte van 86,90 m² geniet u van een uiterst aangename sfeer. Dankzij de grote raampartijen baadt de leefruimte in het licht, met een open, volledig uitgeruste keuken die naadloos aansluit op de eetruimte. Het appartement beschikt over drie volwaardige slaapkamers, elk met rechtstreekse toegang tot het terras, een badkamer met ruime inloopdouche en dubbele lavabo, een grote berging en vloerverwarming. Een absolute troef is het ruime, zuidoostelijk georiënteerde terras. Hier geniet u volop van de zon en is er voldoende plaats voor een eettafel, ligstoelen en zelfs een barbecue. Bij het appartement hoort een vlot toegankelijke garagebox, verplicht aan te kopen voor €25.000, gelegen vlak bij de in- en uitgang voor optimaal gemak. Op slechts twee kilometer van Provinciedomein De Gavers en met basisvoorzieningen op wandelafstand, biedt dit pand de ideale mix van natuur en stad. Kortom: een energiezuinig nieuwbouwappartement met 3 slaapkamers en veel lichtinval op een toplocatie in Harelbeke.
Stedenbouw in aanvraag
Dossierstukken en plannen steeds beschikbaar op onze website
__
Droomt u van een recent, lichtrijk nieuwbouwappartement aan het water? Dit appartement (2024) in Harelbeke combineert modern wooncomfort met een uitstekende bereikbaarheid nabij de Leie, N36/N43 en het station. Met een energiezuinige afwerking (EPC A) en een bewoonbare oppervlakte van 86,90 m² geniet u van een uiterst aangename sfeer. Dankzij de grote raampartijen baadt de leefruimte in het licht, met een open, volledig uitgeruste keuken die naadloos aansluit op de eetruimte. Het appartement beschikt over drie volwaardige slaapkamers, elk met rechtstreekse toegang tot het terras, een badkamer met ruime inloopdouche en dubbele lavabo, een grote berging en vloerverwarming. Een absolute troef is het ruime, zuidoostelijk georiënteerde terras. Hier geniet u volop van de zon en is er voldoende plaats voor een eettafel, ligstoelen en zelfs een barbecue. Bij het appartement hoort een vlot toegankelijke garagebox, verplicht aan te kopen voor €25.000, gelegen vlak bij de in- en uitgang voor optimaal gemak. Op slechts twee kilometer van Provinciedomein De Gavers en met basisvoorzieningen op wandelafstand, biedt dit pand de ideale mix van natuur en stad. Kortom: een energiezuinig nieuwbouwappartement met 3 slaapkamers en veel lichtinval op een toplocatie in Harelbeke.
Stedenbouw in aanvraag
Droomt u van een recent appartement met veel licht, een ruim terras en een rustige ligging aan het water? Dan is dit nieuwbouwappartement in Harelbeke absoluut een bezoek waard. Met drie slaapkamers, een zonnig terras en een energiezuinige afwerking combineert deze woning modern wooncomfort met een uitstekende bereikbaarheid.
Het appartement bevindt zich langs de Leie en geniet van een praktische ligging nabij de N36 en N43, waardoor omliggende steden vlot bereikbaar zijn. Ook het station van Harelbeke ligt op wandelafstand. Voor wie graag in het groen ontspant, ligt het mooie Provinciedomein De Gavers op slechts twee kilometer.
Licht en aangename leefruimte
Het appartement heeft een bewoonbare oppervlakte van 86,90 m² en werd gebouwd in 2024 volgens recente energienormen (EPC A). Dankzij de grote raampartijen geniet de leefruimte van een overvloed aan natuurlijk licht, wat meteen een open en aangename sfeer creëert.
De open, volledig uitgeruste keuken sluit naadloos aan op de leef- en eetruimte, waardoor u een gezellige en praktische leefomgeving krijgt.
Comfortabele indeling
Het appartement beschikt over:
Zonnig en ruim terras
Een absolute troef van dit appartement is het ruime terras met zuidoostelijke oriëntatie. Hier geniet u van de ochtend- en middagzon en is er voldoende plaats voor:
Dit maakt het terras een echte verlenging van de leefruimte tijdens de warmere maanden.
Garagebox
Bij het appartement hoort een garagebox, verplicht aan te kopen voor €25.000.
De garagebox bevindt zich vlak aan de in- en uitgang, waardoor u bijzonder gemakkelijk kan in- en uitrijden.
Praktische ligging
De basisvoorzieningen bevinden zich op wandelafstand, terwijl u tegelijk geniet van een rustige ligging aan het water. De combinatie van bereikbaarheid, natuur en comfort maakt dit appartement bijzonder aantrekkelijk.
Kortom: een energiezuinig nieuwbouwappartement met drie slaapkamers, veel lichtinval en een ruim terras aan de Leie, ideaal voor wie comfortabel wil wonen op een aangename locatie in Harelbeke.
Stedenbouw in aanvraag
Het appartement bevindt zich langs de Leie en geniet van een praktische ligging nabij de N36 en N43, waardoor omliggende steden vlot bereikbaar zijn. Ook het station van Harelbeke ligt op wandelafstand. Voor wie graag in het groen ontspant, ligt het mooie Provinciedomein De Gavers op slechts twee kilometer.
Licht en aangename leefruimte
Het appartement heeft een bewoonbare oppervlakte van 86,90 m² en werd gebouwd in 2024 volgens recente energienormen (EPC A). Dankzij de grote raampartijen geniet de leefruimte van een overvloed aan natuurlijk licht, wat meteen een open en aangename sfeer creëert.
De open, volledig uitgeruste keuken sluit naadloos aan op de leef- en eetruimte, waardoor u een gezellige en praktische leefomgeving krijgt.
Comfortabele indeling
Het appartement beschikt over:
- 3 volwaardige slaapkamers, elk met rechtstreekse toegang tot het terras
- Badkamer met dubbele lavabo en ruime inloopdouche
- Grote berging voor extra opslagruimte
- Vloerverwarming voor optimaal wooncomfort
- Lift aanwezig in het gebouw
Zonnig en ruim terras
Een absolute troef van dit appartement is het ruime terras met zuidoostelijke oriëntatie. Hier geniet u van de ochtend- en middagzon en is er voldoende plaats voor:
- Een eettafel met stoelen
- Een ligstoel om te ontspannen
- Een barbecue, wat bij appartementen niet altijd vanzelfsprekend is
Dit maakt het terras een echte verlenging van de leefruimte tijdens de warmere maanden.
Garagebox
Bij het appartement hoort een garagebox, verplicht aan te kopen voor €25.000.
De garagebox bevindt zich vlak aan de in- en uitgang, waardoor u bijzonder gemakkelijk kan in- en uitrijden.
Praktische ligging
De basisvoorzieningen bevinden zich op wandelafstand, terwijl u tegelijk geniet van een rustige ligging aan het water. De combinatie van bereikbaarheid, natuur en comfort maakt dit appartement bijzonder aantrekkelijk.
Kortom: een energiezuinig nieuwbouwappartement met drie slaapkamers, veel lichtinval en een ruim terras aan de Leie, ideaal voor wie comfortabel wil wonen op een aangename locatie in Harelbeke.
Stedenbouw in aanvraag
Energie
![]() |
- Energieverbruik: 38 kWh/m²/jaar
- E-peil: E28
- Verwarming: Elektriciteit
- Beglazing: Standaard dubbel
Op de kaart

Financieel
| Prijs | |
|---|---|
| Kadastraal inkomen (niet geïndexeerd) | € 1.086 |
Berekening kosten
Je aankoopkosten? Die heb je snel berekend via de knop hieronder.
Bijkomende info
Gebouw
| Bouwjaar | 2024 |
|---|---|
| Bewoonbaar (m²) | 87 |
| Verdieping | 3 |
| Badkamers | 1 |
| Slaapkamers | 3 |
| Verdiepingen | 5 |
| Garages | 0 |
| Parkeerplaatsen | 0 |
| Toiletten | 1 |
Faciliteiten
| Beglazing | Standaard dubbel |
|---|---|
| Brandstof primaire verwarming | Elektriciteit |
| Septische tank | Nee |
Perceel
| Overstromingsgevoelig | Geen |
|---|---|
| P-score | A |
| G-score | A |
| Totale oppervlakte (m²) | 112 |
| Bebouwde oppervlakte (m²) | 0 |
| Oppervlakte terras (m²) | 25 |
Vergunning
| Verkavelingsvergunning | Geen beschikbaar |
|---|
Uitrusting
| Investeringspand | Nee |
|---|---|
| Parking | Nee |
| Garage | Nee |
| Terras | Ja |
| Lift | Ja |
| Rioolaansluiting | Ja |
| Gasaansluiting | Nee |
| Wateraansluiting | Ja |
| Elektriciteitsaansluiting | Ja |
| Internetaansluiting | Ja |
| Telefoonaansluiting | Ja |
| Zonnepanelen | Ja |
| Zonneboiler | Nee |
| Alarm | Nee |
| Videofoon | Nee |
| Grondwaterput | Ja |
Appartementsblok
| Aantal verdiepingen | 5 |
|---|---|
| Lift | Ja |
| Intercom | Nee |
Een pand van
Casteels vastgoed
Vastgoedmakelaardij met een verfrissende aanpak.
Authentiek, ongedwongen en met een communicatie van mens tot mens. Als moderne vastgoedmakelaar begeleiden we jou zo naar een vlotte aankoop of verkoop van je woning. Door het verkoopproces zoveel mogelijk te optimaliseren, profiteer jij als koper of verkoper van een uitstekende dienstverlening aan een scherpe prijs. Casteels vastgoed, vastgoed dat raakt.
CK26_001_Twee-Bruggenstraat14B302_8530
Leer meer over vastgoed
01 March 2026
Wanneer heb ik een bouwvergunning of omgevingsvergunning nodig?
17 February 2026
Hoe breng ik een bod uit op een woning?
24 November 2025
Uitgezocht voor jouw gemeente: Hoeveel stijgt de waarde van je woning door een renovatie?
22 October 2025
