Overzicht
- 1019 m² grond
Overstromingsgevaar perceel
Beschrijving
Fantastisch gelegen bouwgrond te koop!
Deze bouwgrond bevindt zich op een uitstekende locatie, tussen Deerlijk en Stasegem, en biedt talloze mogelijkheden.
Het perceel heeft een oppervlakte van 1.019 m² en is perfect geschikt voor het bouwen van een open bebouwing. Alle nodige documenten zijn beschikbaar op aanvraag, zowel per e-mail als op ons kantoor.
Vraagprijs: 230.000
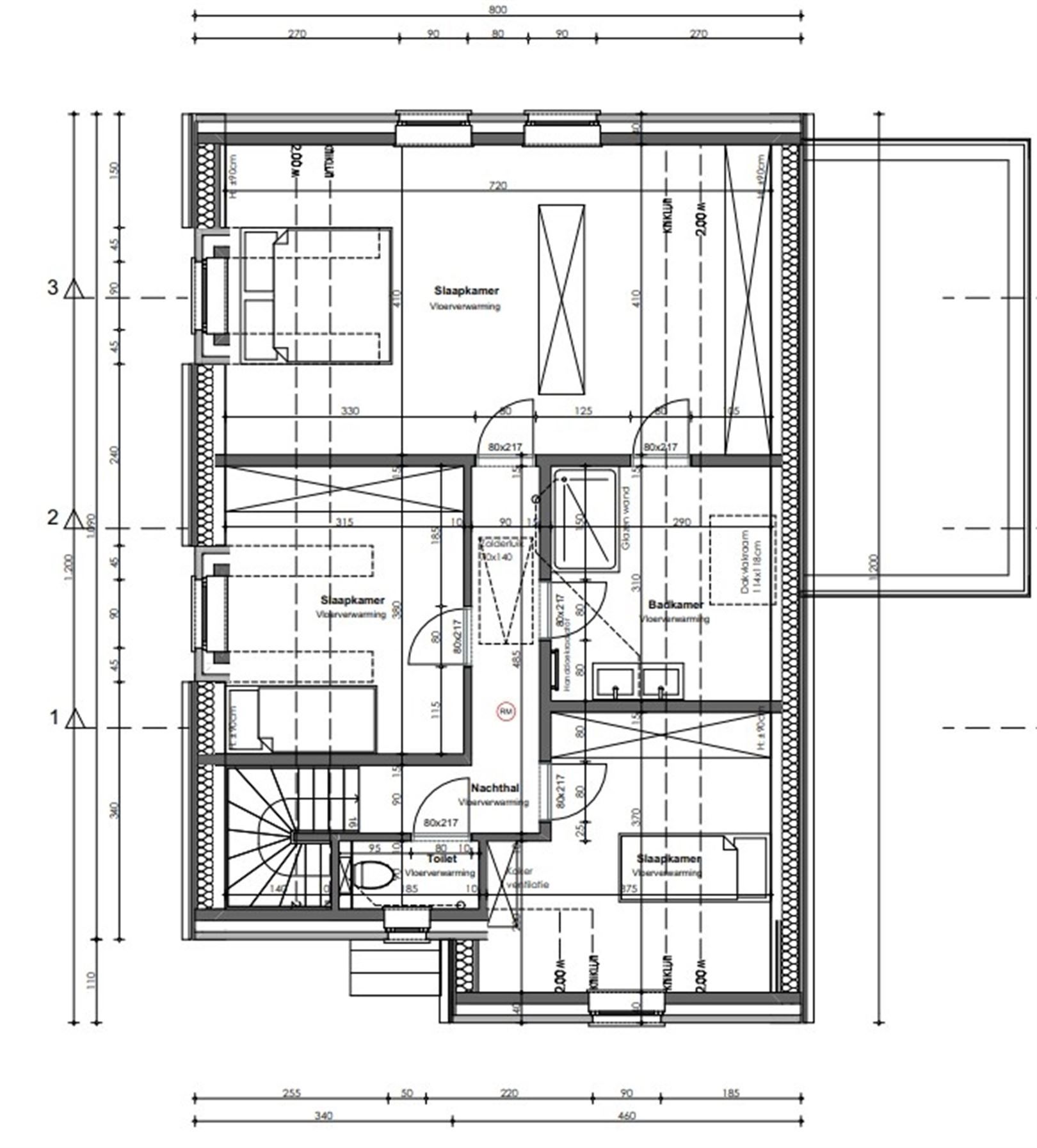
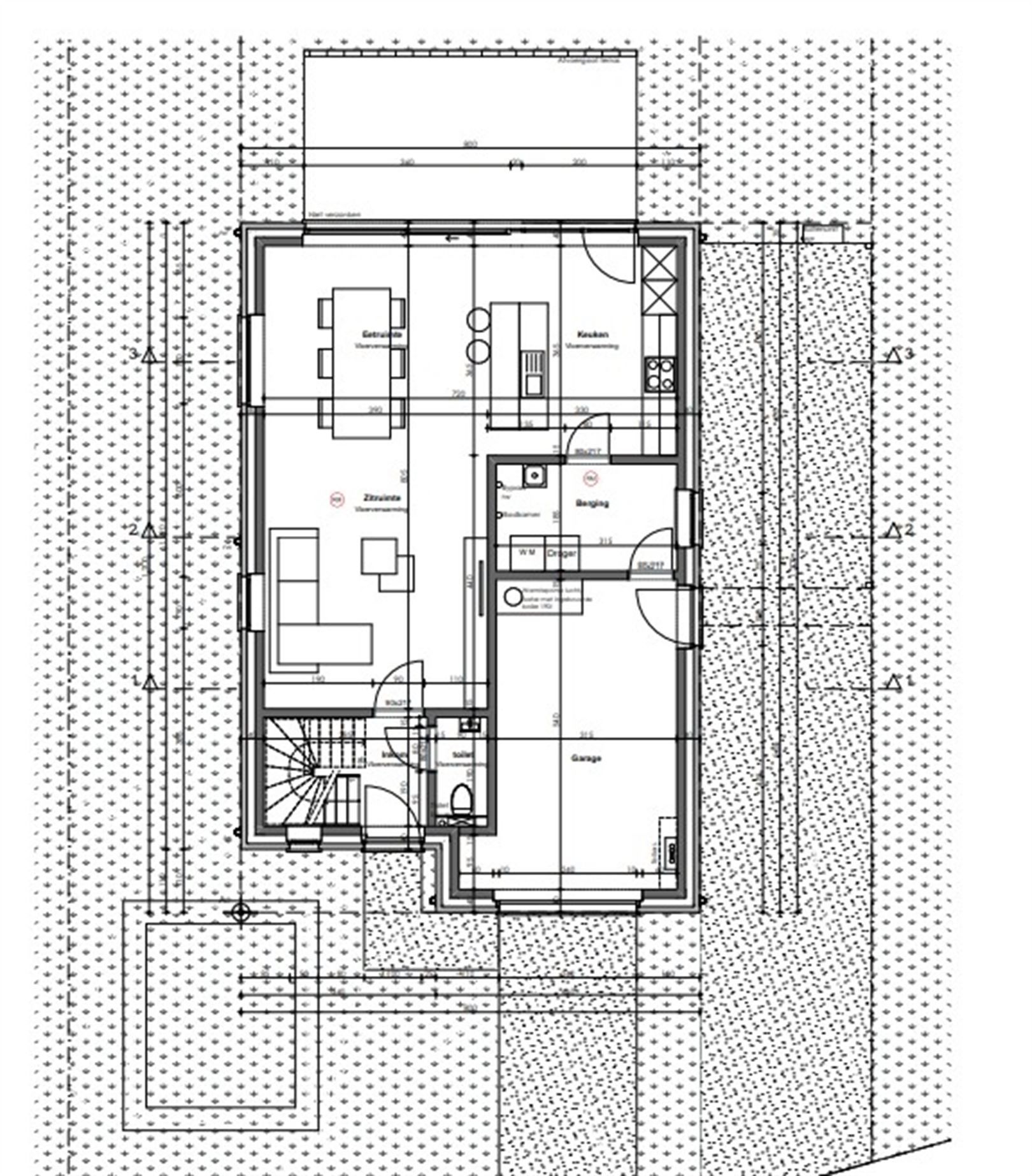
De bijgevoegde renders tonen een voorbeeldwoning. Heeft u interesse in een volledige uitwerking van dit project?
Neem snel contact met mij op voor meer informatie of om een bezoek te plannen. U kunt mij bereiken op het nummer 0476/76 38 76 of per e-mail via stijn@vastgoedkantoorvanassche.be.
Energie
- E-peil: E0
- Beglazing: Onbekend
Op de kaart

Financieel
Prijs | |
---|---|
Kadastraal inkomen (niet geïndexeerd) | € 0 |
Kadastraal inkomen (geïndexeerd) | € 0 |
Berekening kosten
Je aankoopkosten? Die heb je snel berekent via de knop hieronder.
Bijkomende info
Gebouw
Bouwcertificaat | Nee |
---|
Perceel
Overstromingsgevoelig | Geen |
---|---|
P-score | D |
Voorkeurrecht | Nee |
Totale oppervlakte (m²) | 1019 |
Vergunning
Vergunning | Vergunning beschikbaar |
---|---|
Verkavelingsvergunning | Vergunning beschikbaar |
Uitrusting
Investeringspand | Nee |
---|---|
Rioolaansluiting | Nee |
Gasaansluiting | Nee |
Wateraansluiting | Nee |
Elektriciteitsaansluiting | Nee |
TV aansluiting | Nee |
Internetaansluiting | Nee |
Telefoonaansluiting | Nee |
Leer meer over vastgoed
11 June 2025
Huis kopen met bouwovertreding? Dit moet je weten
11 May 2025
Renoveren? Vraag je Mijn VerbouwPremie aan
22 April 2025
Je allereerste renovatieproject selecteren én budgetteren: met de praktische hulp van Spotto
17 February 2025