!! NU KERNVERSTERKENDE PREMIE - Centraal gelegen handelspand met polyvalente mogelijkheden
Prijs op aanvraag
Een pand van Thiers Vastgoed & Advies
Jouw zoektocht
Overzicht
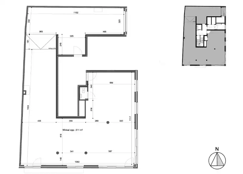
- 211 m² bewoonbaar
- 211 m² grond
Beschrijving
Deze nieuwbouw handel-, horeca of kantoorruimte, gelegen op de hoek van de Generaal Deprezstraat en Stasegemdorp zorgt ervoor dat u zeker GEZIEN wordt.
De oppervlakte binnenin bedraagt 211 m² waarvan u eventueel zelfs een deel als private garage kan gebruiken.
Er is de mogelijkheid om dit op te splitsen (87 m² - 124 m²).
De ruimte wordt verkocht ruwbouw-winddicht of kan naar eigen smaak afgewerkt worden door de diensten van de promotor.
U bent op zoek naar een pand voor een vliegende start?
Twijfel niet langer want hier bent u op de perfecte locatie.
DIT HANDELSPAND KOMT IN AANMERKING VOOR DE KERNVERSTERKENDE PREMIE(*)
(*) Bel ons voor meer info!
Bent u benieuwd? Wacht niet en mail ons op verkoop@groepthiers.be of bel 0499/11 77 66 - 056 21 61 61
Energie
- E-peil: E0
- Beglazing: Onbekend
Op de kaart

Financieel
Bijkomende info
Gebouw
| Bouwjaar | 2012 |
|---|---|
| Bewoonbaar (m²) | 211 |
| Verdieping | 0 |
| Badkamers | 0 |
| Slaapkamers | 0 |
| Verdiepingen | 4 |
| Garages | 0 |
| Parkeerplaatsen | 0 |
| Toiletten | 0 |
Faciliteiten
| Septische tank | Nee |
|---|
Perceel
| Totale oppervlakte (m²) | 211 |
|---|---|
| Bebouwde oppervlakte (m²) | 211 |
| Oriëntatie tuin | Zuidwest |
Vergunning
| Verkavelingsvergunning | Geen beschikbaar |
|---|
Uitrusting
| Investeringspand | Nee |
|---|---|
| Parking | Nee |
| Garage | Nee |
| Lift | Ja |
| Rioolaansluiting | Nee |
| Gasaansluiting | Ja |
| Wateraansluiting | Ja |
| Elektriciteitsaansluiting | Ja |
| Internetaansluiting | Nee |
| Telefoonaansluiting | Nee |
| Zonnepanelen | Nee |
| Zonneboiler | Nee |
| Alarm | Nee |
| Videofoon | Nee |
| Grondwaterput | Nee |
Appartementsblok
| Aantal verdiepingen | 4 |
|---|---|
| Lift | Ja |
| Intercom | Nee |