Nieuw
Bouwgrond voor hOB op goeie locatie in Bavikhove.
€ 140.000
Overzicht
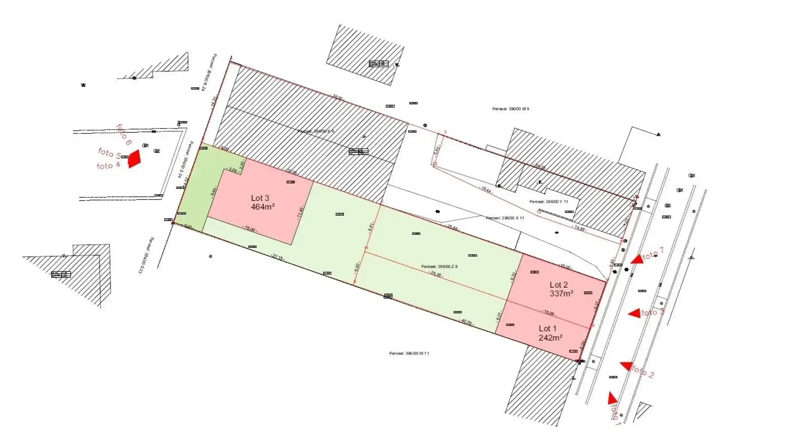
- 464 m² grond
Beschrijving
Te koop: bouwgrond voor HOB op toplocatie in Bavikhove – geen bouwverplichting
In een rustige en kindvriendelijke buurt in Bavikhove bevindt zich deze bouwgrond van 464m², op wandelafstand van het dorpscentrum, winkels en school.
Wat maakt dit perceel aantrekkelijk?
Het perceel biedt alle vrijheid dankzij de afwezigheid van bouwverplichting, waardoor je op eigen tempo en volgens jouw wensen kunt bouwen. De centrale ligging met snelle verbindingen naar de N36 en N50 maakt dit bovendien een bijzonder aantrekkelijke plek om te wonen.
Er is ook de mogelijkheid om het aangrenzend perceel van 337 m² extra aan te kopen.
Voor wie is dit ideaal?
Ideaal voor wie droomt van een eigen woning op een rustige, kindvriendelijke locatie, of voor investeerders die op zoek zijn naar een toekomstgerichte opportuniteit in het hart van Bavikhove.
Te koop via Immo Beguin, jouw vastgoedexpert sinds 2009.
Met kantoren in Ronse, Waregem, Kortrijk, Deinze, Doornik en Lessines.
Afspraak via feline@immobeguin.be
In een rustige en kindvriendelijke buurt in Bavikhove bevindt zich deze bouwgrond van 464m², op wandelafstand van het dorpscentrum, winkels en school.
Wat maakt dit perceel aantrekkelijk?
Het perceel biedt alle vrijheid dankzij de afwezigheid van bouwverplichting, waardoor je op eigen tempo en volgens jouw wensen kunt bouwen. De centrale ligging met snelle verbindingen naar de N36 en N50 maakt dit bovendien een bijzonder aantrekkelijke plek om te wonen.
Er is ook de mogelijkheid om het aangrenzend perceel van 337 m² extra aan te kopen.
Voor wie is dit ideaal?
Ideaal voor wie droomt van een eigen woning op een rustige, kindvriendelijke locatie, of voor investeerders die op zoek zijn naar een toekomstgerichte opportuniteit in het hart van Bavikhove.
Te koop via Immo Beguin, jouw vastgoedexpert sinds 2009.
Met kantoren in Ronse, Waregem, Kortrijk, Deinze, Doornik en Lessines.
Afspraak via feline@immobeguin.be
Te koop: bouwgrond voor HOB op toplocatie in Bavikhove – geen bouwverplichting
In een rustige en kindvriendelijke buurt in Bavikhove bevindt zich deze bouwgrond van 464m², op wandelafstand van het dorpscentrum, winkels en school.
Wat maakt dit perceel aantrekkelijk?
Het perceel biedt alle vrijheid dankzij de afwezigheid van bouwverplichting, waardoor je op eigen tempo en volgens jouw wensen kunt bouwen. De centrale ligging met snelle verbindingen naar de N36 en N50 maakt dit bovendien een bijzonder aantrekkelijke plek om te wonen.
Er is ook de mogelijkheid om het aangrenzend perceel van 337 m² extra aan te kopen.
Voor wie is dit ideaal?
Ideaal voor wie droomt van een eigen woning op een rustige, kindvriendelijke locatie, of voor investeerders die op zoek zijn naar een toekomstgerichte opportuniteit in het hart van Bavikhove.
Te koop via Immo Beguin, jouw vastgoedexpert sinds 2009.
Met kantoren in Ronse, Waregem, Kortrijk, Deinze, Doornik en Lessines.
Afspraak via feline@immobeguin.be
In een rustige en kindvriendelijke buurt in Bavikhove bevindt zich deze bouwgrond van 464m², op wandelafstand van het dorpscentrum, winkels en school.
Wat maakt dit perceel aantrekkelijk?
Het perceel biedt alle vrijheid dankzij de afwezigheid van bouwverplichting, waardoor je op eigen tempo en volgens jouw wensen kunt bouwen. De centrale ligging met snelle verbindingen naar de N36 en N50 maakt dit bovendien een bijzonder aantrekkelijke plek om te wonen.
Er is ook de mogelijkheid om het aangrenzend perceel van 337 m² extra aan te kopen.
Voor wie is dit ideaal?
Ideaal voor wie droomt van een eigen woning op een rustige, kindvriendelijke locatie, of voor investeerders die op zoek zijn naar een toekomstgerichte opportuniteit in het hart van Bavikhove.
Te koop via Immo Beguin, jouw vastgoedexpert sinds 2009.
Met kantoren in Ronse, Waregem, Kortrijk, Deinze, Doornik en Lessines.
Afspraak via feline@immobeguin.be
Energie
Op de kaart

Financieel
| Prijs |
|---|
Berekening kosten
Je aankoopkosten? Die heb je snel berekent via de knop hieronder.
Bijkomende info
Perceel
| Totale oppervlakte (m²) | 464 |
|---|
Vergunning
| Vergunning | Geen beschikbaar |
|---|---|
| Verkavelingsvergunning | Geen beschikbaar |
Leer meer over vastgoed
Nieuw
24 November 2025
Uitgezocht voor jouw gemeente: Hoeveel stijgt de waarde van je woning door een renovatie?
22 October 2025
Hoeveel kan ik lenen om een huis te kopen?
11 June 2025
Huis kopen met bouwovertreding? Dit moet je weten
11 May 2025