Op zoek naar een moderne woning rustig gelegen?
€ 435.000
Een pand van ERIBO
Favoriet
Jouw zoektocht
Jouw scoretabel voor dit pand
Aan het laden...
Jouw geplande bezichtigingen
Aan het laden...
Overzicht
- 173.6 m² bewoonbaar
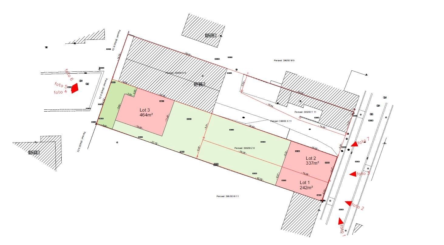
- 337 m² grond
- 3 Slaapkamer(s)
- 1 Badkamer(s)
- 2 Toilet(ten)
- 1 Tuin
Beschrijving
Word eigenaar van deze moderne woning met aangename tuin in Bavikhove! De woning ligt op een rustige ligging vlak bij het centrum van het dorp, vlak naast het plaatselijke schooltje en verderop de kerk. In enkele minuten ben je met de auto aan de N36 en N50, kortom een ideale locatie.
Nog niet volledig overtuigd van dit ontwerp? Wil je aanpassingen op vlak van indeling en afwerking? Dat kan. We begeleiden je graag van plan tot oplevering bij het ontwerp van jullie droomwoning.
Daarnaast vergezellen we je tijdens je bezoeken aan de verschillende showrooms en adviseren je over materialen om je woning piekfijn af te werken, kortom, we ontzorgen je van ontwerp tot oplevering. De woning is voorzien van een warmtepomp en zonnepanelen op het dak. We streven naar een energiezuinige woning met gunstig E-peil dat beter is dan de norm. Daardoor zou je ook een korting van maar liefst 100 % op de onroerende voorheffing gedurende 5 jaar kunnen verkrijgen. Er is overal vloerverwarming aanwezig. En vraaggestuurde ventilatie voor een gezond klimaat in huis. Grote ramen zorgen dan weer voor veel natuurlijke lichtinval en vergroten het ruimtegevoel in je woning.
De woningen worden in detail afgewerkt met hoogwaardige materialen en de nieuwste technieken en voldoen aan de hedendaagse comforteisen, met veel aandacht voor thermische en akoestische isolatie. Eribo staat garant voor kwaliteit en de beste service ! Daarom bouwen we niet enkel je huis maar creëren we ook samen een thuis.
Meer informatie via www.eribo.be of contacteer ons via ben@eribo.be of 0488/942.643
Nog niet volledig overtuigd van dit ontwerp? Wil je aanpassingen op vlak van indeling en afwerking? Dat kan. We begeleiden je graag van plan tot oplevering bij het ontwerp van jullie droomwoning.
Daarnaast vergezellen we je tijdens je bezoeken aan de verschillende showrooms en adviseren je over materialen om je woning piekfijn af te werken, kortom, we ontzorgen je van ontwerp tot oplevering. De woning is voorzien van een warmtepomp en zonnepanelen op het dak. We streven naar een energiezuinige woning met gunstig E-peil dat beter is dan de norm. Daardoor zou je ook een korting van maar liefst 100 % op de onroerende voorheffing gedurende 5 jaar kunnen verkrijgen. Er is overal vloerverwarming aanwezig. En vraaggestuurde ventilatie voor een gezond klimaat in huis. Grote ramen zorgen dan weer voor veel natuurlijke lichtinval en vergroten het ruimtegevoel in je woning.
De woningen worden in detail afgewerkt met hoogwaardige materialen en de nieuwste technieken en voldoen aan de hedendaagse comforteisen, met veel aandacht voor thermische en akoestische isolatie. Eribo staat garant voor kwaliteit en de beste service ! Daarom bouwen we niet enkel je huis maar creëren we ook samen een thuis.
Meer informatie via www.eribo.be of contacteer ons via ben@eribo.be of 0488/942.643
Energie
- Verwarming: Geen
- Beglazing: Onbekend
Op de kaart

Financieel
| Prijs | |
|---|---|
| Kadastraal inkomen (niet geïndexeerd) | € 0 |
| Kadastraal inkomen (geïndexeerd) | € 0 |
Berekening kosten
Je aankoopkosten? Die heb je snel berekend via de knop hieronder.
Bijkomende info
Gebouw
| Is beschermd | Nee |
|---|---|
| Bewoonbaar (m²) | 173.6 |
| Badkamers | 1 |
| Slaapkamers | 3 |
| Verdiepingen | 2 |
| Toiletten | 2 |
Faciliteiten
| Luiken | Nee |
|---|---|
| Primair verwarmingstype | Geen verwarming |
| Brandstof primaire verwarming | Geen |
| Warm water type | Geen verwarming |
Perceel
| Overstromingsgevoelig | Geen |
|---|---|
| P-score | A |
| Voorkeurrecht | Nee |
| Totale oppervlakte (m²) | 337 |
| Oriëntatie tuin | ZuidOost |
Vergunning
| Vergunning | Geen beschikbaar |
|---|---|
| Verkavelingsvergunning | Vergunning beschikbaar |
| Bouwovertreding dagvaardiging | Geen |
| Type gebied | Stedelijk |
Uitrusting
| Meerdere eigenaars | Nee |
|---|---|
| Geschikt als kangoeroewoning | Nee |
| Geschikt voor rolstoelgebruikers | Nee |
| Geschikt voor praktijk | Nee |
| Volledig onderkelderd | Nee |
| Parking | Nee |
| Garage | Ja |
| Thuiskantoor | Nee |
| Kelder | Nee |
| Zolder | Nee |
| Opslagruimte | Ja |
| Tuin | Ja |
| Terras | Ja |
| Lift | Nee |
| Rioolaansluiting | Ja |
| Gasaansluiting | Nee |
| Wateraansluiting | Ja |
| Elektriciteitsaansluiting | Ja |
| TV aansluiting | Nee |
| Internetaansluiting | Nee |
| Zonnepanelen | Nee |
| Zonneboiler | Nee |
| Alarm | Nee |
| Zwembad | Nee |
| Jacuzzi | Nee |
| Toonzaal | Nee |
| Ventilatie | Nee |
Een pand van
ERIBO
Eribo Stijlbouwers
We zijn Stijlbouwers. We ontwikkelen, bouwen en verkopen voornamelijk woonprojecten. En doen dat in onze eigen stijl. Met absolute focus op kwaliteit en betrokkenheid. Dat zie je in onze projecten. En dat voel je in de manier waarop we ze aanpakken – in stijl.
Elk project is een persoonlijke uitnodiging om mooi te wonen en in stijl te leven. Elke keer een gelegenheid om woondromen waar te maken, op een positieve manier, zoals we het zelf ook zouden willen ervaren. De lat hoger, en de klant op één – dat is onze stijl.
Bij Eribo geniet je de ervaring van een aannemer, de visie van een ontwikkelaar en de feeling van een vastgoedexpert.
Nieuwbouwwoning Bavikhove - Bruyelstraat Immoweb Z
Leer meer over vastgoed
23 March 2026
Op Spotto zoeken als een pro: 10 slimme tips
21 March 2026
Hoeveel kan ik lenen om een huis te kopen?
01 March 2026
Wanneer heb ik een bouwvergunning of omgevingsvergunning nodig?
17 February 2026