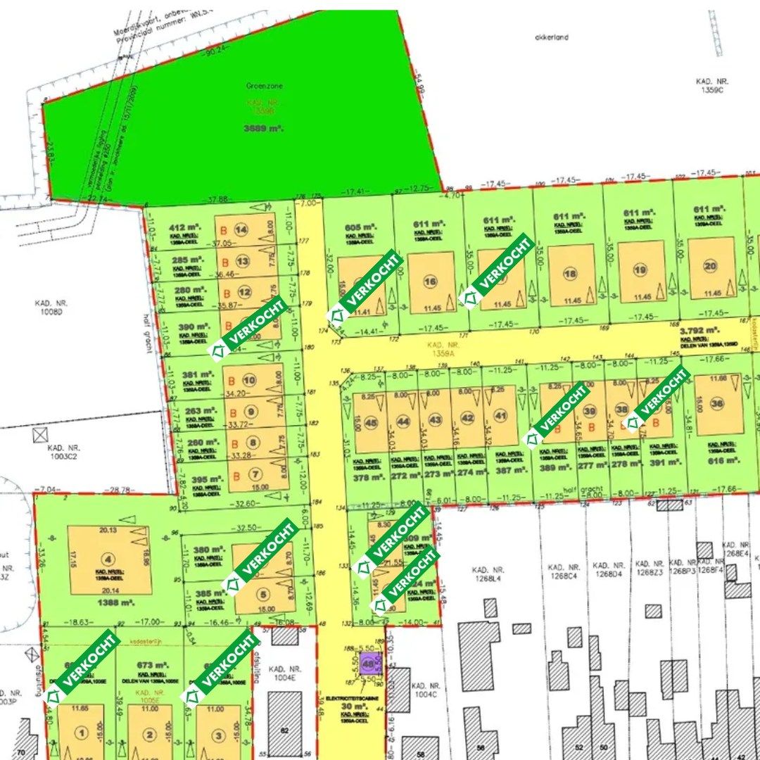
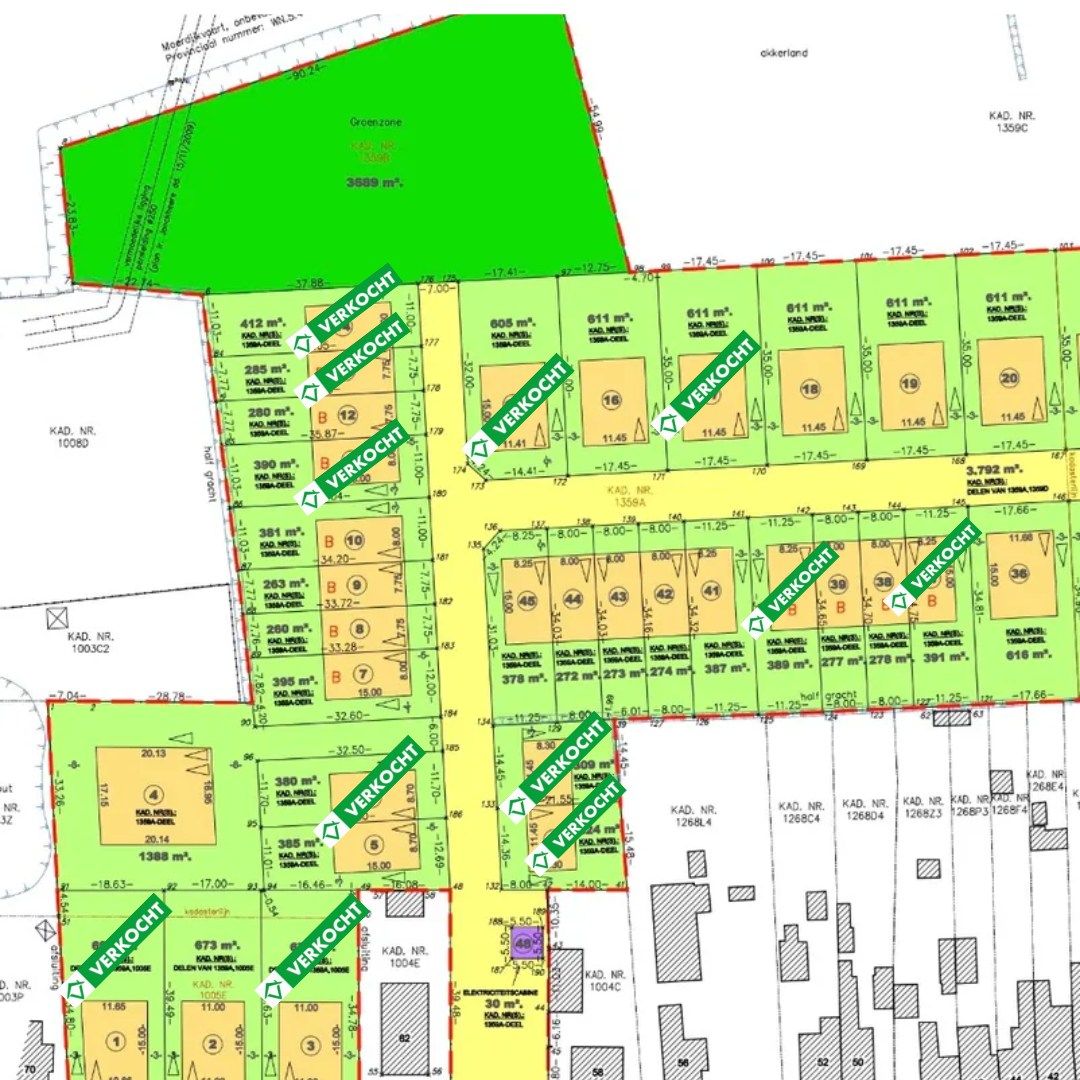
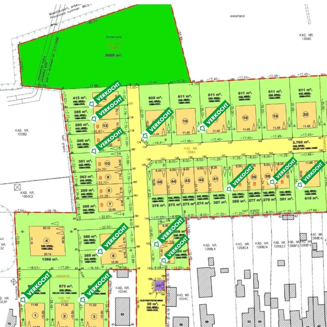
Oops, verkocht
Aangeboden door Vastgoed Sinnaeve
Dit pand is niet meer beschikbaar, maar we hebben nog 12 alternatieve panden in Koekelare voor jou gevonden.
We hebben nog 12 alternatieve panden in Koekelare voor jou gevonden.
Resultaten in Koekelare
- Te koop
- Gronden
12 panden gevonden in
Koekelare
Dat zijn alle gronden in Koekelare. Hieronder vind je andere types woningen in de omgeving van Koekelare. Via de knop hiernaast krijg je een melding als er nieuwe gronden beschikbaar komen.


