Ruime nieuwbouwwoning met 3 slaapkamers
 € 362.000  
Een pand van Immo Van Parijs
Overzicht
- 155 m² bewoonbaar
 - 376 m² grond
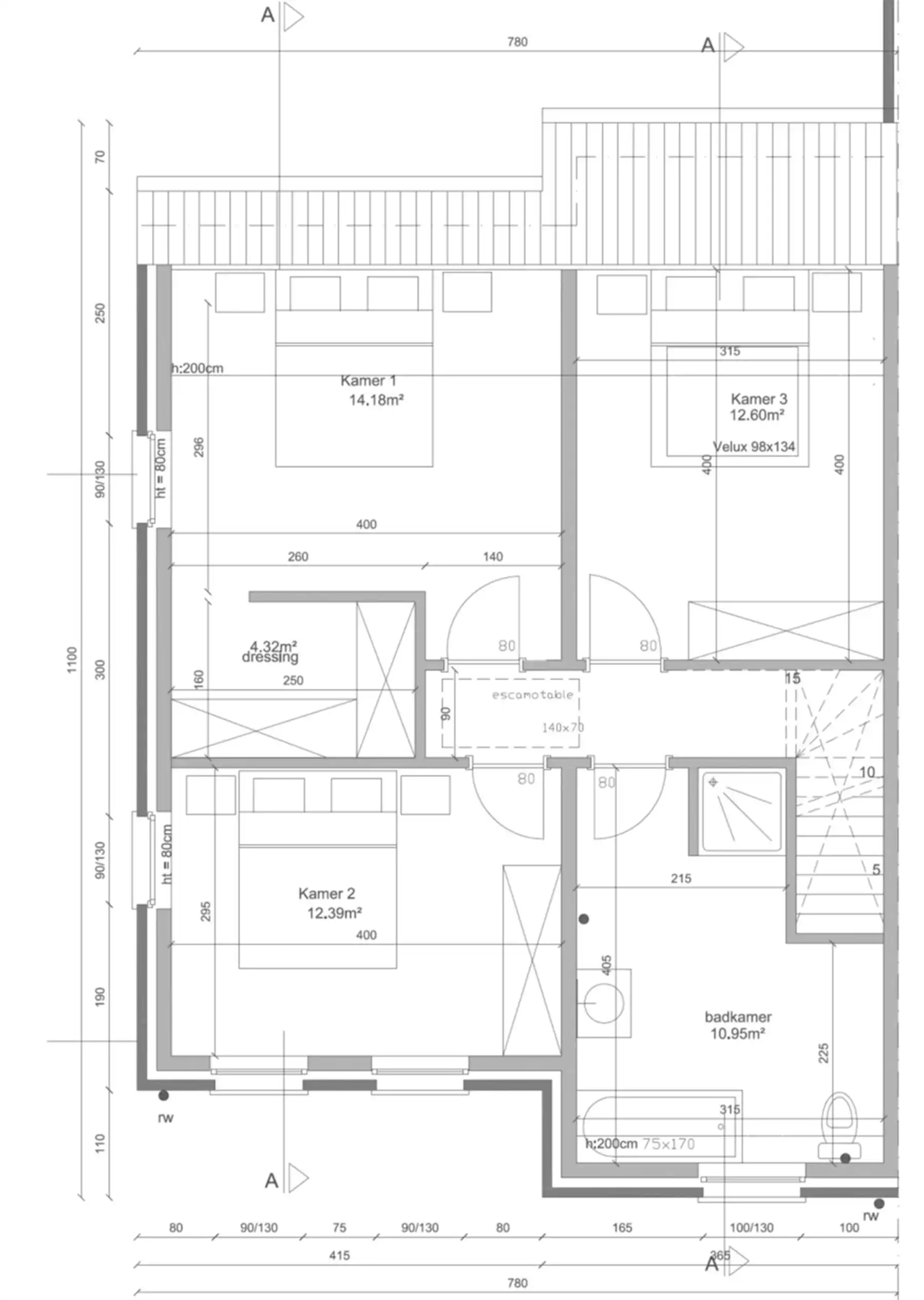
 - 3 Slaapkamer(s)
 - 1 Badkamer(s)
 - 2 Toilet(ten)
 - 1 Tuin
 
Beschrijving
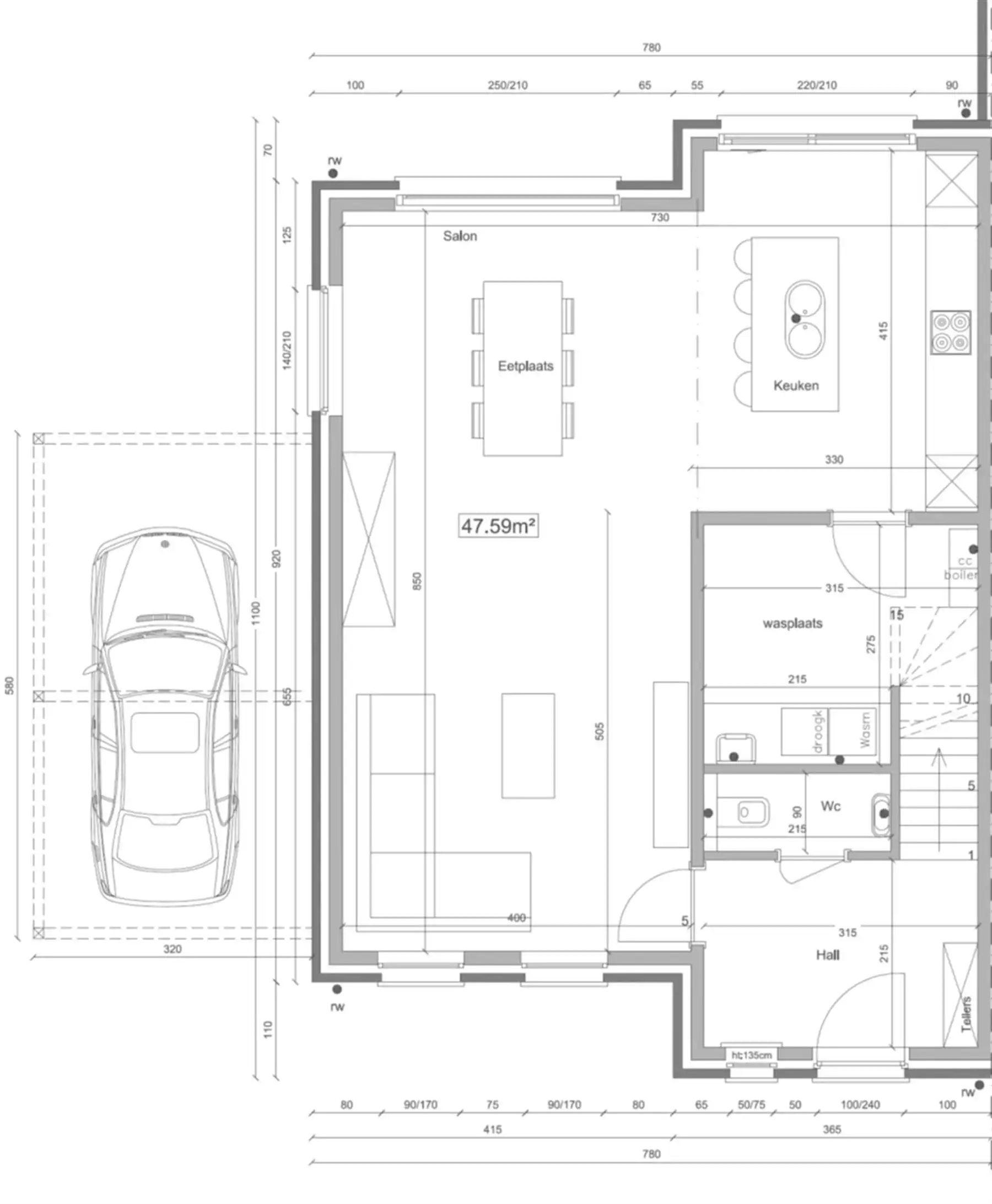
Deze prachtige nieuwbouwwoning is de ideale thuis voor jonge gezinnen. We komen binnen via de inkom met gastentoilet. De ruime leefruimte met open keuken biedt veel mogelijkheden en een mooi zicht op de tuin. De woning is voorzien van een ruime wasplaats met veel bergruimte. Op de verdieping vinden we 3 ruime slaapkamers, een dressing en een badkamer. In de badkamer wordt een inloopdouche en een ligbad voorzien. De zolder is te bereiken via een uitvaltrap. De woning biedt een ruime tuin, die naar keuze aan te leggen is. De woning wordt voorzien van een carport.
De woning wordt op dit moment wind-en waterdicht gezet. U kan dus zelf nog mee kiezen in het interieur en design van de woning. Zo kiest u voor een woning die volledig op uw eigen smaak afgesteld is. Hiervoor zijn reeds volwaardige budgetten in de prijs inbegrepen.
Om u een goed beeld te kunnen geven van onze afwerking, werd reeds een woning als kijkwoning opgemaakt. Op die manier heeft u meteen een realistisch beeld van de toekomstige afwerking en kwaliteit.
Heeft u interesse in deze woning en wenst u de kijkwoning te bezoeken: neem dan contact op met Vincent op het nummer 056 29 30 30.
Nog enkele woningen te koop in dit project. Contacteer ons gerust voor meer info.
Energie
- EPC Certificaat: EPB beschikbaar bij oplevering
 - E-peil: E0
 - Verwarming: Gas
 - Beglazing: Standaard dubbel
 
Op de kaart

Financieel
| Prijs | |
|---|---|
| Kadastraal inkomen (niet geïndexeerd) | € 0 | 
| Kadastraal inkomen (geïndexeerd) | € 0 | 
Berekening kosten
Je aankoopkosten? Die heb je snel berekent via de knop hieronder.
Bijkomende info
Gebouw
| Bouwjaar | 2023 | 
|---|---|
| Staat | Nieuw | 
| Bouwcertificaat | Nee | 
| Bewoonbaar (m²) | 155 | 
| Verdieping | 3 | 
| Gevelbreedte | 7.8 | 
| Badkamers | 1 | 
| Slaapkamers | 3 | 
| Verdiepingen | 0 | 
| Garages | 0 | 
| Parkeerplaatsen | 2 | 
| Doucheruimtes | 0 | 
| Toiletten | 2 | 
Faciliteiten
| Materiaal ramenomlijstingen | PVC | 
|---|---|
| Beglazing | Standaard dubbel | 
| Brandstof primaire verwarming | Gas | 
| Elektrisch keuringsattest | Ja | 
Perceel
| Overstromingsgevoelig | Geen | 
|---|---|
| P-score | B | 
| G-score | B | 
| Voorkeurrecht | Nee | 
| Totale oppervlakte (m²) | 376 | 
| Bebouwde oppervlakte (m²) | 83 | 
| Tuin oppervlakte (m²) | 0 | 
| Oppervlakte terras (m²) | 0 | 
Vergunning
| Vergunning | Vergunning beschikbaar | 
|---|---|
| Verkavelingsvergunning | Vergunning beschikbaar | 
Uitrusting
| Investeringspand | Nee | 
|---|---|
| Geschikt voor praktijk | Nee | 
| Parking | Ja | 
| Garage | Nee | 
| Thuiskantoor | Nee | 
| Kelder | Nee | 
| Zolder | Nee | 
| Tuin | Ja | 
| Terras | Ja | 
| Lift | Nee | 
| Rioolaansluiting | Ja | 
| Gasaansluiting | Ja | 
| Wateraansluiting | Ja | 
| Elektriciteitsaansluiting | Ja | 
| TV aansluiting | Ja | 
| Internetaansluiting | Ja | 
| Telefoonaansluiting | Ja |