Luxueus afgewerkte villa te koop op topligging te Wielsbeke
€ 790.000
Een pand van Maes Concept Immo
Favoriet
Jouw zoektocht
Jouw scoretabel voor dit pand
Aan het laden...
Jouw geplande bezichtigingen
Aan het laden...
Overzicht
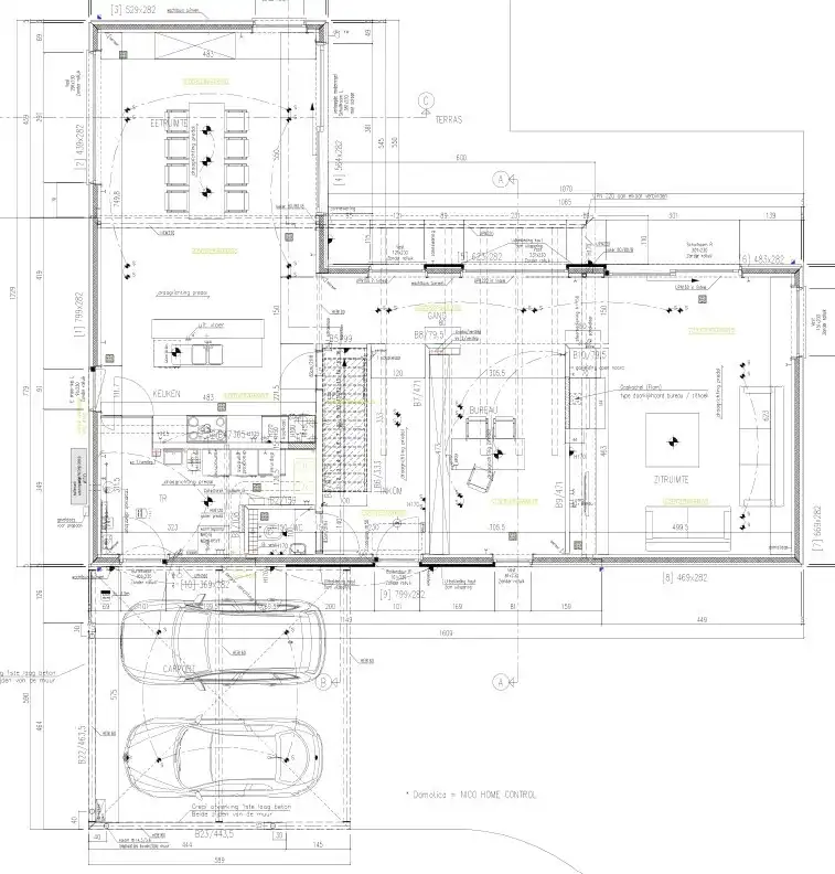
- 230 m² bewoonbaar
- 800 m² grond
Beschrijving
Ontdek deze prachtig nog te bouwen woning op een perceel van 800m2 en een bewoonbare oppervlakte van 230 m2 op toplocatie te Wielsbeke.
Gelegen in een rustige, groene en kindvriendelijke buurt met vlotte verbindingen naar winkels, scholen en het centrum. Een ideale plek voor wie rustig wil wonen, maar toch alles binnen handbereik wil hebben.
Identiek dezelfde woning werd reeds gebouwd in Wortegem daar werden de foto's genomen.
Deze woning kan bezocht worden om zicht te krijgen op afwerking en materialen
Troeven
Voor meer info of een bezoek ter plaatse, contacteer Martijn via
Gelegen in een rustige, groene en kindvriendelijke buurt met vlotte verbindingen naar winkels, scholen en het centrum. Een ideale plek voor wie rustig wil wonen, maar toch alles binnen handbereik wil hebben.
Identiek dezelfde woning werd reeds gebouwd in Wortegem daar werden de foto's genomen.
Deze woning kan bezocht worden om zicht te krijgen op afwerking en materialen
- Registratierechten op grond
- Btw op constructie
Troeven
- dubbele carport
- regenwaterput 10.000 L
- lucht-water warmtepomp
- vloerverwarming beneden en boven
- aluminium schrijnwerk
- drie dubbel glas
- zonnepanelen
Voor meer info of een bezoek ter plaatse, contacteer Martijn via
- martijn@maesconceptimmo.be
- 0470/62.95.68
Energie
- E-peil: E0
- Beglazing: Onbekend
Op de kaart

Financieel
| Prijs |
|---|
Bijkomende info
Gebouw
| Bouwjaar | 2026 |
|---|---|
| Bewoonbaar (m²) | 230 |
| Badkamers | 0 |
| Slaapkamers | 0 |
| Verdiepingen | 0 |
| Garages | 0 |
| Parkeerplaatsen | 0 |
| Toiletten | 0 |
Faciliteiten
| Septische tank | Nee |
|---|
Perceel
| Totale oppervlakte (m²) | 800 |
|---|---|
| Bebouwde oppervlakte (m²) | 0 |
Vergunning
| Verkavelingsvergunning | Vergunning beschikbaar |
|---|
Uitrusting
| Investeringspand | Nee |
|---|---|
| Parking | Nee |
| Garage | Nee |
| Lift | Nee |
| Rioolaansluiting | Nee |
| Gasaansluiting | Nee |
| Wateraansluiting | Nee |
| Elektriciteitsaansluiting | Nee |
| Internetaansluiting | Nee |
| Telefoonaansluiting | Nee |
| Zonnepanelen | Nee |
| Zonneboiler | Nee |
| Alarm | Nee |
| Videofoon | Nee |
| Grondwaterput | Nee |
Een pand van
Maes Concept Immo
Maesters in vastgoed
Welkom thuis.
Welkom bij Maes Concept Immo.
Een vastgoedkantoor gespecialiseerd in verkoop, verhuur, rentmeesterschap en projectontwikkeling in regio West- en Oost-Vlaanderen.
Waarden
Wist je dat onze werknemers een gemeenschappelijk stukje DNA hebben?
De klant is koning. Dat is ook hun toekomst.
Wij bouwen mee aan de toekomst van de klant door mee te denken in hun verhaal.
Ondernemen. Innovatief ondernemen.
We nemen initiatief voor onze klanten om nieuwe oplossingen en mogelijkheden te realiseren.
Mensen staan voorop. Bij alles wat we doen.
We hebben respect voor onze klanten en collega’s. We zijn betrouwbaar en enthousiast. Onze onderaannemers zijn erg belangrijk voor ons, net als de planeet die we delen. Samenwerkingen helpen ons vooruit te komen.
Meer info?
Bel ons op 056/722.180 voor een afspraak of mail naar info@maesconceptimmo.be
Wie-Wandellaan bouwgrondC
Leer meer over vastgoed
24 April 2026
Duurzaam gelegen woning? Check je Mobiscore
23 March 2026
Op Spotto zoeken als een pro: 10 slimme tips
21 March 2026
Hoeveel kan ik lenen om een huis te kopen?
01 March 2026