Nieuwbouw KMO-units 4.03 te Dentergem
€ 415.000
Een pand van OREON PROPERTIES
Favoriet
Jouw zoektocht
Jouw scoretabel voor dit pand
Aan het laden...
Jouw geplande bezichtigingen
Aan het laden...
Overzicht
- 276.39 m² bewoonbaar
Beschrijving
ALGEMEEN
Nieuwbouw KMO-unit te koop in Dentergem
Beschikbare unit 4.03 heeft een oppervlakte van 276,39m².
Strategisch gelegen tussen Tielt-Deinze-Waregem.
De unit beschikt over een sectionaal poort, 2 parkeerplaatsen
Naast productie en opslag, zijn commerciële activiteiten ook toegelaten.
FINANCIEEL
Totaalprijs (excl. registratierechten, BTW, kosten)
Nieuwbouw KMO-unit te koop in Dentergem
Beschikbare unit 4.03 heeft een oppervlakte van 276,39m².
Strategisch gelegen tussen Tielt-Deinze-Waregem.
De unit beschikt over een sectionaal poort, 2 parkeerplaatsen
Naast productie en opslag, zijn commerciële activiteiten ook toegelaten.
FINANCIEEL
Totaalprijs (excl. registratierechten, BTW, kosten)
ALGEMEEN
Nieuwbouw KMO-unit te koop in Dentergem
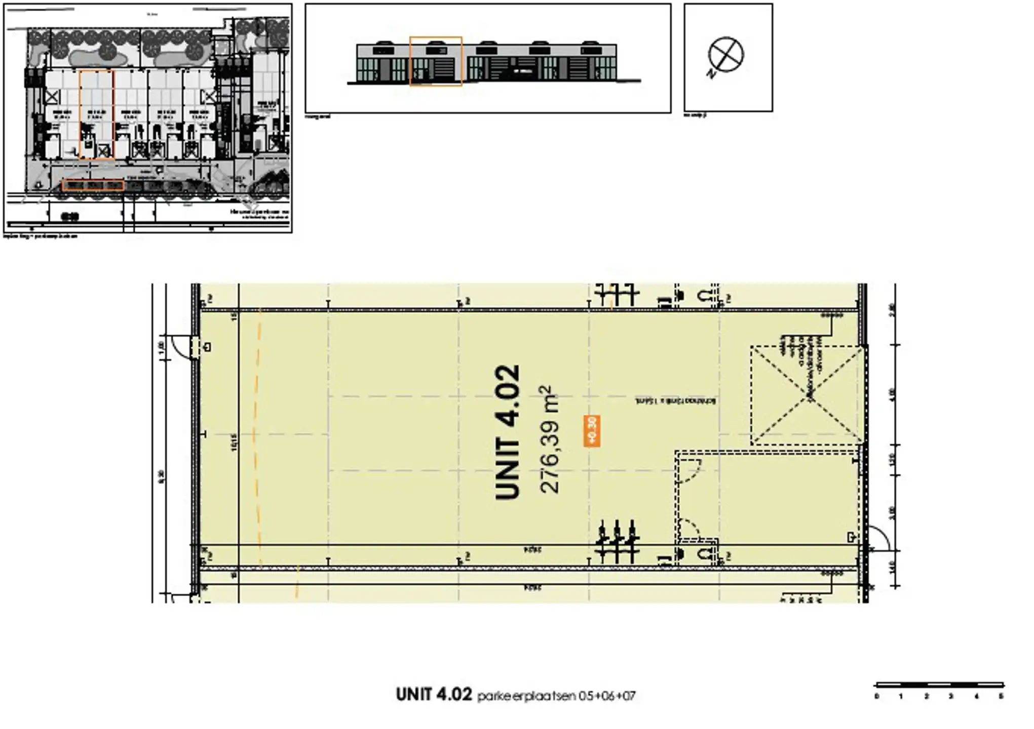
Beschikbare unit 4.023heeft een oppervlakte van 276,39 m².
Strategisch gelegen tussen Tielt-Deinze-Waregem.
De unit beschikt over een sectionaal poort, 2 parkeerplaatsen
Naast productie en opslag, zijn commerciële activiteiten ook toegelaten.
FINANCIEEL
Totaalprijs (excl. registratierechten, BTW, kosten)
420.000,00€
Niet inbegrepen in de verkoopprijs en ten laste van de koper :
- alle kosten, rechten en erelonen van en voor de notariële aktes
- B.T.W. en verkooprechten; Alle veranderingen in het thans in voege zijnde BTW-tarief; hetzij verhoging, hetzij verlaging en alle tegemoetkomingen van overheidswege onder vorm van toelage, teruggave of anderszins, zijn uitsluitend in
het voor- of nadeel van de koper.
- de kosten van opmeting en plan (niet het bouwplan)
- het aandeel in de kosten van de verkavelings- en splitsingsakte / basisakte; De kosten verbonden aan de administratieve stukken zoals het bodemattest, stedenbouwkundige informatie / uittreksel uit het plannen- en vergunningenregister, zijn ten laste van de de verkoper in het kader
van de wettelijke leveringsplicht van de verkoper
- de kosten voor de opmaak van het postinterventiedossier
- de kosten inzake definitieve aansluitingen (incl. installaties, aankoppelingen, keuringen, indienststellingen, infra, waarborgen, ...) met de nutsmaatschappijen en eventuele distributiecabines / netuitbreidingen
nutsen
- De verkoper zal dit coördineren en hiervoor wordt 10% coördinatiefee gerekend op het aandeel van de koper in voormelde kosten. Deze kosten zijn op heden niet definitief gekend. Er wordt hiervoor thans
door de koper een provisie betaald van € 7.500,00 (excl BTW) per unit. Van zodra deze kosten definitief gekend zijn, wordt door de verkoper een afrekening betreffende deze kosten opgesteld en zal dit
worden verrekend met de koper
- de eventuele door de koper aan de verkoper van de constructies bestelde meerwerken
- de verbruikskosten voor water, elektriciteit, ... vanaf de voorlopige oplevering
- de onroerende voorheffing en alle belastingen of taksen zullen door de koper gedragen worden vanaf de voorlopige oplevering
- alle sommen die opvorderbaar zouden worden ingevolge een eventuele meerwaarde door het bevoegd fiscaal bestuur vastgesteld
- de bijdrage in het verplicht lidmaatschap van de op te richten / opgerichte VZW Parkmanagement (max. € 500,00 per jaar)
Nieuwbouw KMO-unit te koop in Dentergem
Beschikbare unit 4.023heeft een oppervlakte van 276,39 m².
Strategisch gelegen tussen Tielt-Deinze-Waregem.
De unit beschikt over een sectionaal poort, 2 parkeerplaatsen
Naast productie en opslag, zijn commerciële activiteiten ook toegelaten.
FINANCIEEL
Totaalprijs (excl. registratierechten, BTW, kosten)
420.000,00€
Niet inbegrepen in de verkoopprijs en ten laste van de koper :
- alle kosten, rechten en erelonen van en voor de notariële aktes
- B.T.W. en verkooprechten; Alle veranderingen in het thans in voege zijnde BTW-tarief; hetzij verhoging, hetzij verlaging en alle tegemoetkomingen van overheidswege onder vorm van toelage, teruggave of anderszins, zijn uitsluitend in
het voor- of nadeel van de koper.
- de kosten van opmeting en plan (niet het bouwplan)
- het aandeel in de kosten van de verkavelings- en splitsingsakte / basisakte; De kosten verbonden aan de administratieve stukken zoals het bodemattest, stedenbouwkundige informatie / uittreksel uit het plannen- en vergunningenregister, zijn ten laste van de de verkoper in het kader
van de wettelijke leveringsplicht van de verkoper
- de kosten voor de opmaak van het postinterventiedossier
- de kosten inzake definitieve aansluitingen (incl. installaties, aankoppelingen, keuringen, indienststellingen, infra, waarborgen, ...) met de nutsmaatschappijen en eventuele distributiecabines / netuitbreidingen
nutsen
- De verkoper zal dit coördineren en hiervoor wordt 10% coördinatiefee gerekend op het aandeel van de koper in voormelde kosten. Deze kosten zijn op heden niet definitief gekend. Er wordt hiervoor thans
door de koper een provisie betaald van € 7.500,00 (excl BTW) per unit. Van zodra deze kosten definitief gekend zijn, wordt door de verkoper een afrekening betreffende deze kosten opgesteld en zal dit
worden verrekend met de koper
- de eventuele door de koper aan de verkoper van de constructies bestelde meerwerken
- de verbruikskosten voor water, elektriciteit, ... vanaf de voorlopige oplevering
- de onroerende voorheffing en alle belastingen of taksen zullen door de koper gedragen worden vanaf de voorlopige oplevering
- alle sommen die opvorderbaar zouden worden ingevolge een eventuele meerwaarde door het bevoegd fiscaal bestuur vastgesteld
- de bijdrage in het verplicht lidmaatschap van de op te richten / opgerichte VZW Parkmanagement (max. € 500,00 per jaar)
Energie
Op de kaart

Financieel
| Prijs |
|---|
Berekening kosten
Je aankoopkosten? Die heb je snel berekend via de knop hieronder.
Bijkomende info
Gebouw
| Staat | Nieuw |
|---|---|
| Bewoonbaar (m²) | 276.39 |
| Verdieping | 0 |
| Gevels | 4 |
| Badkamers | 0 |
| Slaapkamers | 0 |
| Parkeerplaatsen | 2 |
Faciliteiten
| Type vloer |
|---|
Perceel
| Tuin oppervlakte (m²) | 0 |
|---|
Vergunning
| Vergunning | Geen beschikbaar |
|---|---|
| Verkavelingsvergunning | Geen beschikbaar |
Uitrusting
| Parking | Nee |
|---|---|
| Garage | Nee |
| Tuin | Nee |
| Terras | Nee |
Een pand van
OREON PROPERTIES
Oreon Properties
Vastgoedmakelaar Oreon Properties is uw expert op het vlak van (ver)huur of (ver)koop van kantoren, logistiek of industrieel vastgoed, investeren in vastgoed en vastgoedbeheer. Investeerders en ondernemingen die op zoek zijn naar kantoren, logistiek of industrieel vastgoed kunnen bij Oreon Properties aankloppen voor professioneel advies op maat en begeleiding bij al hun investeringen en vastgoedtransacties.
5570941
Leer meer over vastgoed
04 January 2026
Zoek je een kantoor, een magazijn of… iets ertussenin? Bedrijfsvastgoed uitgelegd
05 November 2024
Bedrijfsvastgoed in transitie: ontdek de toekomst van werkplekken
16 October 2024
Opbrengsteigendom: een slim pad naar passief inkomen en vermogensgroei
09 September 2024