Nieuw
Instapklaar 2-slpk appartement aan station RSL
Een pand van Futurimmo
Overzicht
- 109 m² bewoonbaar
- 2 Slaapkamer(s)
- 1 Badkamer(s)
- 1 Living(s)
- 1 Garage(s)
Beschrijving
TOPPER MET INTERESSANTE PRIJS!
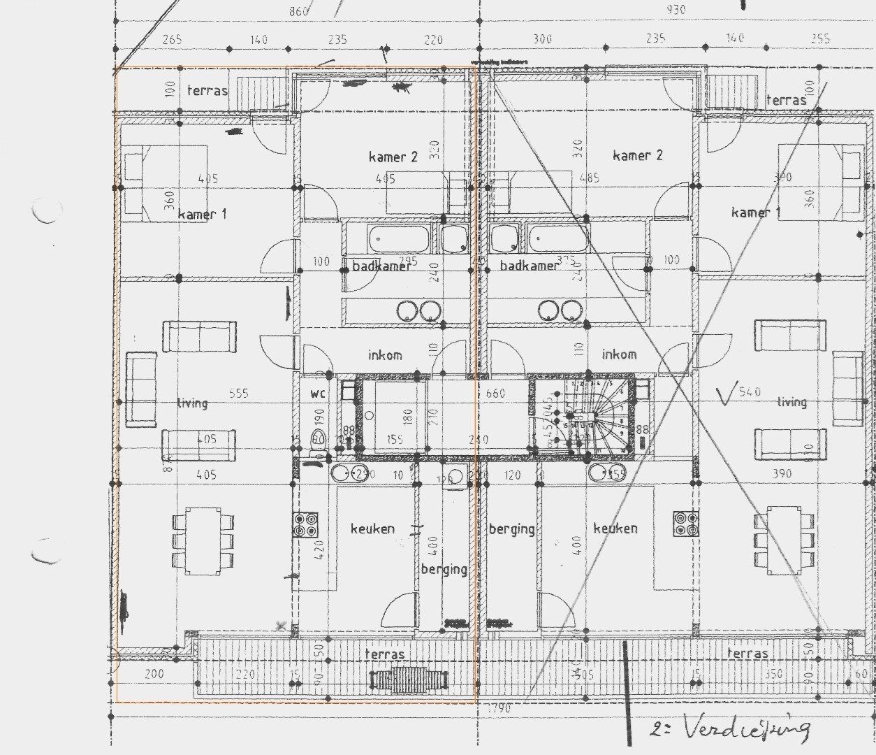
Dit leuke en lichtrijke 2-slpk appartement van 109m² vinden we op de tweede verdieping in Residentie Oriënt, een rustig gebouw tegenover het station en vlakbij het stadscentrum.
Een perfecte ligging voor de Roeselaarse stadsmus maar ook voor wie vaak van het openbaar vervoer gebruik maakt.
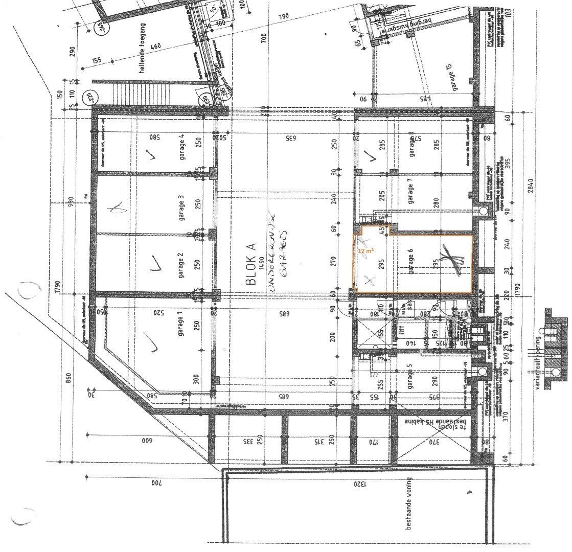
De ondergrondse garage (automatische poort) is heel handig en wordt verplicht mee verkocht.
Het energiezuinige appartement (label B - 109 kWh/m²) bevindt zich in een goed onderhouden , verzorgde staat en werd pas volledig herschilderd. Ze biedt tal van extra's en troeven zoals 2 airco's, zonnescreen, berging met maatkasten, conforme elektrische installatie, Fiber aansluiting,...
Bovendien is dit appartement ook heel interessant voor investeerders.
Details van de indeling:
inkomhal - ruime woonkamer (33m²) met halfopen ingerichte keuken - zongericht terras (7m²) - praktische berging - ruime badkamer met douchecel & wasplaats - slaapkamer 1 (14,50m²/airco/balkon) - slaapkamer 2 (13m²/elektrisch rolluik).
Dit leuke en lichtrijke 2-slpk appartement van 109m² vinden we op de tweede verdieping in Residentie Oriënt, een rustig gebouw tegenover het station en vlakbij het stadscentrum.
Een perfecte ligging voor de Roeselaarse stadsmus maar ook voor wie vaak van het openbaar vervoer gebruik maakt.
De ondergrondse garage (automatische poort) is heel handig en wordt verplicht mee verkocht.
Het energiezuinige appartement (label B - 109 kWh/m²) bevindt zich in een goed onderhouden , verzorgde staat en werd pas volledig herschilderd. Ze biedt tal van extra's en troeven zoals 2 airco's, zonnescreen, berging met maatkasten, conforme elektrische installatie, Fiber aansluiting,...
Bovendien is dit appartement ook heel interessant voor investeerders.
Details van de indeling:
inkomhal - ruime woonkamer (33m²) met halfopen ingerichte keuken - zongericht terras (7m²) - praktische berging - ruime badkamer met douchecel & wasplaats - slaapkamer 1 (14,50m²/airco/balkon) - slaapkamer 2 (13m²/elektrisch rolluik).
Energie
![]() |
- EPC Certificaat: 20250218-0003529470-RES-1
- Verwarming: Gas
- Beglazing: Standaard dubbel
Op de kaart

Financieel
Prijs | |
---|---|
Kadastraal inkomen (niet geïndexeerd) | € 1.101 |
Berekening kosten
Je aankoopkosten? Die heb je snel berekent via de knop hieronder.
Bijkomende info
Gebouw
Bouwjaar | 2005 |
---|---|
Staat | Goed onderhouden |
Is beschermd | Nee |
Bewoonbaar (m²) | 109 |
Verdieping | 2 |
Badkamers | 1 |
Slaapkamers | 2 |
Garages | 1 |
Keukens | 1 |
Leefruimtes | 1 |
Ruimtes
Keuken | 12 m² |
---|---|
Leefruimte | 33 m² |
Terras | 7 m² |
Faciliteiten
Keuken uitrusting | Goed uitgerust |
---|---|
Materiaal ramenomlijstingen | Aluminium |
Beglazing | Standaard dubbel |
Luiken | Ja |
Primair verwarmingstype | Centrale verwarming |
Brandstof primaire verwarming | Gas |
Perceel
Overstromingsgevoelig | Geen |
---|---|
P-score | A |
G-score | A |
Voorkeurrecht | Nee |
Oppervlakte terras (m²) | 7 |
Oriëntatie tuin | West |
Vergunning
Vergunning | Vergunning beschikbaar |
---|---|
Verkavelingsvergunning | Geen beschikbaar |
Bouwovertreding dagvaardiging | Geen |
Type gebied | Stedelijk |
Uitrusting
Meerdere eigenaars | Nee |
---|---|
Geschikt als kangoeroewoning | Nee |
Geschikt voor rolstoelgebruikers | Nee |
Geschikt voor praktijk | Nee |
Volledig onderkelderd | Nee |
Parking | Nee |
Garage | Ja |
Thuiskantoor | Nee |
Kelder | Nee |
Zolder | Nee |
Opslagruimte | Nee |
Tuin | Nee |
Terras | Ja |
Lift | Ja |
Rioolaansluiting | Ja |
Gasaansluiting | Ja |
Wateraansluiting | Ja |
Elektriciteitsaansluiting | Ja |
TV aansluiting | Ja |
Internetaansluiting | Ja |
Zonnepanelen | Nee |
Zonneboiler | Nee |
Alarm | Nee |
Zwembad | Nee |
Jacuzzi | Nee |
Toonzaal | Nee |
Ventilatie | Nee |
Appartementsblok
Lift | Ja |
---|---|
Intercom | Nee |
Een pand van
Futurimmo
FUTURIMMO
VERKOOP - VERHUUR - VASTGOEDEXPERTISE
TK/0180/2025
Leer meer over vastgoed
11 June 2025
Huis kopen met bouwovertreding? Dit moet je weten
11 May 2025
Renoveren? Vraag je Mijn VerbouwPremie aan
22 April 2025
Je allereerste renovatieproject selecteren én budgetteren: met de praktische hulp van Spotto
17 February 2025