Nieuw
Nieuwbouw casco KMO-unit met kantoorruimte bovenop de loods en mogelijkheid tot prachtig dakterras !
Prijs op aanvraag
Een pand van CENTRO | VASTGOED
Favoriet
Jouw zoektocht
Jouw scoretabel voor dit pand
Aan het laden...
Jouw geplande bezichtigingen
Aan het laden...
Overzicht
- 262 m² bewoonbaar
- 178 m² grond
Overstromingsgevaar perceel
Beschrijving
Benaderende OPPERVLAKTEN:
Constructie - bewoonbare oppervlakten
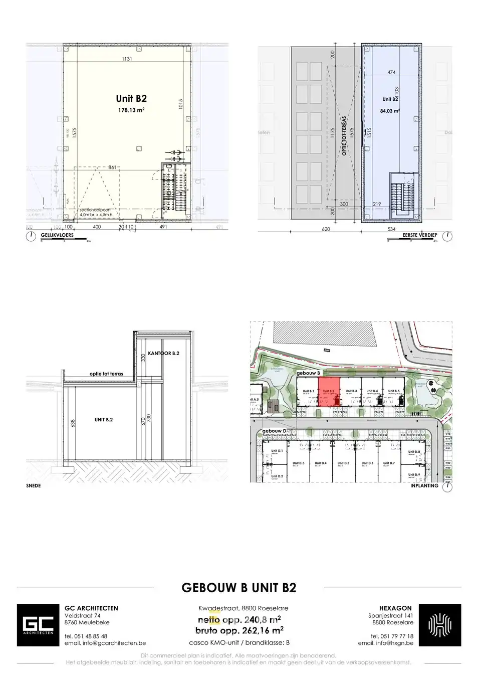
Magazijn: 178 m²
Kantoor: 84 m² + terras 100m²
Grondoppervlakte
Totale grondoppervlakte: 178 m²
Aantal parkeerplaatsen: 2
INDELING:
Magazijn:
Magazijn/opslagruimte, voorzien van poort met aparte loopdeur en glazen deur aan achterzijde - trappenhal met betonnen trap.
Kantoor:
Eerste verdieping
Casco kantoorruimte met grote raampartijen en optie tot het aanleggen van een dakterras (100m²).
SPECIFICATIES:
Kantoor:
Casco kantoorruimte met mogelijkheid tot ruim dakterras van 100m² - gevel in bronskleurige bardage - grote raampartij met hefschuifraam.
Bedrijvenpark HEXAHUB:
BESTEMMINGSMOGELIJKHEDEN:
Volgens het gewestplan gelegen op industriezone: productie, nijverheid, opslag, groothandel (B2B) met nevenactiviteiten. Geen HORECA of kleinhandel mogelijk als hoofdactiviteit!
NUTSVOORZIENINGEN:
Leidingen vanaf het tellerlokaal zijn voorzien voor aansluiting water, elektriciteit, distributie en telefonie.
LIGGING:
Langs de Kwadestraat - Armoedestraat, op 750m van de op- en afrit E403 Roeselare-Rumbeke. Nabij AZ-Delta, Skylinepark, Westwingpark.
* Bijzonderheden
- Verkoopprijs is incl. 2 parkeerplaatsen, te verhogen met 21% btw - géén extra kosten.
- Onze referentie op www.centro.be: Q0845
- Interesse? Neem dan vandaag nog contact voor meer info of bezichtiging: 050700102.
CENTRO | BEDRIJFSVASTGOED is reeds 25 jaar gespecialiseerd in de bemiddeling van commercieel- en bedrijfsvastgoed in West- en Oost-Vlaanderen.
Wilt u ook weten hoeveel uw bedrijfsgebouw waard is?
Contacteer ons vrijblijvend voor een marktconforme waardebepaling van uw pand.
Constructie - bewoonbare oppervlakten
Magazijn: 178 m²
Kantoor: 84 m² + terras 100m²
Grondoppervlakte
Totale grondoppervlakte: 178 m²
Aantal parkeerplaatsen: 2
INDELING:
Magazijn:
Magazijn/opslagruimte, voorzien van poort met aparte loopdeur en glazen deur aan achterzijde - trappenhal met betonnen trap.
Kantoor:
Eerste verdieping
Casco kantoorruimte met grote raampartijen en optie tot het aanleggen van een dakterras (100m²).
SPECIFICATIES:
- Constructie: staalconstructie
- Wanden: gladde geïsoleerde betonpanelen
- Bevloering: gepolierde en gewapende betonvloer (belasting 3.500kg/m²) gelijkvloers, vloerplaat op de verdieping
- Dak: plat dak met isolatie, dakranden ALU zwart
- Deuren en poorten: sectionaalpoort Hörmann (b: 4m x h: 4,5m) met afzonderlijke loopdeur en bovenlicht, glazen deur achteraan
- Sanitair: afvoeren aanwezig - septische put
- Vrije hoogtes: loods : 6,70m, kantoor: 3,70m
- Beglazing en schrijnwerk: overal dubbele beglazing met zwart ALU schrijnwerk zwart/brons
- Brandklasse: B
Kantoor:
Casco kantoorruimte met mogelijkheid tot ruim dakterras van 100m² - gevel in bronskleurige bardage - grote raampartij met hefschuifraam.
Bedrijvenpark HEXAHUB:
- 37 KMO-units over 5 gebouwen, 1 open community
- Duurzaamheid staat centraal
- Hybride bedrijvencampus
- Topligging vlakbij autosnelweg E403
BESTEMMINGSMOGELIJKHEDEN:
Volgens het gewestplan gelegen op industriezone: productie, nijverheid, opslag, groothandel (B2B) met nevenactiviteiten. Geen HORECA of kleinhandel mogelijk als hoofdactiviteit!
NUTSVOORZIENINGEN:
Leidingen vanaf het tellerlokaal zijn voorzien voor aansluiting water, elektriciteit, distributie en telefonie.
LIGGING:
Langs de Kwadestraat - Armoedestraat, op 750m van de op- en afrit E403 Roeselare-Rumbeke. Nabij AZ-Delta, Skylinepark, Westwingpark.
* Bijzonderheden
- Verkoopprijs is incl. 2 parkeerplaatsen, te verhogen met 21% btw - géén extra kosten.
- Onze referentie op www.centro.be: Q0845
- Interesse? Neem dan vandaag nog contact voor meer info of bezichtiging: 050700102.
CENTRO | BEDRIJFSVASTGOED is reeds 25 jaar gespecialiseerd in de bemiddeling van commercieel- en bedrijfsvastgoed in West- en Oost-Vlaanderen.
Wilt u ook weten hoeveel uw bedrijfsgebouw waard is?
Contacteer ons vrijblijvend voor een marktconforme waardebepaling van uw pand.
Energie
- E-peil: E0
- Beglazing: Onbekend
Op de kaart

Financieel
Berekening kosten
Je aankoopkosten? Die heb je snel berekend via de knop hieronder.
Bijkomende info
Gebouw
| Bouwjaar | 2025 |
|---|---|
| Bouwcertificaat | Nee |
| Bewoonbaar (m²) | 262 |
| Badkamers | 0 |
| Slaapkamers | 0 |
| Verdiepingen | 0 |
| Garages | 0 |
| Parkeerplaatsen | 2 |
| Toiletten | 0 |
Faciliteiten
| Septische tank | Nee |
|---|
Perceel
| Overstromingsgevoelig | Geen |
|---|---|
| P-score | D |
| G-score | B |
| Totale oppervlakte (m²) | 178 |
| Bebouwde oppervlakte (m²) | 178 |
| Oppervlakte terras (m²) | 100 |
Vergunning
| Verkavelingsvergunning | Geen beschikbaar |
|---|
Uitrusting
| Investeringspand | Nee |
|---|---|
| Parking | Ja |
| Garage | Nee |
| Terras | Ja |
| Lift | Nee |
| Rioolaansluiting | Ja |
| Gasaansluiting | Nee |
| Wateraansluiting | Ja |
| Elektriciteitsaansluiting | Ja |
| Internetaansluiting | Ja |
| Telefoonaansluiting | Nee |
| Zonnepanelen | Nee |
| Zonneboiler | Nee |
| Alarm | Nee |
| Videofoon | Nee |
| Grondwaterput | Nee |
Appartementsblok
| Lift | Nee |
|---|---|
| Intercom | Nee |
Een pand van
CENTRO | VASTGOED
CENTRO | VASTGOED is het ‘CENTRUM’ tussen partijen (Verkoper/koper, Verhuurder/huurder) in al uw vastgoedtransacties
SPECIALISATIES DRINGEN ZICH OP.
OOK IN HET VASTGOED!
Deze tendens is ook duidelijk zichtbaar op andere terreinen, denk maar aan dokters/specialisten, advocaten (strafpleiters, echtscheidingen, vennootschapsrecht, successie, …)
Alles even goed kunnen is een illusie. Men wil op vandaag geïnformeerd en gediend worden door een specialist, waardoor men onmiddellijk de juiste informatie krijgt en weet waar men staat. Met verkeerde informatie verliest men tijd en tijd kost geld!
CENTRO telt 4 specialisaties, met name bedrijfsvastgoed, woonvastgoed, investeringsvastgoed en nieuwbouw, die elk op een verschillende manier behandeld worden door onze experts.
Voor iedere specialisatie is er een andere doelgroep, waarvoor andere zoekcriteria gelden en een gerichte verkoopsstrategie vereisen.
Dankzij een sterke opleiding en heel wat jaren ervaring op de teller, kennen onze medewerkers deze complexe markten, met hun regelgevingen en trends als de beste.
Q0845
Leer meer over vastgoed
04 January 2026
Zoek je een kantoor, een magazijn of… iets ertussenin? Bedrijfsvastgoed uitgelegd
05 November 2024
Bedrijfsvastgoed in transitie: ontdek de toekomst van werkplekken
16 October 2024
Opbrengsteigendom: een slim pad naar passief inkomen en vermogensgroei
09 September 2024