Roeselare-Brugsesteenweg. BOUWGROND + VERGUNDE PLANNEN voor het bouwen van LOODS 486m2 & LOFT. Unieke ontwikkelingszone op uitstekende ligging. Perceel / tuin inclusief +/- 1080 m2.
€ 299.000
Een pand van Domicill Vastgoed
Favoriet
Jouw zoektocht
Jouw scoretabel voor dit pand
Aan het laden...
Jouw geplande bezichtigingen
Aan het laden...
Overzicht
- 1080 m² grond
Beschrijving
Roeselare-Brugsesteenweg. BOUWGROND + VERGUNDE PLANNEN voor het bouwen van privatieve LOODS 486m2 & LOFT.
Unieke ontwikkelingszone op uitstekende ligging. Perceel / tuin inclusief +/- 1080 m2
Kies hier voor uw eigen project op uitstekende ligging naast het winkelcentrum MAMOET en verkaveling van 1000 nieuwe woningen.
Overal dichtbij en aan de andere zijde van het winkelcentrum gelegen.
Dit is een zone in volle ontwikkeling en biedt heel vaal groeikansen voor jouw onderneming en jouw gezin.
Afbraak en wederopbouw.
Volgens gekende omgevingsvergunning zijn volgende zaken vergund :
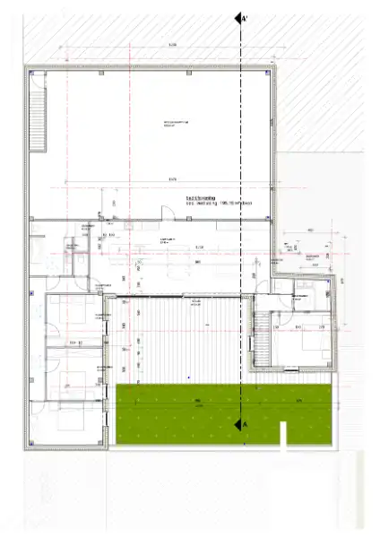
* gelijkvloers : bedrijfsruimte van 486m2 waarvan 1 ruimte van 26.70m diepte / 16m vooraan met bureel en gem. delen.
* tuin en terras van 12m / 19m
* parking met oprit voor +/- 5-6 wagens
* inrit loods met aparte poort
* ruime lichtrijke loft om te verpozen tot 4 slaapkamers
* ruim zonnig terras
* ruimte tot latere extra uitbreiding
Komt u de plannen inkijken en wat voor jouwd de mogelijkheden kunnen betekenen?
Bel ons vrijblijvend op voor een afspraak op ons kantoor.
Wij begeleiden u graag met de glimlach op zoek naar uw ideale investering & commercieel pand. T. 051 62 40 40.
Unieke ontwikkelingszone op uitstekende ligging. Perceel / tuin inclusief +/- 1080 m2
Kies hier voor uw eigen project op uitstekende ligging naast het winkelcentrum MAMOET en verkaveling van 1000 nieuwe woningen.
Overal dichtbij en aan de andere zijde van het winkelcentrum gelegen.
Dit is een zone in volle ontwikkeling en biedt heel vaal groeikansen voor jouw onderneming en jouw gezin.
Afbraak en wederopbouw.
Volgens gekende omgevingsvergunning zijn volgende zaken vergund :
* gelijkvloers : bedrijfsruimte van 486m2 waarvan 1 ruimte van 26.70m diepte / 16m vooraan met bureel en gem. delen.
* tuin en terras van 12m / 19m
* parking met oprit voor +/- 5-6 wagens
* inrit loods met aparte poort
* ruime lichtrijke loft om te verpozen tot 4 slaapkamers
* ruim zonnig terras
* ruimte tot latere extra uitbreiding
Komt u de plannen inkijken en wat voor jouwd de mogelijkheden kunnen betekenen?
Bel ons vrijblijvend op voor een afspraak op ons kantoor.
Wij begeleiden u graag met de glimlach op zoek naar uw ideale investering & commercieel pand. T. 051 62 40 40.
Energie
- E-peil: E0
- Beglazing: Onbekend
Op de kaart

Financieel
| Prijs |
|---|
Berekening kosten
Je aankoopkosten? Die heb je snel berekend via de knop hieronder.
Bijkomende info
Gebouw
| Bouwcertificaat | Nee |
|---|
Perceel
| Overstromingsgevoelig | Geen |
|---|---|
| P-score | A |
| Totale oppervlakte (m²) | 1080 |
Vergunning
| Verkavelingsvergunning | Vergunning beschikbaar |
|---|
Uitrusting
| Investeringspand | Nee |
|---|---|
| Rioolaansluiting | Nee |
| Gasaansluiting | Nee |
| Wateraansluiting | Nee |
| Elektriciteitsaansluiting | Nee |
| Internetaansluiting | Nee |
| Telefoonaansluiting | Nee |
Een pand van
Domicill Vastgoed
Domicill Vastgoed
We zijn EEN TEAM GEDREVEN VASTGOEDMAKELAARS en bieden méér waarde in vastgoed en projecten.
We helpen kopers en verkopers aan hun warme thuis door hen volledig te ontzorgen.
Ook investeerders kunnen bij ons terecht. Voor hen komt er binnenkort een volledig platform online.
VK-Robaard30 b2b
Leer meer over vastgoed
23 March 2026
Op Spotto zoeken als een pro: 10 slimme tips
21 March 2026
Hoeveel kan ik lenen om een huis te kopen?
01 March 2026
Wanneer heb ik een bouwvergunning of omgevingsvergunning nodig?
17 February 2026