Prachtig gelegen bouwgrond voor villabouw.
€ 425.000
Een pand van Debusschere Vastgoed
Favoriet
Jouw zoektocht
Jouw scoretabel voor dit pand
Aan het laden...
Jouw geplande bezichtigingen
Aan het laden...
Overzicht
- 2168 m² grond
Beschrijving
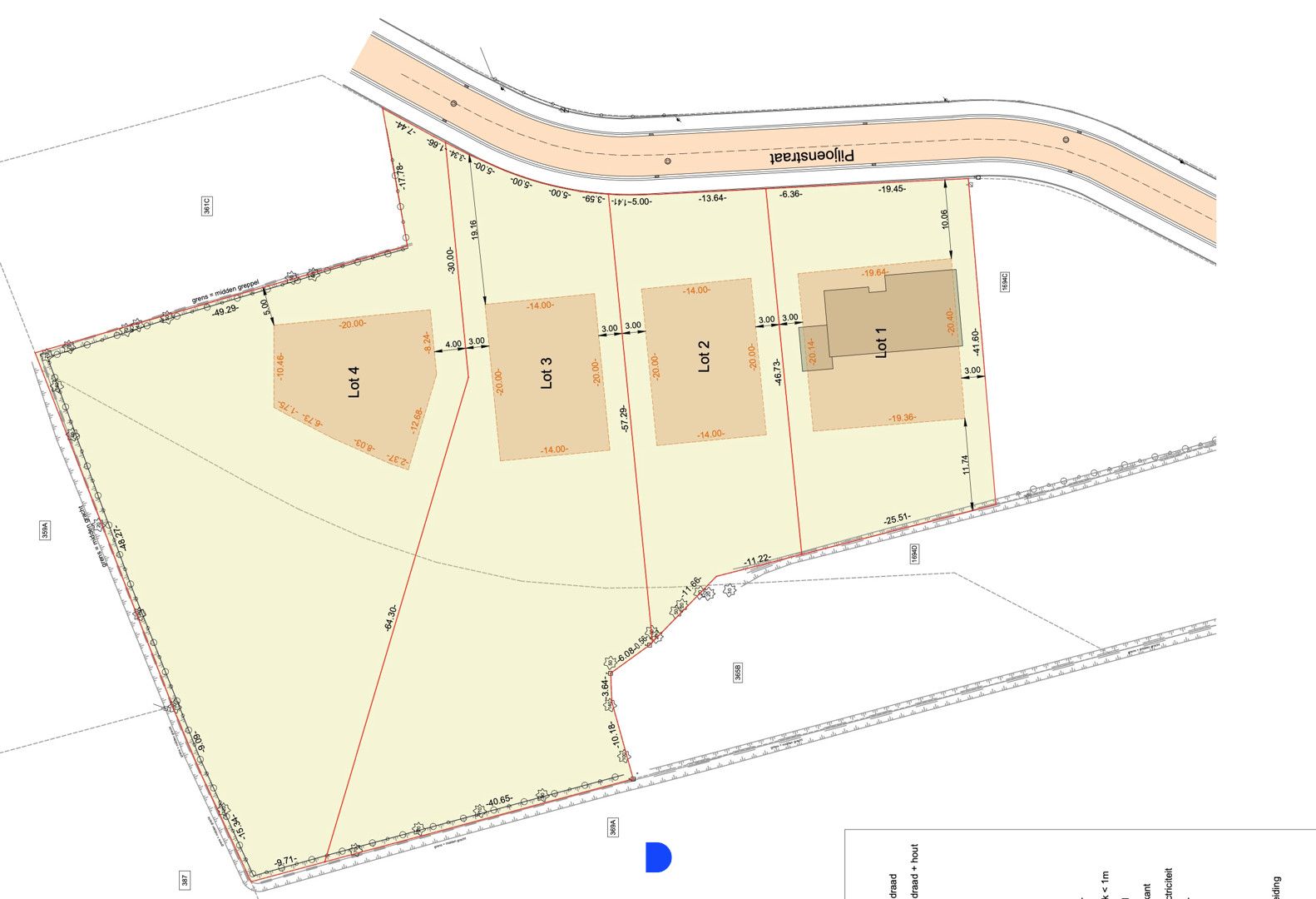
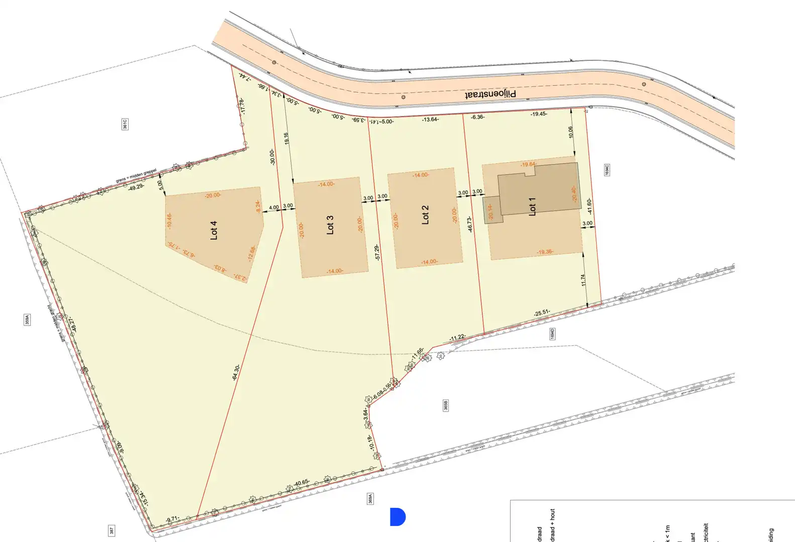
Uitstekend gelegen bouwgrond met een oppervlakte van 2.168m² (lot 3) nabij het centrum van Roeselare en alle belangrijke invalswegen.
Mooi landelijk verzicht & rustige omgeving.
Details:
- open bebouwing
- geen bouwverplichting
Deze bouwgrond wordt aangeboden met een vanafprijs.
De eigenaars behouden zich het recht voor om elk voorstel te beoordelen en zijn niet verplicht een bod te aanvaarden.
Contact:
Voor meer informatie of een bezoek, contacteer Stijn op 0491 61 42 19 of info@stijndebusschere.be
Mooi landelijk verzicht & rustige omgeving.
Details:
- open bebouwing
- geen bouwverplichting
Deze bouwgrond wordt aangeboden met een vanafprijs.
De eigenaars behouden zich het recht voor om elk voorstel te beoordelen en zijn niet verplicht een bod te aanvaarden.
Contact:
Voor meer informatie of een bezoek, contacteer Stijn op 0491 61 42 19 of info@stijndebusschere.be
Energie
- E-peil: E0
- Beglazing: Onbekend
Op de kaart

Financieel
| Prijs |
|---|
Berekening kosten
Je aankoopkosten? Die heb je snel berekend via de knop hieronder.
Bijkomende info
Gebouw
| Bouwcertificaat | Nee |
|---|
Perceel
| Totale oppervlakte (m²) | 2168 |
|---|
Vergunning
| Verkavelingsvergunning | Vergunning beschikbaar |
|---|
Uitrusting
| Investeringspand | Nee |
|---|---|
| Rioolaansluiting | Nee |
| Gasaansluiting | Nee |
| Wateraansluiting | Nee |
| Elektriciteitsaansluiting | Nee |
| Internetaansluiting | Nee |
| Telefoonaansluiting | Nee |
Een pand van
Debusschere Vastgoed
Debusschere Vastgoed
Welkom!
Op zoek naar een nieuwe thuis, van plan om uw eigendom te verkopen of graag een verregaande service bij de verhuur van uw eigendom?
We luisteren graag naar uw verhaal en helpen u met plezier verder bij het realiseren van uw vastgoeddromen.
ROE-PIL-LOT3
Leer meer over vastgoed
24 April 2026
Duurzaam gelegen woning? Check je Mobiscore
23 March 2026
Op Spotto zoeken als een pro: 10 slimme tips
21 March 2026
Hoeveel kan ik lenen om een huis te kopen?
01 March 2026