Nieuwbouwwoning te koop in Lichtervelde.
€ 359.000
Een pand van Dewaele Vastgoed
Favoriet
Jouw zoektocht
Jouw scoretabel voor dit pand
Aan het laden...
Overzicht
- 375 m² grond
- 4 Slaapkamer(s)
- 1 Badkamer(s)
- 2 Toilet(ten)
- 1 Tuin
Beschrijving
Hedendaags & energiezuinig wonen in Lichtervelde! Voorzien van 4 slaapkamers, garage en tuin met mooi uitzicht. Profiteer van 6% BTW*! Percelen van 375 m² tot 532m². Inspraak in afwerking nog mogelijk.
Nieuwbouwwoning te koop op perceel van 375 m² in Lichtervelde.
Gelegen in Lichtervelde op enkele minuten van het centrum en station, vlakbij scholen en winkels, én met een snelle aansluiting op de E403.
Ideaal voor gezinnen die energiezuinig willen wonen én vlot bereikbaar willen zijn.
Deze woning met een bewoonbare oppervlakte van 180m² geniet van een zonnige Zuidwest gerichte tuin met prachtige uitzichten op de achterliggende velden.
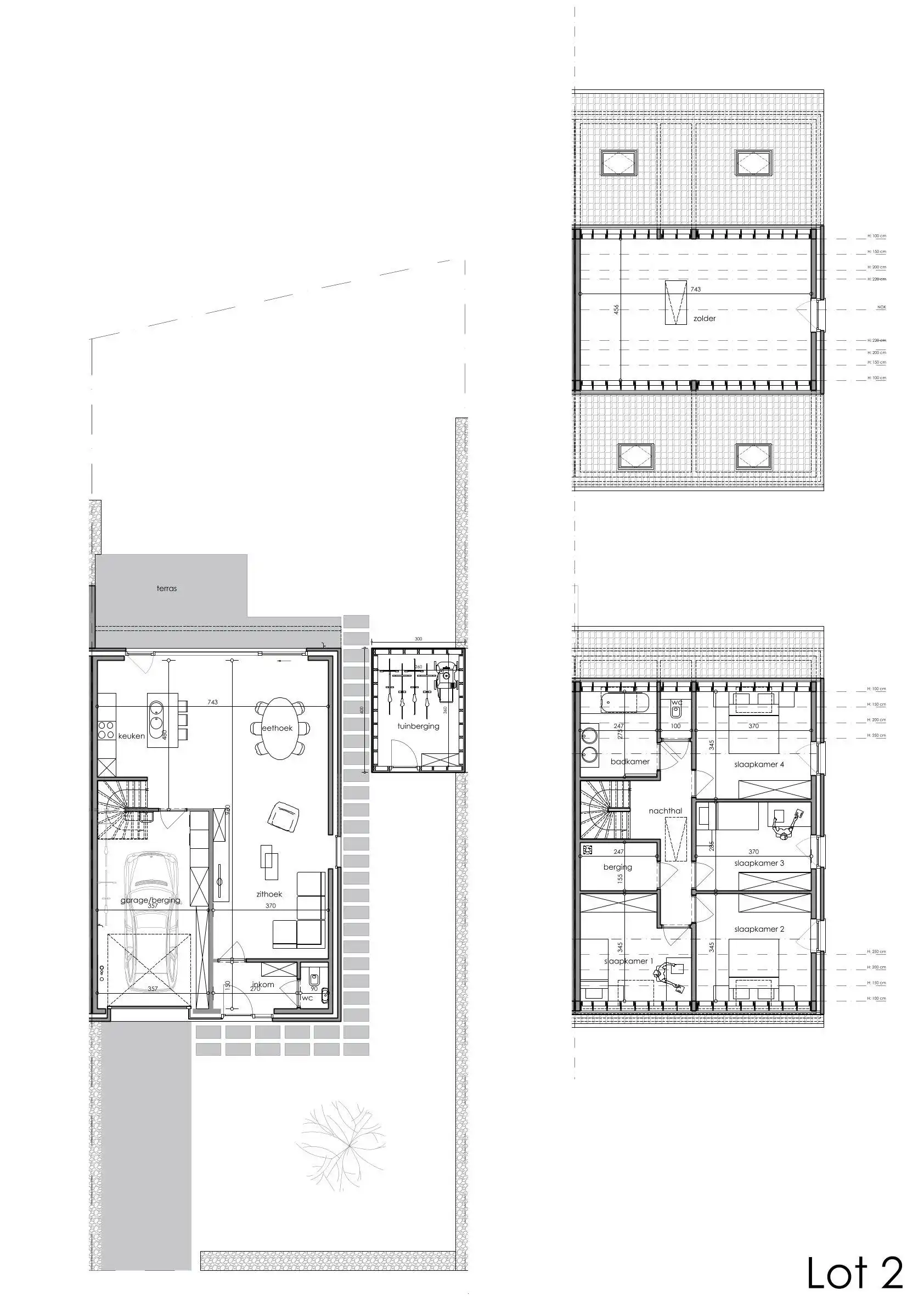
Indeling van dit huis te koop op lot 2:
*gelijkvloers:
inkom met gastentoilet | leefruimte met open keuken met zicht op de tuin | garage/berging
*verdieping:
nachthal | apart toilet | 4 slaapkamers | badkamer met dubbele lavabo, douche of ligbad | berging/dressing
*zolder:
bergruimte of in te richten tot extra kamer(s)
Troeven:
Vlotte verbinding
Weids zicht achteraan
Energiezuinig en instapklaar: voorzien van vloerverwarming, warmtepomp, zonnepanelen en ventilatiesysteem D.
De woningen worden afgewerkt conform het lastenboek, maar u heeft als koper nog veel inspraak bij de afwerking.
Deze woning kan in aanmerking komen voor het 6% btw-tarief! *https://www.dewaele.com/nl/advies/6-btw-vastgoed-nieuwbouw
Deze woning maak deel uit van een project van 6 nieuwbouwwoningen met percelen tussen de 375 m2 en 532 m2 en met een bewoonbare oppervlakte tussen de 179 m2 en 186 m2.
De huizen op de loten 1, 2, 5 en 6 bestaan uit twee bouwlagen met hellend dak en zijn eveneens voorzien van garage en 4 slaapkamers. Hier kan desgewenst mits meerkost een vaste trap naar de zolder worden voorzien voor het inrichten van extra kamer(s).
De huizen op de loten 3 en 4 bestaan uit 2 volwaardige bouwlagen met plat dak, uitgerust met garage en 4 slaapkamers.
Gelegen in Lichtervelde op enkele minuten van het centrum en station, vlakbij scholen en winkels, én met een snelle aansluiting op de E403.
Ideaal voor gezinnen die energiezuinig willen wonen én vlot bereikbaar willen zijn.
Deze woning met een bewoonbare oppervlakte van 180m² geniet van een zonnige Zuidwest gerichte tuin met prachtige uitzichten op de achterliggende velden.
Indeling van dit huis te koop op lot 2:
*gelijkvloers:
inkom met gastentoilet | leefruimte met open keuken met zicht op de tuin | garage/berging
*verdieping:
nachthal | apart toilet | 4 slaapkamers | badkamer met dubbele lavabo, douche of ligbad | berging/dressing
*zolder:
bergruimte of in te richten tot extra kamer(s)
Troeven:
Vlotte verbinding
Weids zicht achteraan
Energiezuinig en instapklaar: voorzien van vloerverwarming, warmtepomp, zonnepanelen en ventilatiesysteem D.
De woningen worden afgewerkt conform het lastenboek, maar u heeft als koper nog veel inspraak bij de afwerking.
Deze woning kan in aanmerking komen voor het 6% btw-tarief! *https://www.dewaele.com/nl/advies/6-btw-vastgoed-nieuwbouw
Deze woning maak deel uit van een project van 6 nieuwbouwwoningen met percelen tussen de 375 m2 en 532 m2 en met een bewoonbare oppervlakte tussen de 179 m2 en 186 m2.
De huizen op de loten 1, 2, 5 en 6 bestaan uit twee bouwlagen met hellend dak en zijn eveneens voorzien van garage en 4 slaapkamers. Hier kan desgewenst mits meerkost een vaste trap naar de zolder worden voorzien voor het inrichten van extra kamer(s).
De huizen op de loten 3 en 4 bestaan uit 2 volwaardige bouwlagen met plat dak, uitgerust met garage en 4 slaapkamers.
Energie
Op de kaart

Financieel
| Prijs |
|---|
Bijkomende info
Gebouw
| Bouwjaar | 2025 |
|---|---|
| Staat | Nieuw |
| Badkamers | 1 |
| Slaapkamers | 4 |
| Verdiepingen | 0 |
| Toiletten | 2 |
Perceel
| Totale oppervlakte (m²) | 375 |
|---|---|
| Tuin oppervlakte (m²) | 0 |
Uitrusting
| Investeringspand | Nee |
|---|---|
| Parking | Nee |
| Garage | Ja |
| Thuiskantoor | Nee |
| Opslagruimte | Nee |
| Tuin | Ja |
| Terras | Nee |
| Lift | Nee |
Een pand van
Dewaele Vastgoed
Dewaele Real Estate nv
Dewaele Real Estate nv
D8800-26013-NBW-LOT2
Leer meer over vastgoed
Nieuw
23 March 2026
Op Spotto zoeken als een pro: 10 slimme tips
Nieuw
21 March 2026
Hoeveel kan ik lenen om een huis te kopen?
01 March 2026
Wanneer heb ik een bouwvergunning of omgevingsvergunning nodig?
17 February 2026