Nieuw
Moderne WONING te Torhout
€ 448.363
Een pand van Acasa Immo
Beschrijving
SLOOP + HEROPBOUW : KOOP AAN 6% BTW
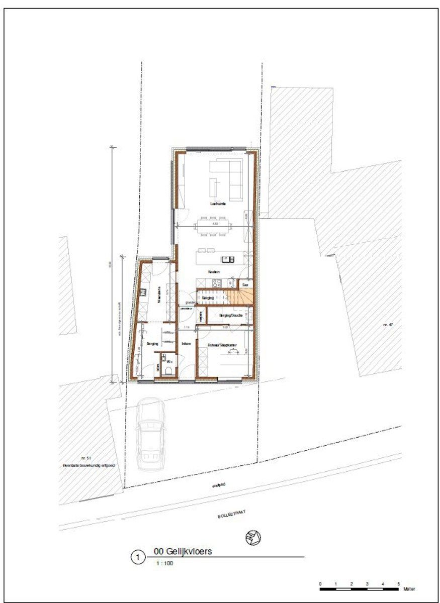
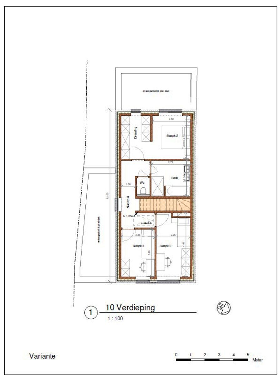
Op zoek naar een nieuw te bouwen moderne woning waar u nog geniet van eigen inspraak? Deze nieuwbouw woning te Torhout is gelegen op een goed georiënteerd perceel grond van 421m² en heeft een bewoonbare oppervlakte 218,54m². Gelijkvloers - Inkomhal - Berging voor fietsen - Afzonderlijk toilet - Bureau of slaapkamer op gelijkvloers met aanpalend berging of douchecel - Extra berging - Open keuken met leefruimte - Wasruimte Eerste verdieping - Slaapkamer 1met dressing - Afzonderlijk toilet - Nachthal - Badkamer met ligbad en douche - Slaapkamer 2 - Slaapkamer 3 Zolder bereikbaar via zoldertrap Bijzonderheden (mooi lastenboek): - Nieuw te bouwen - Nog eigen inspraak - Aankoop aan 6% mogelijk - Betrouwbare aannemer met jarenlange ervaring in de regio - Spouwisolatie van 14cm - PVC buitenschrijnwerk - Dakconstructie in gedrenkte oregan - Dakisolatie polyurethaan dikte 16cm - .... Ben je op zoek naar een nieuwe woonst? Ga naar onze www.acasa.immo of contacteer Luc op 0475 26 18 01 of via luc.devroe@acasa.immo.
Op zoek naar een nieuw te bouwen moderne woning waar u nog geniet van eigen inspraak? Deze nieuwbouw woning te Torhout is gelegen op een goed georiënteerd perceel grond van 421m² en heeft een bewoonbare oppervlakte 218,54m². Gelijkvloers - Inkomhal - Berging voor fietsen - Afzonderlijk toilet - Bureau of slaapkamer op gelijkvloers met aanpalend berging of douchecel - Extra berging - Open keuken met leefruimte - Wasruimte Eerste verdieping - Slaapkamer 1met dressing - Afzonderlijk toilet - Nachthal - Badkamer met ligbad en douche - Slaapkamer 2 - Slaapkamer 3 Zolder bereikbaar via zoldertrap Bijzonderheden (mooi lastenboek): - Nieuw te bouwen - Nog eigen inspraak - Aankoop aan 6% mogelijk - Betrouwbare aannemer met jarenlange ervaring in de regio - Spouwisolatie van 14cm - PVC buitenschrijnwerk - Dakconstructie in gedrenkte oregan - Dakisolatie polyurethaan dikte 16cm - .... Ben je op zoek naar een nieuwe woonst? Ga naar onze www.acasa.immo of contacteer Luc op 0475 26 18 01 of via luc.devroe@acasa.immo.
Panden
| Huis | Gelijkvloers | - | - | € 448.363 |
Energie
- EPC Certificaat: 2023107-0003017110-RES-1
Op de kaart

Financieel
| Prijs | |
|---|---|
| Kadastraal inkomen (niet geïndexeerd) | € 312 |
Bijkomende info
Gebouw
| Bouwjaar | 2025 |
|---|---|
| Gevels | 3 |
| Badkamers | 0 |
| Slaapkamers | 0 |
| Parkeerplaatsen | 0 |
| Toiletten | 2 |
Faciliteiten
| Type vloer | |
|---|---|
| Keuken uitrusting | Goed uitgerust |
Perceel
| Overstromingsgevoelig | Geen |
|---|---|
| P-score | A |
| G-score | A |
| Voorkeurrecht | Nee |
| Tuin oppervlakte (m²) | 0 |
Vergunning
| Vergunning | Vergunning beschikbaar |
|---|---|
| Verkavelingsvergunning | Geen beschikbaar |
| Bouwovertreding | Geen |
| Bouwovertreding dagvaardiging | Geen |
Uitrusting
| Parking | Nee |
|---|---|
| Garage | Nee |
| Tuin | Nee |
| Terras | Nee |
Een pand van
Acasa Immo
Altijd welkom bij Acasa!
Een woning kopen of verkopen doe jij niet elke dag, maar wij wel.
Al jaren begeleiden wij klanten met accuraat advies en een adequate aanpak bij het vinden van de best mogelijke woning. Acasa is het immokantoor met een gemoedelijk en ervaren A-team waarbij je altijd welkom bent met al je vragen. We zorgen ervoor dat jij kunt rekenen op de aangename ervaring waar je recht op hebt. Je zoekt een appartement, gezinswoning of villa of je wilt er net een verkopen?
Onze A-factor maakt dat jij geniet van de zekerheid en rust van een betrouwbare immopartner aan je zijde.
Leer meer over vastgoed
Nieuw
24 November 2025
Uitgezocht voor jouw gemeente: Hoeveel stijgt de waarde van je woning door een renovatie?
22 October 2025
Hoeveel kan ik lenen om een huis te kopen?
11 June 2025
Huis kopen met bouwovertreding? Dit moet je weten
11 May 2025