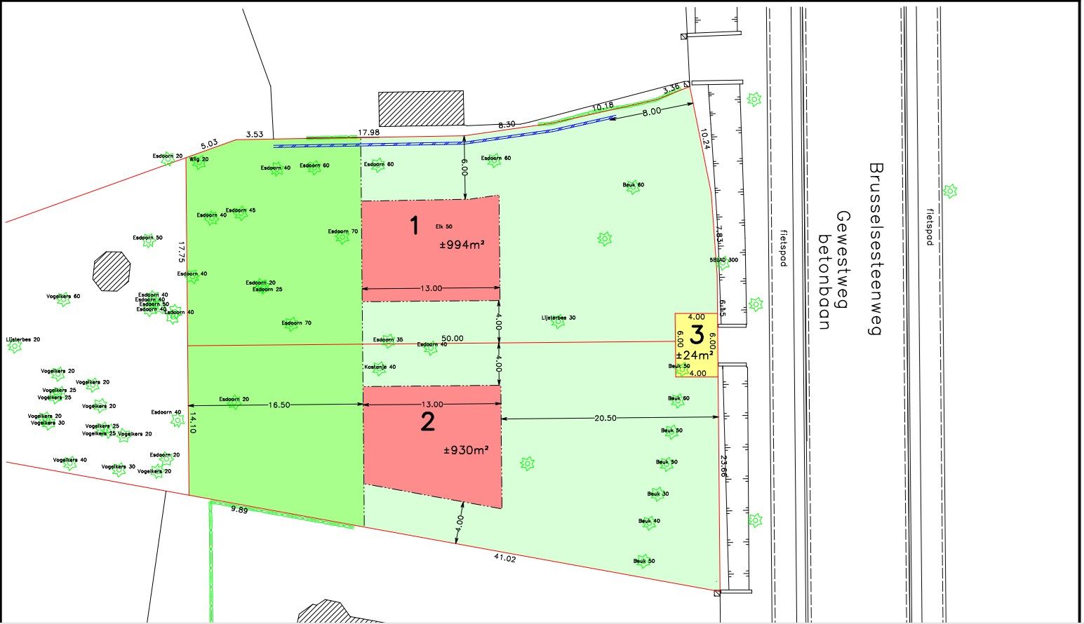
2 percelen bouwgrond te Melle
€ 589.000
Een pand van agence rosseel
Favoriet
Jouw zoektocht
Jouw scoretabel voor dit pand
Aan het laden...
Jouw geplande bezichtigingen
Aan het laden...
Overzicht
- 1924 m² grond
Beschrijving
Deze 2 percelen bouwgrond (zonder bouwverplichting) van ca. 1924m² zijn gelegen
in een groene residentiële omgeving op een steenworp van het centrum
van Melle, van waaruit men een ideale verbinding heeft richting de R4, de
E40 (Oostende-Gent-Brussel), de E17 (Kortrijk-Gent-Antwerpen), tal van
invalswegen en eveneens vlakbij scholen, winkels, openbaar vervoer,
ontspanning, enz. Op dit perceel kunnen 2 vrijstaande eengezinswoningen gebouwd worden,
bestemd voor residentieel gebruik (waarbij 40% van de vloeroppervlakte
voor diensten of vrij beroep kan ingericht worden). Er bestaat tevens een
mogelijkheid om een achtergelegen stuk parkzone (ca. 832m²) aan te
kopen.
in een groene residentiële omgeving op een steenworp van het centrum
van Melle, van waaruit men een ideale verbinding heeft richting de R4, de
E40 (Oostende-Gent-Brussel), de E17 (Kortrijk-Gent-Antwerpen), tal van
invalswegen en eveneens vlakbij scholen, winkels, openbaar vervoer,
ontspanning, enz. Op dit perceel kunnen 2 vrijstaande eengezinswoningen gebouwd worden,
bestemd voor residentieel gebruik (waarbij 40% van de vloeroppervlakte
voor diensten of vrij beroep kan ingericht worden). Er bestaat tevens een
mogelijkheid om een achtergelegen stuk parkzone (ca. 832m²) aan te
kopen.
Energie
- Verwarming: Geen
- Beglazing: Onbekend
Op de kaart

Financieel
| Prijs | |
|---|---|
| Kadastraal inkomen (niet geïndexeerd) | € 0 |
| Kadastraal inkomen (geïndexeerd) | € 0 |
Berekening kosten
Je aankoopkosten? Die heb je snel berekend via de knop hieronder.
Bijkomende info
Gebouw
| Is beschermd | Nee |
|---|
Perceel
| Overstromingsgevoelig | Geen |
|---|---|
| P-score | A |
| Voorkeurrecht | Ja |
| Totale oppervlakte (m²) | 1924 |
| Oriëntatie tuin | Zuidwest |
Vergunning
| Vergunning | Vergunning beschikbaar |
|---|---|
| Verkavelingsvergunning | Vergunning beschikbaar |
| Bouwovertreding dagvaardiging | Geen |
| Type gebied | Stedelijk |
Uitrusting
| Meerdere eigenaars | Nee |
|---|---|
| Rioolaansluiting | Nee |
| Gasaansluiting | Nee |
| Wateraansluiting | Nee |
| Elektriciteitsaansluiting | Nee |
| TV aansluiting | Nee |
| Internetaansluiting | Nee |
Een pand van
agence rosseel
agence rosseel | steengoed in vastgoed
Vanaf de kennismaking tot aan de ondertekening van de overeenkomst staan wij je bij. Door continue opleidingen en samenwerking met specialisten in onder andere vastgoedrecht, stedenbouw en andere specifieke vakgebieden kunnen wij jou helpen met een uitgebreide vastgoedkennis.
agence rosseel bestaat uit een team van gedreven vastgoedmakelaars, commerciële medewerkers, administratieve duizendpoten en enthousiaste marketeers die allen uitstekende diensten verlenen tijdens de verkoop/verhuur van jouw eigendom. Samen met haar klanten wil agence rosseel een langetermijnrelatie opbouwen, gebaseerd op betrouwbaarheid, eerlijkheid en professionaliteit.
AVLC-5803
Leer meer over vastgoed
23 March 2026
Op Spotto zoeken als een pro: 10 slimme tips
21 March 2026
Hoeveel kan ik lenen om een huis te kopen?
01 March 2026
Wanneer heb ik een bouwvergunning of omgevingsvergunning nodig?
17 February 2026