Af te werken kantoorgebouw op zichtlocatie langsheen N9
€ 990.000
Een pand van CEUSTERS
Jouw zoektocht
Overzicht
- 539 m² bewoonbaar
Beschrijving
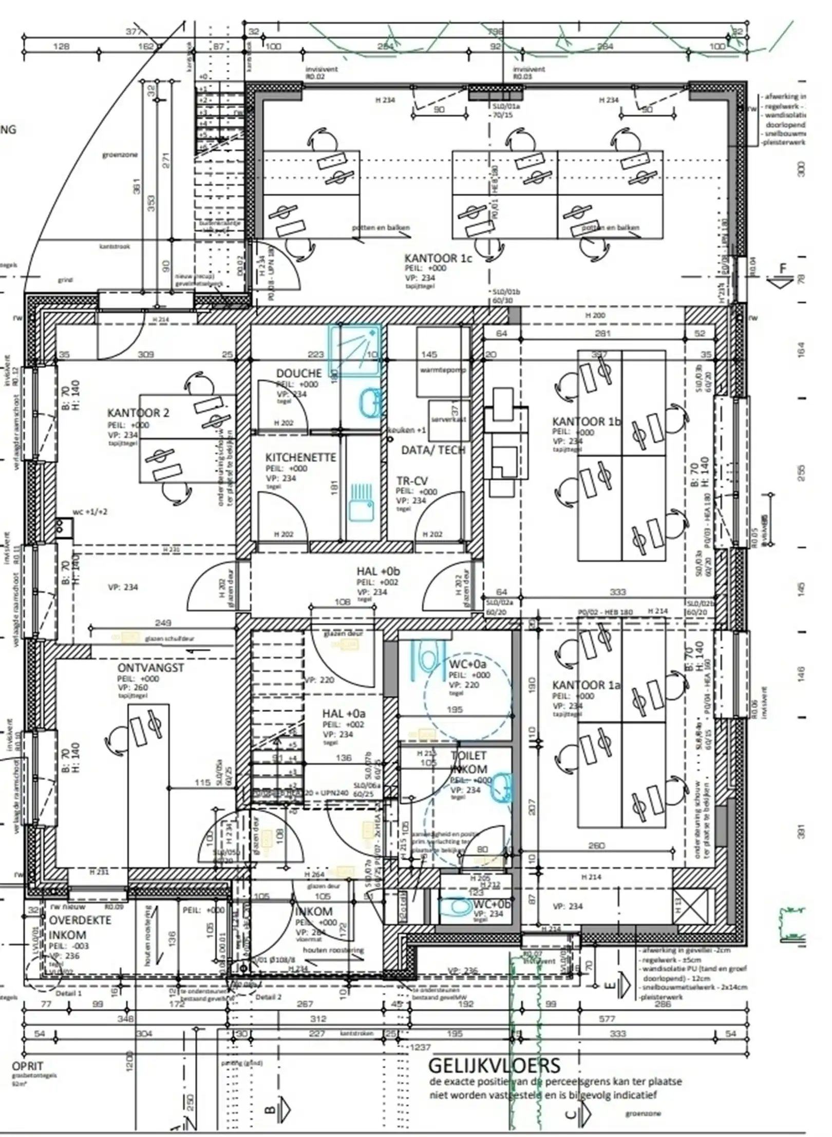
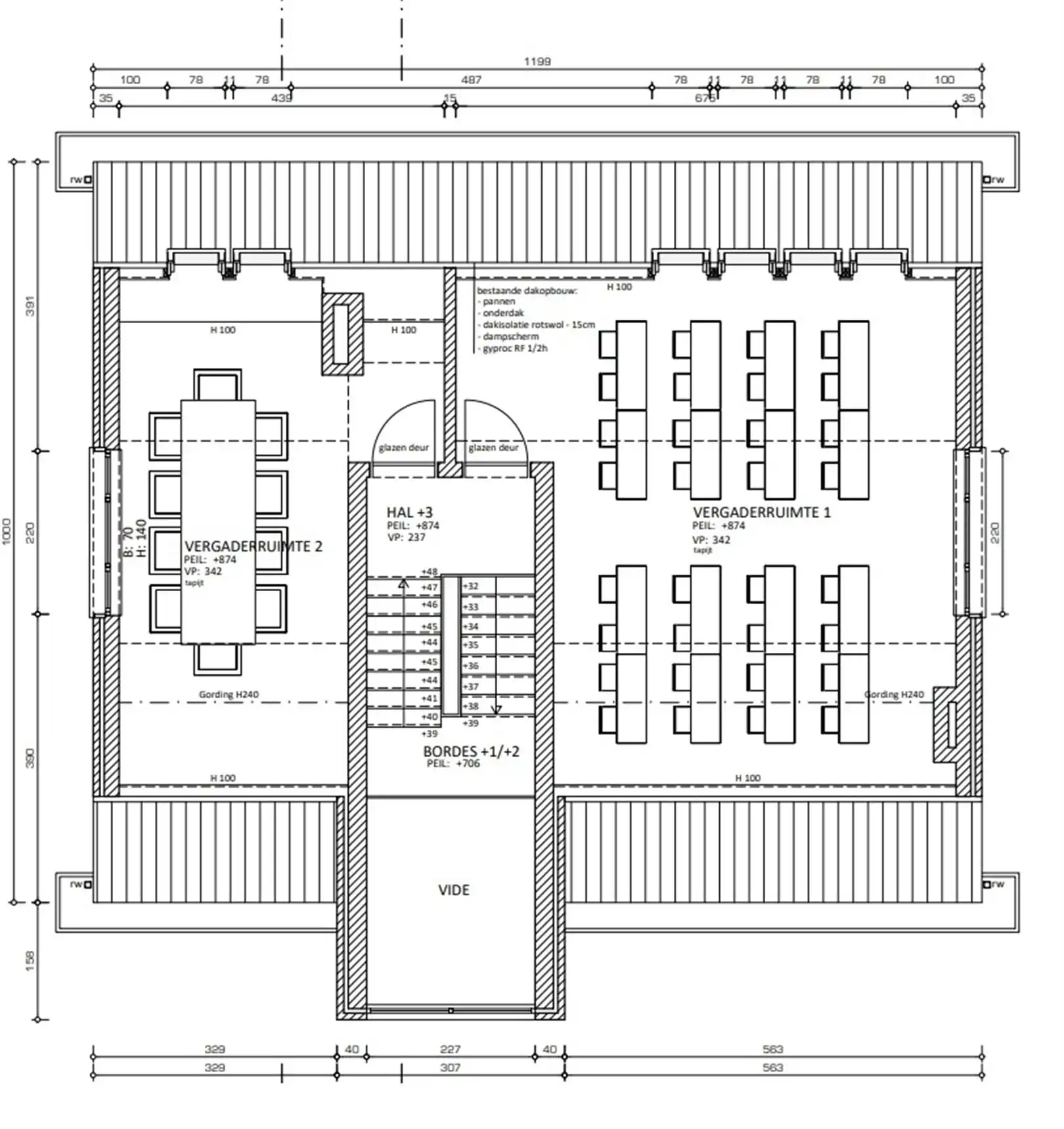
Kantoorgebouw te koop op uitstekende zichtlocatie Brusselsesteenweg (N9) te Melle
Dit multifunctioneel kantoorgebouw is gelegen op een toplocatie langs de Brusselsesteenweg (N9) in Melle, een belangrijke verbindingsas tussen Gent en Brussel. Dankzij deze zichtlocatie geniet het gebouw van een uitstekende commerciële uitstraling en vlotte bereikbaarheid, zowel met de wagen als met het openbaar vervoer. Een bushalte bevindt zich op wandelafstand.
Het gebouw is deels instapklaar. Het gelijkvloers werd reeds gedeeltelijk vernieuwd en uitgebreid, met bijkomende ruimte die verder moet worden afgewerkt door de nieuwe eigenaar.
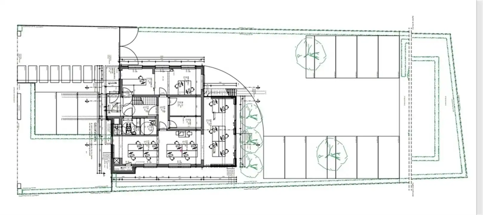
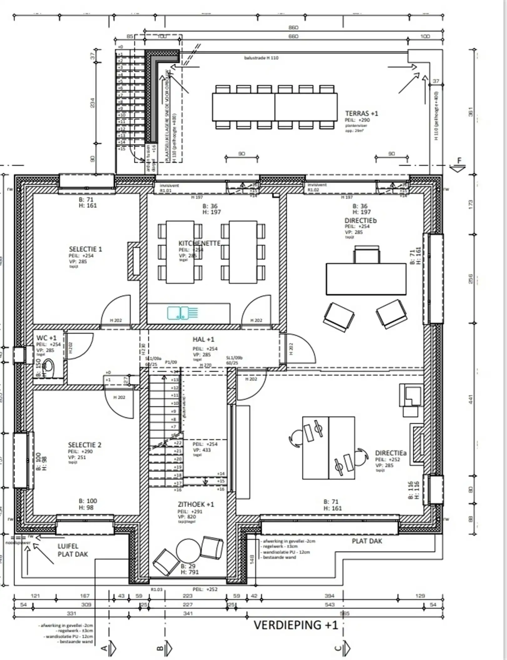
Het geheel staat op een perceel van ca. 1.212 m² en beschikt over een ruime parking achteraan het gebouw, aangevuld met een tuin. Op de eerste verdieping is er bovendien een aangenaam terras.
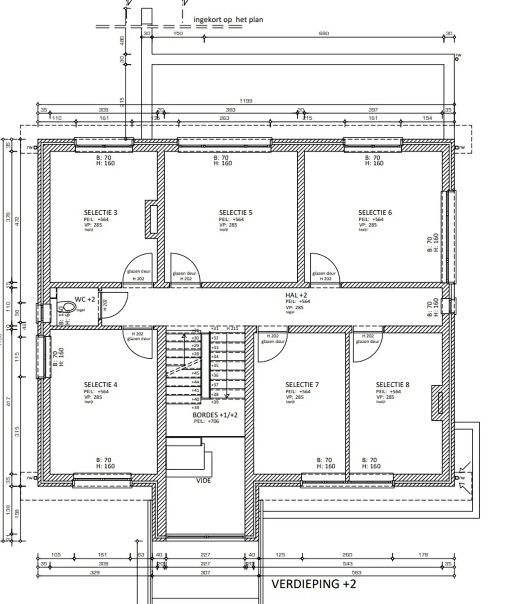
De indeling omvat grote open kantoorruimtes gecombineerd met meerdere afzonderlijke burelen of kamers, wat het pand bijzonder geschikt maakt voor KMOs, vrije beroepen, praktijken of dienstverlenende activiteiten.
Een uitstekende opportuniteit voor wie op zoek is naar een goed gelegen, flexibel en verder te personaliseren kantoorgebouw met parking en buitenruimte.
Energie
![]() |
- EPC Certificaat: 20240625-0002525194-KNR-1
- E-peil: E0
- Beglazing: Onbekend
Op de kaart

Financieel
| Prijs | |
|---|---|
| Kadastraal inkomen (niet geïndexeerd) | € 0 |
| Kadastraal inkomen (geïndexeerd) | € 0 |
Berekening kosten
Je aankoopkosten? Die heb je snel berekend via de knop hieronder.
Bijkomende info
Gebouw
| Bouwcertificaat | Nee |
|---|---|
| Bewoonbaar (m²) | 539 |
| Verdieping | 0 |
| Badkamers | 0 |
| Slaapkamers | 0 |
| Verdiepingen | 0 |
| Garages | 0 |
| Parkeerplaatsen | 0 |
| Doucheruimtes | 0 |
| Toiletten | 0 |
Faciliteiten
| Elektrisch keuringsattest | Ja |
|---|
Perceel
| Overstromingsgevoelig | Geen |
|---|---|
| P-score | A |
| G-score | A |
| Voorkeurrecht | Nee |
| Bebouwde oppervlakte (m²) | 0 |
| Tuin oppervlakte (m²) | 0 |
| Oppervlakte terras (m²) | 0 |
Vergunning
| Vergunning | Vergunning beschikbaar |
|---|
Uitrusting
| Investeringspand | Nee |
|---|---|
| Geschikt voor praktijk | Nee |
| Parking | Nee |
| Garage | Nee |
| Thuiskantoor | Nee |
| Kelder | Nee |
| Zolder | Nee |
| Tuin | Nee |
| Terras | Nee |
| Lift | Nee |
| Rioolaansluiting | Nee |
| Gasaansluiting | Nee |
| Wateraansluiting | Nee |
| Elektriciteitsaansluiting | Nee |
| TV aansluiting | Nee |
| Internetaansluiting | Nee |
| Telefoonaansluiting | Nee |
Appartementsblok
| Naam residentie | BRUSSELSESTEENWEG 115 MERELBEKE-MELLE |
|---|---|
| Lift | Nee |
