Ruime woning met 4 slaapkamers, instapklaar en energiezuinig
€ 439.000
Een pand van Altro Vastgoed Dendermonde
Overzicht
- 168 m² bewoonbaar
- 184 m² grond
- 4 Slaapkamer(s)
- 1 Badkamer(s)
- 2 Toilet(ten)
- 1 Tuin
Beschrijving
Op de eerste verdieping bevinden zich twee volwaardige slaapkamers en een badkamer die is ingericht met het nodige comfort. De tweede verdieping omvat nog twee bijkomende slaapkamers, waardoor de woning in totaal over vier slaapkamers beschikt en geschikt is voor gezinnen, thuiswerk of wie extra ruimte wenst.
De tuin vormt een aangename buitenruimte met een overdekt terras, waar het hele jaar door van het buitenleven kan worden genoten. Dankzij de aanwezigheid van zonnepanelen, ventilatiesysteem C en het uitstekende EPC-label A woon je hier bovendien energiezuinig en toekomstgericht.
Een instapklare woning die comfort, energiezuinigheid en een goede ligging perfect combineert.
Interesse? Contacteer Zuzana via 0456 98 16 85 of zuzana@altro-vastgoed.be
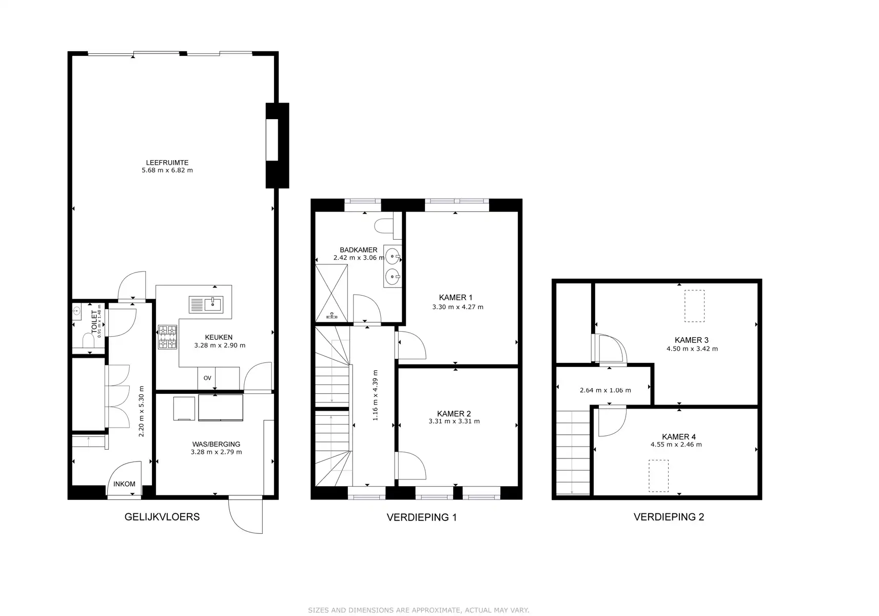
Deze recente woning is gelegen in de rustige Toekomstlaan en combineert comfortabel wonen met een praktische indeling. Op het gelijkvloers bevindt zich een lichtrijke leefruimte met aansluitend een open keuken, ideaal voor zowel dagelijks gebruik als gezellige momenten met familie en vrienden.
Op de eerste verdieping bevinden zich twee volwaardige slaapkamers en een badkamer die is ingericht met het nodige comfort. De tweede verdieping omvat nog twee bijkomende slaapkamers, waardoor de woning in totaal over vier slaapkamers beschikt en geschikt is voor gezinnen, thuiswerk of wie extra ruimte wenst.
De tuin vormt een aangename buitenruimte met een overdekt terras, waar het hele jaar door van het buitenleven kan worden genoten. Dankzij de aanwezigheid van zonnepanelen, ventilatiesysteem C en het uitstekende EPC-label A woon je hier bovendien energiezuinig en toekomstgericht.
Een instapklare woning die comfort, energiezuinigheid en een goede ligging perfect combineert.
Energie
![]() |
- EPC Certificaat: 20250513-0003600016-RES-1
- Energieverbruik: 41 kWh/m²/jaar
Op de kaart

Financieel
| Prijs |
|---|
Berekening kosten
Je aankoopkosten? Die heb je snel berekent via de knop hieronder.
Bijkomende info
Gebouw
| Bouwjaar | 2017 |
|---|---|
| Staat | Zo goed als nieuw |
| Bewoonbaar (m²) | 168 |
| Gevels | 2 |
| Gevelbreedte | 6 |
| Badkamers | 1 |
| Slaapkamers | 4 |
| Verdiepingen | 3 |
| Parkeerplaatsen | 1 |
| Doucheruimtes | 1 |
| Toiletten | 2 |
Faciliteiten
| Type vloer | |
|---|---|
| Keuken uitrusting | Goed uitgerust |
| Elektrisch keuringsattest | Ja |
Perceel
| Overstromingsgevoelig | Geen |
|---|---|
| P-score | A |
| G-score | A |
| Voorkeurrecht | Nee |
| Totale oppervlakte (m²) | 184 |
| Tuin oppervlakte (m²) | 184 |
| Oriëntatie terras | Noordwest |
Vergunning
| Vergunning | Vergunning beschikbaar |
|---|---|
| Verkavelingsvergunning | Geen beschikbaar |
| Bouwovertreding | Geen |
| Bouwovertreding dagvaardiging | Geen |
Uitrusting
| Geschikt voor rolstoelgebruikers | Nee |
|---|---|
| Parking | Ja |
| Garage | Nee |
| Tuin | Ja |
| Terras | Ja |
| Lift | Nee |
| Gasaansluiting | Ja |
| Wateraansluiting | Ja |
| Elektriciteitsaansluiting | Ja |
| TV aansluiting | Ja |
| Telefoonaansluiting | Ja |
| Zonnepanelen | Ja |
| Zwembad | Nee |
| Zwemvijver | Nee |
