In een rustige, residentiële wijk in het charmante Eksaarde bevindt zich deze verzorgde open bebouwing uit 1997. De woning geniet van een aangename, groene omgeving en biedt alle comfort voor wie op zoek is naar ruimte, rust en een praktische indeling.
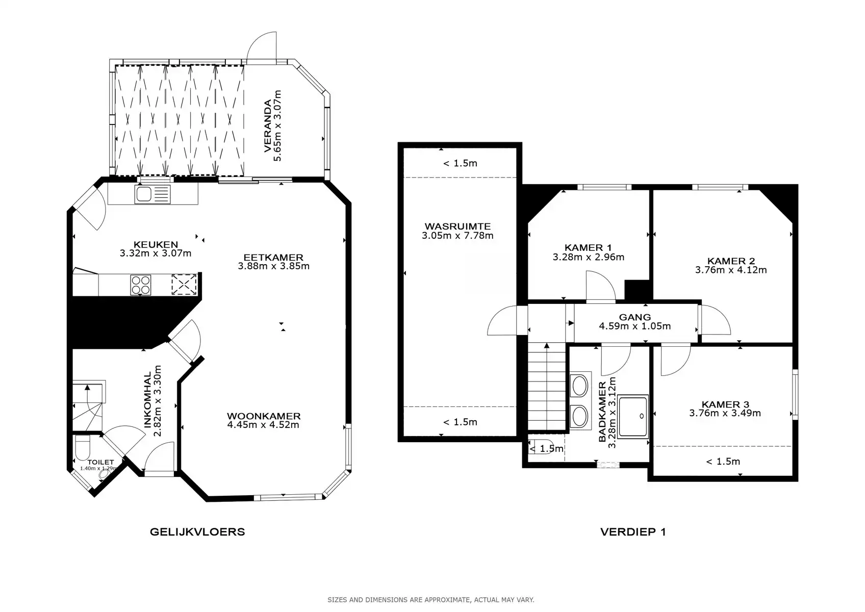
Bij het betreden van de woning komt u in een ruime en lichtrijke leefruimte met zicht op de tuin, ideaal voor gezellige familiemomenten. Aansluitend vindt u de functionele keuken en diverse bergruimtes die het dagelijks comfort verhogen.
Op de verdieping beschikt de woning over drie volwaardige slaapkamers en een badkamer. Daarnaast is er een ruime zolderruimte met geïntegreerde wasberging, die tal van mogelijkheden biedt als extra opslag, hobbyruimte of toekomstige uitbreiding.
De woning is verder voorzien van een ruime garage en omgeven door groen, wat zorgt voor een aangename woonbeleving in een kindvriendelijke en rustige buurt, met vlotte verbinding naar het centrum van Lokeren en de belangrijkste invalswegen.
Een ideale gezinswoning voor wie comfortabel wil wonen in een groene, residentiële omgeving.
Interesse? Neem snel contact op voor een bezoek ter plaatse.

