Volledig te renoveren bungalow op een ruim perceel te Moerbeke
€ 348.000
Een pand van Van Hoye Vastgoed
Jouw zoektocht
Overzicht
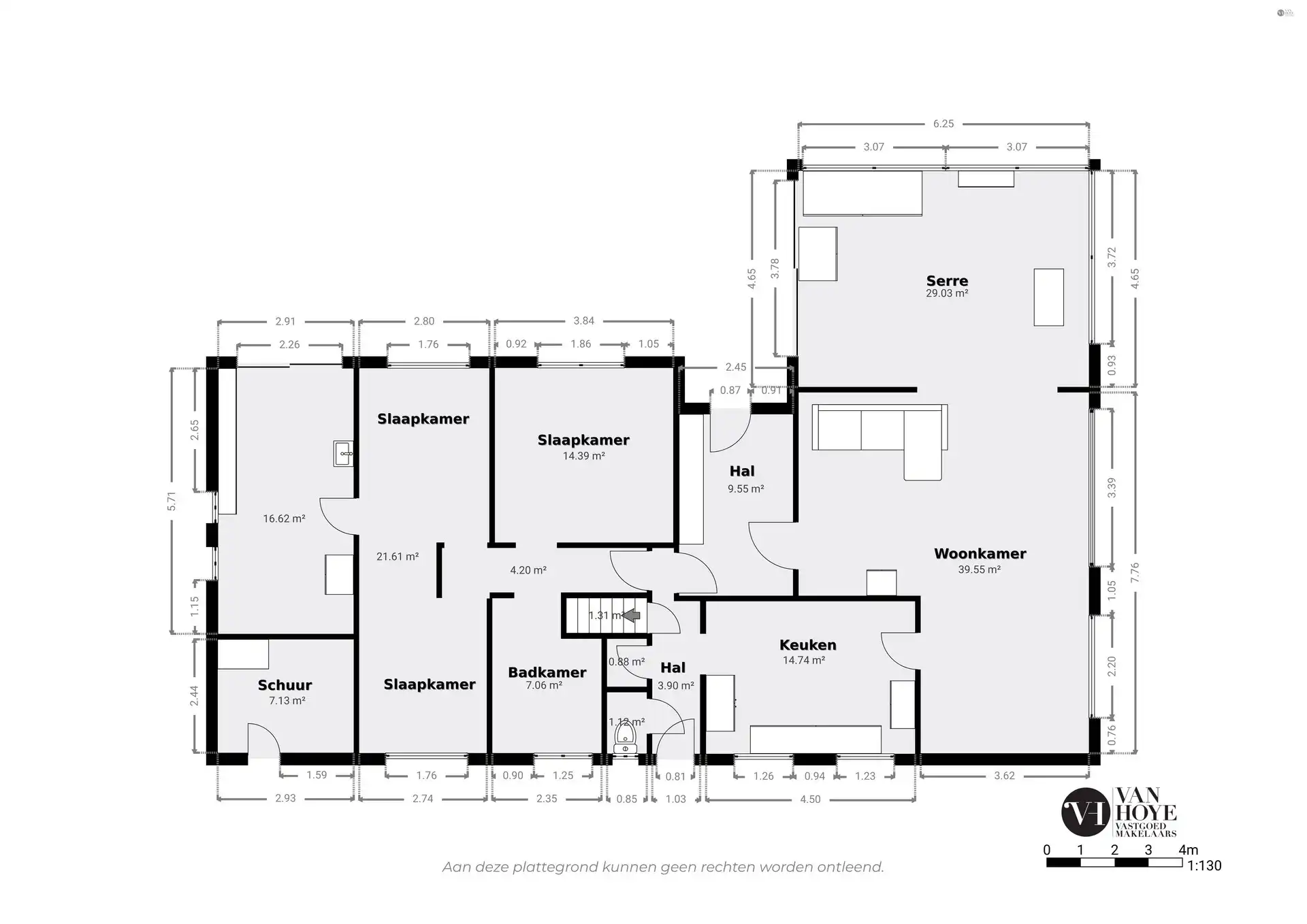
- 215 m² bewoonbaar
- 1876 m² grond
- 3 Slaapkamer(s)
- 1 Tuin
- 1 Garage(s)
Beschrijving
Deze volledig te renoveren bungalow biedt een unieke kans voor wie op zoek is naar ruimte en tal van mogelijkheden. Dankzij de royale oppervlakte van de woning kan u het pand volledig naar eigen smaak en noden herinrichten, of u nu droomt van een ruime gezinswoning, een kangoeroewoning of een combinatie van wonen en werken.
De woning is gelegen op een uitzonderlijk groot perceel van maar liefst 1876 m², omringd door groen en bossen. Situering langs een aardeweg die een vlotte bereikbaarheid garandeert.
Achteraan het perceel bevindt zich bovendien een extra bijgebouw, ideaal als opslagruimte, atelier of hobbyruimte. Dit biedt bijkomende flexibiliteit en maakt het geheel bijzonder aantrekkelijk voor wie nood heeft aan extra ruimte.
Kortom, een eigendom met enorm potentieel op een prachtige, groene locatie perfect voor wie zijn woonproject volledig naar eigen hand wil zetten.
Bij interesse, Bel Laurens op 0471/36.49.78
Energie
![]() |
- Energieverbruik: 660 kWh/m²/jaar
- E-peil: E0
- Beglazing: Onbekend
Extra budget nodig voor je renovatie?

Op de kaart

Financieel
| Prijs | |
|---|---|
| Kadastraal inkomen (niet geïndexeerd) | € 0 |
| Kadastraal inkomen (geïndexeerd) | € 0 |
Berekening kosten
Je aankoopkosten? Die heb je snel berekend via de knop hieronder.
Bijkomende info
Gebouw
| Staat | Op te frissen |
|---|---|
| Bouwcertificaat | Nee |
| Bewoonbaar (m²) | 215 |
| Verdieping | 0 |
| Gevelbreedte | 13 |
| Badkamers | 0 |
| Slaapkamers | 3 |
| Verdiepingen | 0 |
| Garages | 1 |
| Parkeerplaatsen | 0 |
| Doucheruimtes | 0 |
| Toiletten | 0 |
Faciliteiten
| Elektrisch keuringsattest | Nee |
|---|
Perceel
| Diepte (m) | 76 |
|---|---|
| Breedte (m) | 34 |
| Overstromingsgevoelig | Geen |
| P-score | A |
| G-score | A |
| Voorkeurrecht | Nee |
| Totale oppervlakte (m²) | 1876 |
| Bebouwde oppervlakte (m²) | 0 |
| Tuin oppervlakte (m²) | 0 |
| Oppervlakte terras (m²) | 0 |
Vergunning
| Vergunning | Vergunning beschikbaar |
|---|---|
| Verkavelingsvergunning | Geen beschikbaar |
Uitrusting
| Investeringspand | Nee |
|---|---|
| Geschikt voor praktijk | Nee |
| Parking | Nee |
| Garage | Ja |
| Thuiskantoor | Nee |
| Kelder | Nee |
| Zolder | Nee |
| Tuin | Ja |
| Terras | Nee |
| Lift | Nee |
| Rioolaansluiting | Nee |
| Gasaansluiting | Nee |
| Wateraansluiting | Nee |
| Elektriciteitsaansluiting | Nee |
| TV aansluiting | Nee |
| Internetaansluiting | Nee |
| Telefoonaansluiting | Nee |



