Ideale starterswoning te Moerbeke
€ 298.000
Een pand van Van Hoye Vastgoed
Overzicht
- 140 m² bewoonbaar
- 128 m² grond
- 3 Slaapkamer(s)
- 1 Badkamer(s)
- 2 Toilet(ten)
- 1 Garage(s)
Beschrijving
In een rustige en aangename straat in Moerbeke bevindt zich deze charmante en instapklare starterswoning ideaal voor wie comfortabel en zorgeloos wil wonen.
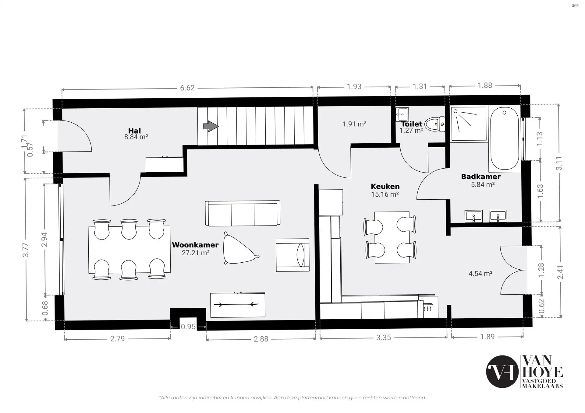
Bij het betreden van de woning kom je in de gezellige leefruimte die baadt in het natuurlijke licht. Aansluitend bevindt zich de vernieuwde, praktische keuken.
De woning beschikt over drie volwaardige slaapkamers en een extra dressingruimte, wat zorgt voor heel wat praktische opbergmogelijkheden en comfort. De badkamer is functioneel ingericht en klaar voor gebruik.
Via de keuken heb je toegang tot een aangename binnenkoer, een fijne plek om in alle rust te ontspannen of gezellig buiten te tafelen. Extra troef is de aanpalende garagebox, die bereikbaar is langs de andere kant van de straat bijzonder handig voor wie veilig en vlakbij wil parkeren.
Op technisch vlak scoort deze woning eveneens uitstekend:
- Centrale verwarming op gas
- EPC-label B (energiezuinig wonen)
- Elektriciteit conform
- Twee toiletten (zowel boven als beneden)
- Voorzien van rolluiken aan de voorzijde
Kortom, een ideale starterswoning met een praktische indeling, energiezuinige voorzieningen en een rustige ligging. Perfect voor wie op zoek is naar een eerste eigen thuis met net dat tikkeltje extra comfort.
Bij interesse, bel Laurens op 0471/36.49.78
Energie
![]() |
- Energieverbruik: 172 kWh/m²/jaar
- E-peil: E0
- Beglazing: Onbekend
Op de kaart

Financieel
| Prijs | |
|---|---|
| Kadastraal inkomen (niet geïndexeerd) | € 475 |
| Kadastraal inkomen (geïndexeerd) | € 0 |
Berekening kosten
Je aankoopkosten? Die heb je snel berekend via de knop hieronder.
Bijkomende info
Gebouw
| Bouwjaar | 1966 |
|---|---|
| Staat | Goed onderhouden |
| Bouwcertificaat | Nee |
| Bewoonbaar (m²) | 140 |
| Verdieping | 0 |
| Badkamers | 1 |
| Slaapkamers | 3 |
| Verdiepingen | 0 |
| Garages | 1 |
| Parkeerplaatsen | 0 |
| Doucheruimtes | 0 |
| Toiletten | 2 |
Faciliteiten
| Keuken uitrusting | Luxueus uitgerust |
|---|---|
| Elektrisch keuringsattest | Ja |
Perceel
| Overstromingsgevoelig | Geen |
|---|---|
| P-score | B |
| G-score | B |
| Voorkeurrecht | Nee |
| Totale oppervlakte (m²) | 128 |
| Bebouwde oppervlakte (m²) | 0 |
| Tuin oppervlakte (m²) | 0 |
| Oppervlakte terras (m²) | 0 |
Vergunning
| Vergunning | Vergunning beschikbaar |
|---|---|
| Verkavelingsvergunning | Geen beschikbaar |
Uitrusting
| Investeringspand | Nee |
|---|---|
| Geschikt voor praktijk | Nee |
| Parking | Nee |
| Garage | Ja |
| Thuiskantoor | Nee |
| Kelder | Nee |
| Zolder | Nee |
| Tuin | Nee |
| Terras | Ja |
| Lift | Nee |
| Rioolaansluiting | Nee |
| Gasaansluiting | Nee |
| Wateraansluiting | Ja |
| Elektriciteitsaansluiting | Ja |
| TV aansluiting | Nee |
| Internetaansluiting | Nee |
| Telefoonaansluiting | Nee |
