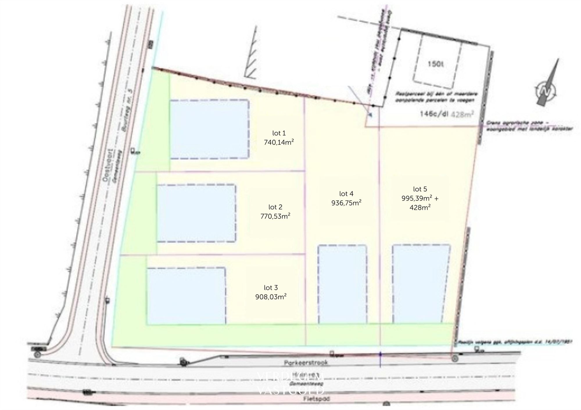
Landelijk en rustig wonen: bouwgrond van 908m² voor open bebouwing
€ 299.000
Een pand van Verdegem Vastgoed
Overzicht
- 908 m² grond
- 1 Tuin
Beschrijving
Tussen Moerbeke en Klein Sinaai
Dit stukje paradijs situeert zich aan de schilderachtige Oostvaart, omgeven door weelderig groen, idyllische weilanden en een Vlaamse kasseistrook.
De locatie biedt niet alleen een serene rust, maar ook gemakkelijke toegang tot alle voorzieningen en uitstekende bereikbaarheid.
Bouwgrond van 908m² - voor open bebouwing
Dit bouwlot is bestemd voor open bebouwing en is vrij van bouwverplichting.
Het perceel is bouwrijp en voorzien van alle nodige aansluitingen, waardoor je direct aan de slag kunt met het verwezenlijken van jouw droomhuis.
De verkavelingsvoorwaarden laten de realisatie van een open bebouwing toe,
bestaande uit 2 bouwlagen,
met het gelijkvloers tussen 9 en 18 meter en de verdieping tussen 9 en 15 meter diep.
Energie
- E-peil: E0
- Beglazing: Onbekend
Op de kaart

Financieel
Prijs | |
---|---|
Kadastraal inkomen (niet geïndexeerd) | € 0 |
Kadastraal inkomen (geïndexeerd) | € 0 |
Berekening kosten
Je aankoopkosten? Die heb je snel berekent via de knop hieronder.
Bijkomende info
Gebouw
Bouwcertificaat | Nee |
---|
Perceel
Overstromingsgevoelig | Geen |
---|---|
P-score | B |
Voorkeurrecht | Nee |
Totale oppervlakte (m²) | 908 |
Oriëntatie tuin | Oost |
Vergunning
Verkavelingsvergunning | Vergunning beschikbaar |
---|
Uitrusting
Investeringspand | Nee |
---|---|
Rioolaansluiting | Nee |
Gasaansluiting | Nee |
Wateraansluiting | Nee |
Elektriciteitsaansluiting | Nee |
TV aansluiting | Nee |
Internetaansluiting | Nee |
Telefoonaansluiting | Nee |