> Te koop > MOERBEKE-WAAS > Grond > Landelijk en rustig wonen: bouwgrond van 939m² voor open bebouwing

Landelijk en rustig wonen: bouwgrond van 939m² voor open bebouwing

Een pand van Verdegem Vastgoed

Volledige aanbod

Overzicht


  • 939 m² grond
  • 1 Tuin

Beschrijving


Tussen Moerbeke en Klein Sinaai
Dit stukje paradijs situeert zich aan de schilderachtige Oostvaart, omgeven door weelderig groen, idyllische weilanden en een Vlaamse kasseistrook.
De locatie biedt niet alleen een serene rust, maar ook gemakkelijke toegang tot alle voorzieningen en uitstekende bereikbaarheid.

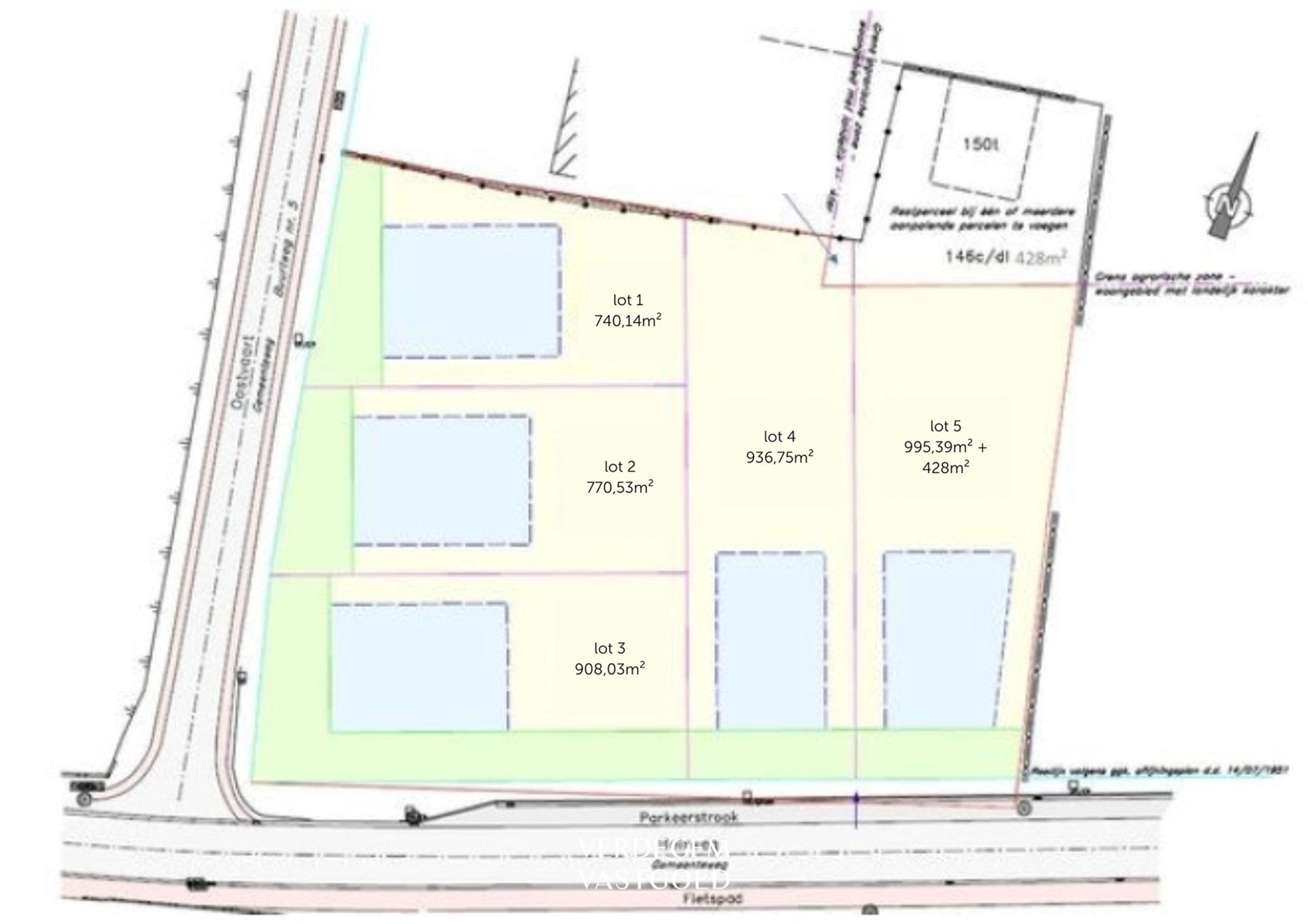
Bouwgrond van 740 m² - voor open bebouwing
Dit bouwlot is bestemd voor open bebouwing en is vrij van bouwverplichting.
Het perceel is bouwrijp en voorzien van alle nodige aansluitingen, waardoor je direct aan de slag kunt met het verwezenlijken van jouw droomhuis.

De verkavelingsvoorwaarden laten de realisatie van een open bebouwing toe,
bestaande uit 2 bouwlagen,
met het gelijkvloers tussen 9 en 18 meter en de verdieping tussen 9 en 15 meter diep.

Dit is een mooie kans om jouw droomwoning te realiseren op een idyllische locatie die rust, natuur en bereikbaarheid combineert.

Energie


  • E-peil: E0
  • Beglazing: Onbekend

Op de kaart


map placeholder

Financieel


Prijs € 309.000
Kadastraal inkomen (niet geïndexeerd) € 0
Kadastraal inkomen (geïndexeerd) € 0

Berekening kosten


Je aankoopkosten? Die heb je snel berekent via de knop hieronder.

Bijkomende info


Gebouw
Bouwcertificaat Nee
Perceel
Overstromingsgevoelig Geen
P-score B
Voorkeurrecht Nee
Totale oppervlakte (m²) 939
Vergunning
Verkavelingsvergunning Vergunning beschikbaar
Uitrusting
Investeringspand Nee
Rioolaansluiting Nee
Gasaansluiting Nee
Wateraansluiting Nee
Elektriciteitsaansluiting Nee
TV aansluiting Nee
Internetaansluiting Nee
Telefoonaansluiting Nee

Een pand van


Verdegem Vastgoed
Logo van makelaar: Verdegem Vastgoed
wild van Vastgoed
Je woning of project is uniek, de verkoop of verhuur ervan vraagt een persoonlijke aanpak. . we zijn een enthousiast en professioneel vastgoedkantoor en een betrouwbare partner . we staan steeds klaar om je te adviseren, te helpen en te begeleiden bij al je vastgoedvragen . we werken uitermate klantgericht en begeleiden onze klanten op een discrete en gepersonaliseerde manier . we ontvangen onze klanten met de grootste zorg en maken vastgoeddromen mogelijk waar we kunnen . we zijn trots op onze jarenlange ervaring en professionalisme in verkoop, verhuur, advies en beheer We helpen je graag! 09 258 11 44 . Kantoor Evergem - Kapellestraat 80 - 09 258 11 44 . Kantoor Zelzate - Pierets - De Colvenaerplein 21 - 09 258 11 44 . Kantoor Lokeren - Vrijheidsplein 19 - 09 349 29 50
Logo van makelaar: Verdegem Vastgoed
HEIRWEG 78 lot 4 MOERBEKE-WAAS
Landelijk en rustig wonen: bouwgrond van 939m² voor open bebouwing foto {{pictureIndex}}

Landelijk en rustig wonen: bouwgrond van 939m² voor open bebouwing

€ 309.000

Heirweg 78/Lot 4 - 9180 MOERBEKE-WAAS

Bezoek het pand

Vul jouw contactgegevens hieronder in en de makelaar contacteert je.

Leer meer over vastgoed

11 June 2025
Huis kopen met bouwovertreding? Dit moet je weten
11 May 2025
Renoveren? Vraag je Mijn VerbouwPremie aan
22 April 2025
Je allereerste renovatieproject selecteren én budgetteren: met de praktische hulp van Spotto
17 February 2025
Levenslang wonen: slaapkamer inrichten voor nieuwe invulling