energetisch en ruime woning op ideale ligging
€ 430.000
Een pand van Van Hoye Vastgoed
Overzicht
- 308 m² bewoonbaar
- 580 m² grond
- 4 Slaapkamer(s)
- 1 Badkamer(s)
- 2 Toilet(ten)
- 2 Garage(s)
Beschrijving
Een nieuw samengesteld gezin, co- housing of u heeft graag veel ruimte, dan is dit het aangewezen pand.
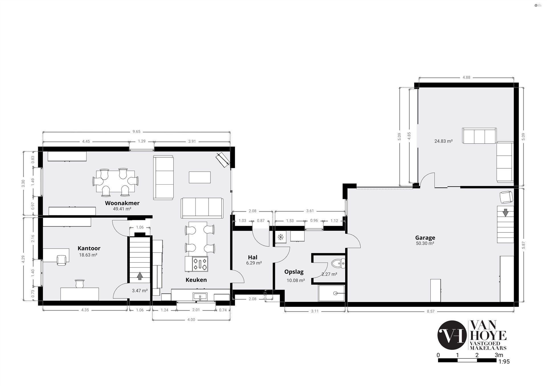
De indeling bestaat uit een gezellige en lichtrijke woonkamer met ingemaakte spotjes en schuifraam naar het terras, open en volledig ingerichte keuken met connectie naar de woonkamer. Op het gelijkvloers is er een praktische bureelruimte(met ingemaakte kasten) die ook dienst kan doen als slaapkamer. Pluspunt is de achterhal (berging /wasplaats) die ook beschikt over een inloopdouche.
Op de verdieping zijn er 3 ruime slaapkamers met overal ingemaakte kasten, cv verwarming op aardgas én warmtepomp. De badkamer op deze verdieping heeft een douche, lavabomeubel en ligbad + apart toilet. De zolder bereikbaar met trektrap geeft u de mogelijkheid voor bergruimte of extra slaapkamers.
De enorm grote garage deed voor de verandering dienst als woonst en kan op deze manier terug gebruikt worden.
praktisch is de aanwezige wasplaats met inloopdouche en vaste trap naar bovenliggend 2 slaapkamers.
Heeft u nog niet genoeg ruimte dan is er ook het bijgebouw, bereikbaar via de garage of via een apart ingang. Dit kan gebruikt worden als kantoor, vrij beroep of ontspanningsruimte.
Bijzonderheden : zonnepanelen, mooie epc waarde van 241 kWh (label C), asbestvrij, CV Hr op aardgas, elektrische rolluiken, gewelfde kelder
Mooi gelegen op wandelafstand van de vaart, met fiets- en wandelpaden + veel natuur geeft deze omgeving veel ontspanningsmogelijkheden. Ook de bereikbaarheid is met op wandelafstand de bushalte naar Lokeren, Sint Niklaas en Antwerpen een pluspunt.
Energie
![]() |
- Energieverbruik: 241 kWh/m²/jaar
- E-peil: E0
- Beglazing: Standaard dubbel
Op de kaart

Financieel
| Prijs | |
|---|---|
| Kadastraal inkomen (niet geïndexeerd) | € 724 |
| Kadastraal inkomen (geïndexeerd) | € 0 |
Berekening kosten
Je aankoopkosten? Die heb je snel berekent via de knop hieronder.
Bijkomende info
Gebouw
| Staat | Goed onderhouden |
|---|---|
| Bouwcertificaat | Nee |
| Bewoonbaar (m²) | 308 |
| Verdieping | 0 |
| Badkamers | 1 |
| Slaapkamers | 4 |
| Verdiepingen | 0 |
| Garages | 2 |
| Parkeerplaatsen | 5 |
| Doucheruimtes | 1 |
| Toiletten | 2 |
Faciliteiten
| Keuken uitrusting | Luxueus uitgerust |
|---|---|
| Materiaal ramenomlijstingen | Hout |
| Beglazing | Standaard dubbel |
| Elektrisch keuringsattest | Nee |
Perceel
| Diepte (m) | 53 |
|---|---|
| Breedte (m) | 20 |
| Overstromingsgevoelig | Geen |
| P-score | A |
| G-score | A |
| Voorkeurrecht | Nee |
| Totale oppervlakte (m²) | 580 |
| Bebouwde oppervlakte (m²) | 0 |
| Tuin oppervlakte (m²) | 0 |
| Oppervlakte terras (m²) | 0 |
| Oriëntatie tuin | Zuidwest |
Vergunning
| Vergunning | Vergunning beschikbaar |
|---|
Uitrusting
| Investeringspand | Nee |
|---|---|
| Geschikt voor praktijk | Nee |
| Parking | Ja |
| Garage | Ja |
| Thuiskantoor | Nee |
| Kelder | Ja |
| Zolder | Ja |
| Tuin | Nee |
| Terras | Nee |
| Lift | Nee |
| Rioolaansluiting | Nee |
| Gasaansluiting | Nee |
| Wateraansluiting | Nee |
| Elektriciteitsaansluiting | Nee |
| TV aansluiting | Nee |
| Internetaansluiting | Nee |
| Telefoonaansluiting | Nee |
