Bouwgrond open bebouwing van 480m² met bouwvergunning
€ 169.000
Een pand van Van Hoye Vastgoed
Overzicht
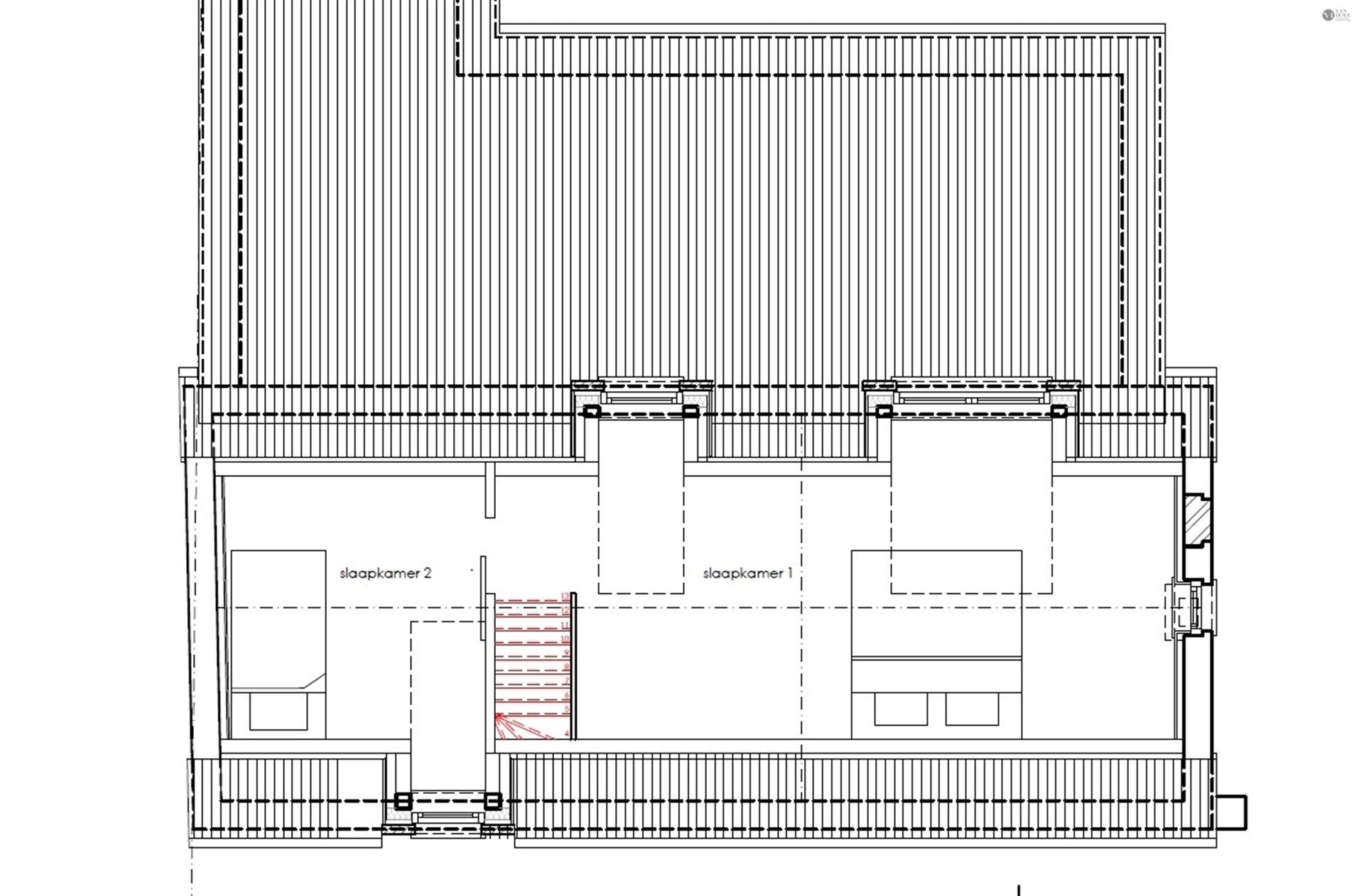
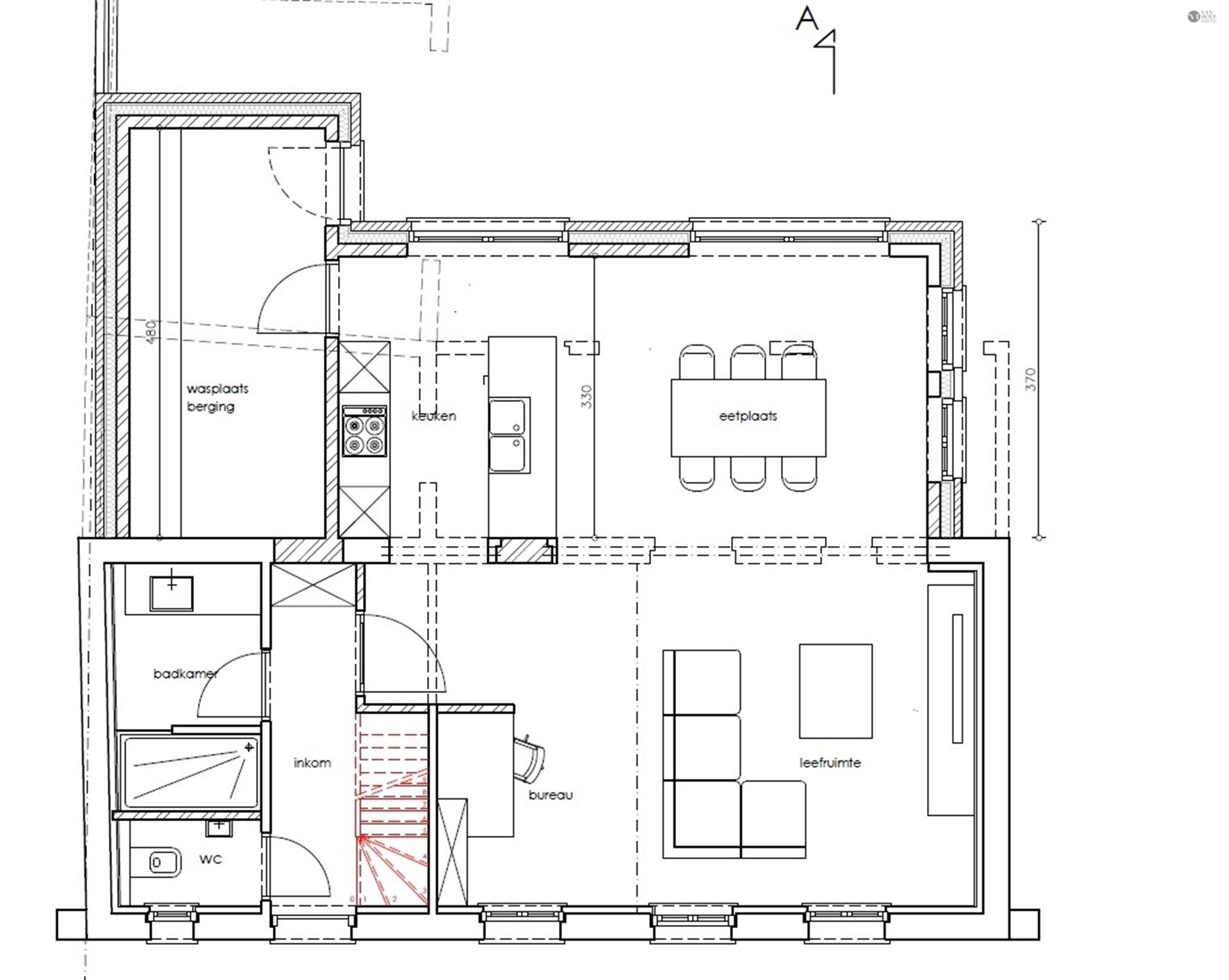
- 131 m² bewoonbaar
- 480 m² grond
- 2 Slaapkamer(s)
Beschrijving
STEKENE- Koestraat 9, mooi gelegen, te renoveren woning op een unieke locatie.
Bent u op zoek naar een te renoveren woning of een bouwgrond in het midden van de natuur en waar u uw vast adres mag plaatsen, dan is dit het ideale pand.
Momenteel staat er op het terrein een oudere woning die gerenoveerd moet worden. Een volledige verbouwing kan hier aan 6 procent btw.
Voor de door u nog nieuw te bouwen woning is al een (ver-)bouwvergunning verkregen, zodat u onmiddellijk kan beginnen.
Voor geïnteresseerden hebben wij de vergunde plannen ter beschikking. De nieuwe woning is voorzien met als basis de huidige woning met nieuwe achterbouw, in totaal 96m² (11,5 breed op 8,4 diep) + verdieping met 2 slaapkamers.
Er is geen bouwverplichting en bent vrij om uw eigen aannemer te kiezen.
Vermoedelijke bouwkost is +/- 225.000 à 250.000 euro bovenop de vraagprijs van de grond.
Heeft U interesse, wees er dan snel bij en neem contact op met Laurens op 0471/36.49.78
Energie
- E-peil: E0
- Beglazing: Enkel
Op de kaart

Financieel
| Prijs | |
|---|---|
| Kadastraal inkomen (niet geïndexeerd) | € 0 |
| Kadastraal inkomen (geïndexeerd) | € 0 |
Berekening kosten
Je aankoopkosten? Die heb je snel berekent via de knop hieronder.
Bijkomende info
Gebouw
| Bouwcertificaat | Nee |
|---|
Perceel
| Diepte (m) | 34 |
|---|---|
| Breedte (m) | 15 |
| Overstromingsgevoelig | Geen |
| P-score | A |
| Voorkeurrecht | Nee |
| Totale oppervlakte (m²) | 480 |
| Oriëntatie tuin | Zuid |
Vergunning
| Vergunning | Vergunning beschikbaar |
|---|---|
| Verkavelingsvergunning | Geen beschikbaar |
Uitrusting
| Investeringspand | Nee |
|---|---|
| Rioolaansluiting | Nee |
| Gasaansluiting | Nee |
| Wateraansluiting | Nee |
| Elektriciteitsaansluiting | Nee |
| TV aansluiting | Nee |
| Internetaansluiting | Nee |
| Telefoonaansluiting | Nee |