Nieuw
Ruime halfopen bebouwing met bijgebouw
€ 585.000
Een pand van Berno Vastgoed
Favoriet
Jouw zoektocht
Jouw scoretabel voor dit pand
Aan het laden...
Overzicht
- 255 m² bewoonbaar
- 1547 m² grond
- 5 Slaapkamer(s)
- 2 Badkamer(s)
- 1 Toilet(ten)
Overstromingsgevaar perceel
Beschrijving
Ruime halfopen bebouwing met bijgebouw
📐 Bewoonbare oppervlakte: 262 m²
🌿 Perceel: 1.547 m²
🏢 Bijgebouw: 198 m²
In een rustige en goed bereikbare straat in Sint-Gillis-Dendermonde, te midden van een groene oase, bevindt zich deze ruime halfopen bebouwing op een perceel van maar liefst 1.547 m². Deze eigendom combineert comfortabel wonen met tal van mogelijkheden dankzij de grote bewoonbare oppervlakte en het multifunctionele bijgebouw.
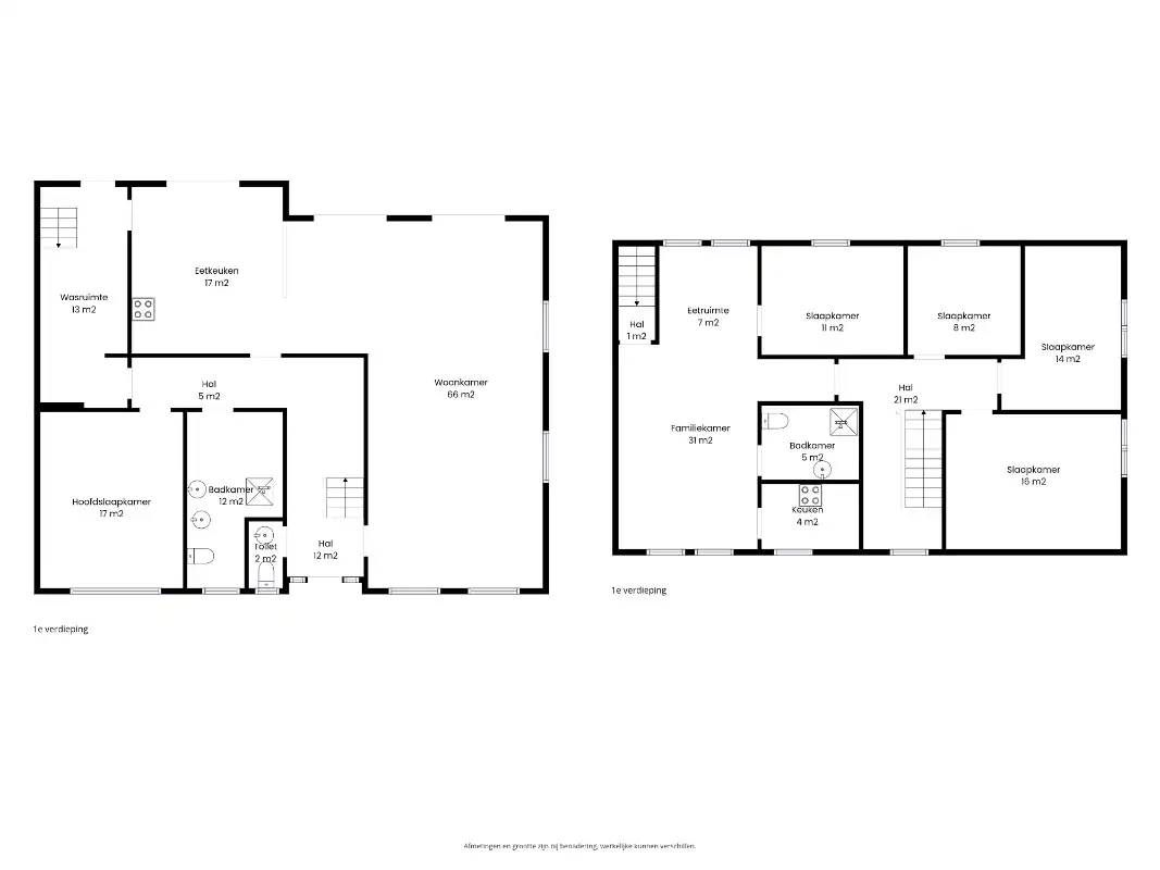
De woning beschikt over een bewoonbare oppervlakte van 255 m² en is praktisch ingedeeld. Op het gelijkvloers vindt u de inkomhal, een ruime leefruimte van 66 m², een keuken, een badkamer, een slaapkamer en een wasplaats. Deze indeling maakt de woning perfect geschikt voor wie comfortabel gelijkvloers wil wonen.
Op de eerste verdieping bevinden zich drie bijkomende slaapkamers, aangevuld met een ingerichte studio. Deze extra ruimte biedt tal van mogelijkheden, zoals kangoeroewonen, een praktijkruimte of een aparte woonunit voor familieleden.
Als kers op de taart is er het ruime bijgebouw van 198 m², dat zich perfect leent als garage, opslagruimte, werkplaats of voor zelfstandige activiteiten.
De woning wordt verwarmd via centrale verwarming op gas en behaalt een gunstig EPC-label B.
Troeven
Deze eigendom biedt een unieke combinatie van ruimte, flexibiliteit en mogelijkheden, ideaal voor grote gezinnen, zelfstandigen of wie op zoek is naar extra opslag- of werkruimte aan huis.
Voor meer informatie of een bezoek: dirko@berno.be
📐 Bewoonbare oppervlakte: 262 m²
🌿 Perceel: 1.547 m²
🏢 Bijgebouw: 198 m²
In een rustige en goed bereikbare straat in Sint-Gillis-Dendermonde, te midden van een groene oase, bevindt zich deze ruime halfopen bebouwing op een perceel van maar liefst 1.547 m². Deze eigendom combineert comfortabel wonen met tal van mogelijkheden dankzij de grote bewoonbare oppervlakte en het multifunctionele bijgebouw.
De woning beschikt over een bewoonbare oppervlakte van 255 m² en is praktisch ingedeeld. Op het gelijkvloers vindt u de inkomhal, een ruime leefruimte van 66 m², een keuken, een badkamer, een slaapkamer en een wasplaats. Deze indeling maakt de woning perfect geschikt voor wie comfortabel gelijkvloers wil wonen.
Op de eerste verdieping bevinden zich drie bijkomende slaapkamers, aangevuld met een ingerichte studio. Deze extra ruimte biedt tal van mogelijkheden, zoals kangoeroewonen, een praktijkruimte of een aparte woonunit voor familieleden.
Als kers op de taart is er het ruime bijgebouw van 198 m², dat zich perfect leent als garage, opslagruimte, werkplaats of voor zelfstandige activiteiten.
De woning wordt verwarmd via centrale verwarming op gas en behaalt een gunstig EPC-label B.
Troeven
- Halfopen bebouwing op perceel van 1.547 m²
- 262 m² bewoonbare oppervlakte
- EPC B
- Groot bijgebouw van 198 m² (garage/werkplaats/opslag)
- Rustige ligging met goede bereikbaarheid
Deze eigendom biedt een unieke combinatie van ruimte, flexibiliteit en mogelijkheden, ideaal voor grote gezinnen, zelfstandigen of wie op zoek is naar extra opslag- of werkruimte aan huis.
Voor meer informatie of een bezoek: dirko@berno.be
Energie
![]() |
- Energieverbruik: 147 kWh/m²/jaar
- E-peil: E0
- Verwarming: Gas
- Beglazing: Standaard dubbel
Op de kaart

Financieel
| Prijs | |
|---|---|
| Kadastraal inkomen (niet geïndexeerd) | € 1.145 |
Berekening kosten
Je aankoopkosten? Die heb je snel berekend via de knop hieronder.
Bijkomende info
Gebouw
| Renovatie jaar | 1998 |
|---|---|
| Staat | Goed onderhouden |
| Bewoonbaar (m²) | 255 |
| Badkamers | 2 |
| Slaapkamers | 5 |
| Verdiepingen | 0 |
| Garages | 0 |
| Parkeerplaatsen | 0 |
| Toiletten | 1 |
Faciliteiten
| Keuken uitrusting | Goed uitgerust |
|---|---|
| Beglazing | Standaard dubbel |
| Brandstof primaire verwarming | Gas |
| Septische tank | Nee |
Perceel
| Overstromingsgevoelig | Geen |
|---|---|
| P-score | D |
| G-score | C |
| Totale oppervlakte (m²) | 1547 |
| Bebouwde oppervlakte (m²) | 0 |
| Oriëntatie tuin | Zuid |
Vergunning
| Verkavelingsvergunning | Geen beschikbaar |
|---|
Uitrusting
| Investeringspand | Nee |
|---|---|
| Parking | Nee |
| Garage | Nee |
| Lift | Nee |
| Rioolaansluiting | Nee |
| Gasaansluiting | Ja |
| Wateraansluiting | Ja |
| Elektriciteitsaansluiting | Ja |
| Internetaansluiting | Ja |
| Telefoonaansluiting | Nee |
| Zonnepanelen | Nee |
| Zonneboiler | Nee |
| Alarm | Nee |
| Videofoon | Nee |
| Grondwaterput | Nee |
Een pand van
Berno Vastgoed
Berno Vastgoed
Vastgoed in vertrouwen
Hertstraat 19, Dendermonde
Leer meer over vastgoed
Nieuw
23 March 2026
Op Spotto zoeken als een pro: 10 slimme tips
Nieuw
21 March 2026
Hoeveel kan ik lenen om een huis te kopen?
01 March 2026
Wanneer heb ik een bouwvergunning of omgevingsvergunning nodig?
17 February 2026
