Nieuw
Opdorp: 2 prachtige & landschappelijke bouwgronden
€ 250.000
Een pand van Immo Arthur Segers
Overzicht
- 825 m² grond
Beschrijving
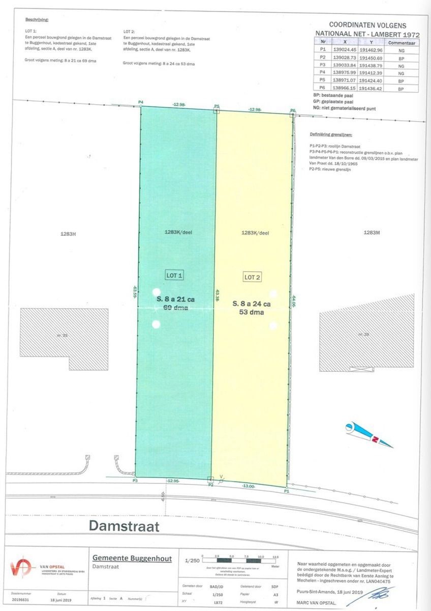
In Opdorp, bieden we u deze 2 loten bouwgrond voor een half-open bebouwing (driegevel-woningen) aan. Gelegen in een woongebied met landelijk karakter, met achterliggend landschappelijk waardevol agrarisch gebied. Bestemming: het oprichten van eengezinswoningen (met inbegrip van zorg-wonen). De bouwgronden zijn gelegen in een verkaveling voor 2 half-open bebouwingen. De grondoppervlakte van het linker-lot bedraagt: 8a 21ca. De grondoppervlakte van het rechter-lot bedraagt: 8a 24ca. Deze bouwgronden geven de mogelijkheid tot het bouwen van uw droomwoning. Zo is een gevelbreedte van bij de 8-9 meter mogelijk. Bouw-vrije strook: 4 meter.
De bouwdiepte op het gelijkvloers is 20 meter. De bouwdiepte op de eerste verdieping is 12 meter. Dit zorgt voor een prachtige, stijlvolle en ruime bouw met een gelijkvloers en 2 verdiepen. Garage mag ontworpen worden in hoofd- of bijgebouw. De bouwvoorschriften/verkaveling-voorschiften zijn terug te vinden op de website: www.arthur.be
De bouwgrond is gelegen op op een verbindingsweg vlakbij het centrum (beenhouwer, bakker, school en recreatie) van Opdorp-Buggenhout, het groene ontmoetingspunt “Den Dries” en de verbindingswegen Dendermonden-Mechelen-Antwerpen. Vraagprijs per lot: 250.000,- EUR. Verdere info over uw persoonlijke bouw zijn te bekomen bij de Gemeente Buggenhout: omgeving@buggenhout.be. Info te downloaden op: www.arthur.be. Voor een GRATIS SCHATTING of meer info, contacteer DIETER van IMMO ARTHUR SEGERS via info@arthur.be
De bouwdiepte op het gelijkvloers is 20 meter. De bouwdiepte op de eerste verdieping is 12 meter. Dit zorgt voor een prachtige, stijlvolle en ruime bouw met een gelijkvloers en 2 verdiepen. Garage mag ontworpen worden in hoofd- of bijgebouw. De bouwvoorschriften/verkaveling-voorschiften zijn terug te vinden op de website: www.arthur.be
De bouwgrond is gelegen op op een verbindingsweg vlakbij het centrum (beenhouwer, bakker, school en recreatie) van Opdorp-Buggenhout, het groene ontmoetingspunt “Den Dries” en de verbindingswegen Dendermonden-Mechelen-Antwerpen. Vraagprijs per lot: 250.000,- EUR. Verdere info over uw persoonlijke bouw zijn te bekomen bij de Gemeente Buggenhout: omgeving@buggenhout.be. Info te downloaden op: www.arthur.be. Voor een GRATIS SCHATTING of meer info, contacteer DIETER van IMMO ARTHUR SEGERS via info@arthur.be
Energie
Op de kaart

Financieel
| Prijs | |
|---|---|
| Kadastraal inkomen (niet geïndexeerd) | € 6 |
Berekening kosten
Je aankoopkosten? Die heb je snel berekent via de knop hieronder.
Bijkomende info
Perceel
| Diepte (m) | 64 |
|---|---|
| Overstromingsgevoelig | Geen |
| P-score | A |
| Voorkeurrecht | Nee |
| Totale oppervlakte (m²) | 825 |
Vergunning
| Vergunning | Geen beschikbaar |
|---|---|
| Verkavelingsvergunning | Geen beschikbaar |
Een pand van
Immo Arthur Segers
Jong en dynamisch team met persoonlijke aanpak
Immo Arthur Segers garandeert een persoonlijke aanpak bij elk dossier, waarbij een heldere communicatie en goede service voorop staan. Met de nodige expertise en advies op maat, helpen we graag om uw vastgoedtransactie tot een goed einde te brengen. Dankzij ruime kantooruren staan wij steeds voor u klaar. Kom even langs, drink een koffietje en voel je meteen thuis.
7111481
Leer meer over vastgoed
22 October 2025
Hoeveel kan ik lenen om een huis te kopen?
11 June 2025
Huis kopen met bouwovertreding? Dit moet je weten
11 May 2025
Renoveren? Vraag je Mijn VerbouwPremie aan
22 April 2025