Uitzonderlijk en polyvalente pand !
€ 800.000
Een pand van Woonservice
Favoriet
Jouw zoektocht
Jouw scoretabel voor dit pand
Aan het laden...
Jouw geplande bezichtigingen
Aan het laden...
Overzicht
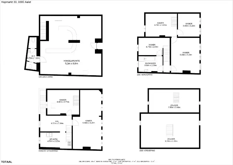
- 433 m² bewoonbaar
- 140 m² grond
- 6 Slaapkamer(s)
- 1 Badkamer(s)
Beschrijving
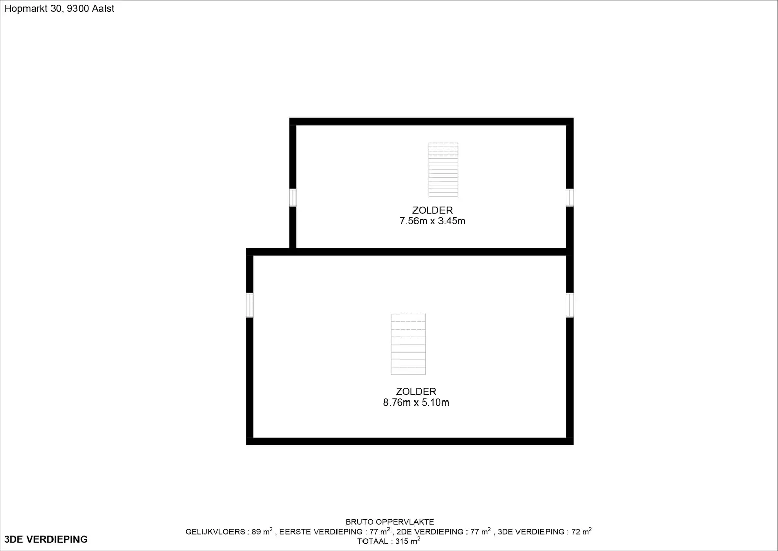
Dit uitzonderlijke en polyvalente pand is uiterst strategisch en commercieel gelegen op de Hopmarkt te Aalst. Dit bestaat uit een handelshuis enerzijds (huisnummer 30), en een aanpalend woonhuis anderzijds (huisnummer 28). Het handelshuis bestaat op het gelijkvloers uit een handelszaak (momenteel restaurant met toog en sanitaire voorziening) van 89m². Op de eerste verdieping geeft de overloop toegang tot een ruime woonkamer, een keuken en 1 ruime slaapkamer. Op de tweede verdieping bevinden zich 4 slaapkamers en een badkamer. De zolderverdieping is onderverdeeld in 2 ruimtes en heeft een oppervlakte van 72m². De totale benutbare oppervlakten van dit handelshuis bedraagt 315m². Het aanpalende woonhuis bestaat op het gelijkvloers uit een woonkamer en salon, op de eerste verdieping bevindt zich een keuken en een eerste slaapkamer. Op de tweede verdieping bevinden zich een tweede slaapkamer en een badkamer. De zolder kan aangewend worden voor het inrichten van een ruime slaapkamer. Momenteel wordt dit woonhuis gebruikt als opslagruimte. De woning heeft een totale benutbare oppervlakte van 118m². Gecombineerd met het handelshuis is er voor beide panden dus een benutbare oppervlakte van liefst 433m². De totale grondoppervlakte bedraagt 1a40ca, de breedte aan de straat bedraagt 14 meter. Het pand is vastgesteld bouwkundig erfgoed (Burgerhuis). Pand met vele mogelijkheden, beide entiteiten hebben renovatiewerken nodig. EPC’s 544 kWh/m² (handelspand) en 401 kWh/m² (woonhuis). Neem gerust contact voor meer info, plannen, enz.
Energie
![]() |
- EPC Certificaat: 202111220002497262-RES-1
- Energieverbruik: 544 kWh/m²/jaar
- E-peil: E0
- Beglazing: Onbekend
Op de kaart

Financieel
| Prijs |
|---|
Berekening kosten
Je aankoopkosten? Die heb je snel berekend via de knop hieronder.
Bijkomende info
Gebouw
| Staat | Op te frissen |
|---|---|
| Bewoonbaar (m²) | 433 |
| Gevelbreedte | 14 |
| Badkamers | 1 |
| Slaapkamers | 6 |
| Verdiepingen | 0 |
| Garages | 0 |
| Parkeerplaatsen | 0 |
| Toiletten | 0 |
Faciliteiten
| Septische tank | Nee |
|---|
Perceel
| Overstromingsgevoelig | Geen |
|---|---|
| Totale oppervlakte (m²) | 140 |
| Bebouwde oppervlakte (m²) | 0 |
Vergunning
| Verkavelingsvergunning | Geen beschikbaar |
|---|
Uitrusting
| Investeringspand | Nee |
|---|---|
| Parking | Nee |
| Garage | Nee |
| Zolder | Ja |
| Lift | Nee |
| Rioolaansluiting | Ja |
| Gasaansluiting | Ja |
| Wateraansluiting | Ja |
| Elektriciteitsaansluiting | Ja |
| Internetaansluiting | Ja |
| Telefoonaansluiting | Ja |
| Zonnepanelen | Nee |
| Zonneboiler | Nee |
| Alarm | Nee |
| Videofoon | Nee |
| Grondwaterput | Nee |
Appartementsblok
| Lift | Nee |
|---|---|
| Intercom | Nee |
Een pand van
Woonservice
Vastgoedkantoor
Woonservice
is een professioneel en dynamisch vastgoedteam, actief in Aalst en wijde omgeving. Onze ruime ervaring, grote inzet en uitgebreide vakkennis alsook de centrale ligging van onze kantoren, zijn een paar van onze belangrijkste troeven. Samen met onze goede contacten in de vastgoedsector, bij notarissen en diverse financiële instellingen, doen wij er alles aan om u woondroom op een correcte manier te realiseren. De verkoop van uw woning begint meer dan ooit met de juiste prijszetting.
Erkend als schatter-expert door VLABEL onder identificatienummer 005250348100.
Dit is precies wat wij als makelaars doen! Dankzij onze grondige kennis van de vastgoedmarkt bent u zeker van de beste prijs voor uw vastgoed. Woonservice maakt dan ook vrijblijvend en volledig gratis een realistische schatting van uw woning. Onze eerlijke en kordate handelswijze ligt aan de basis van het vertrouwen dat wij van onze klanten mogen ontvangen. Hopelijk mogen wij binnenkort ook uw vertrouwen ervaren !
1255
Leer meer over vastgoed
04 January 2026
Zoek je een kantoor, een magazijn of… iets ertussenin? Bedrijfsvastgoed uitgelegd
05 November 2024
Bedrijfsvastgoed in transitie: ontdek de toekomst van werkplekken
16 October 2024
Opbrengsteigendom: een slim pad naar passief inkomen en vermogensgroei
09 September 2024
