Nieuw
Casco-app 1ste verdiep en staanplaats (onder registratie)
€ 295.000
Een pand van Allur vastgoed
Favoriet
Jouw zoektocht
Jouw scoretabel voor dit pand
Aan het laden...
Jouw geplande bezichtigingen
Aan het laden...
Overzicht
- 3 Slaapkamer(s)
- 1 Badkamer(s)
- 1 Toilet(ten)
Beschrijving
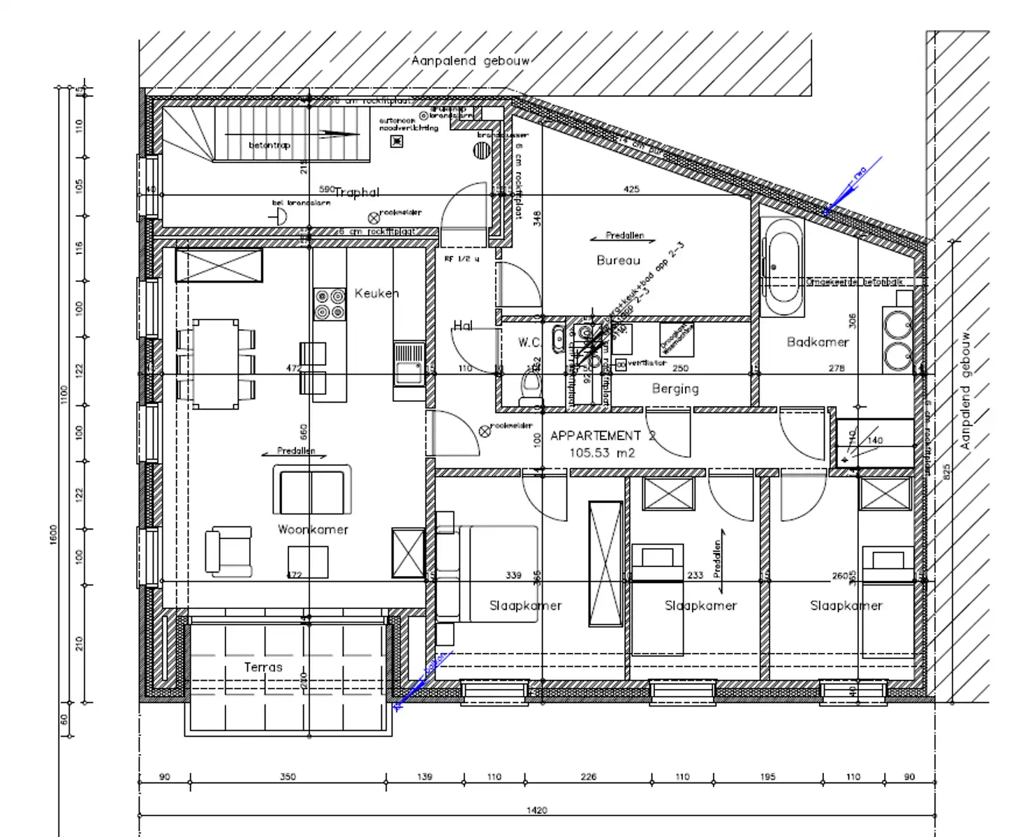
In een kleinschalige nieuwbouwresidentie zonder lift bestaande uit 3 appartementen, gelegen op de hoek van de Binnenstraat en Gefusilleerdenstraat, vindt u dit casco-appartement gelegen op de eerste verdieping. De residentie beschikt over een gemeenschappelijke inkom met afzonderlijk tellerlokaal en berging. Naast de inkom is er nog een praktische ruimte die mogelijks kan dienen als fietsenstalling. Elk appartement beschikt over een autostaanplaats met laadpunt, zes zonnepanelen, vloerverwarming en mooi terras. Verdere afwerking (tegels, keuken en badkamer) van privatieve delen in samenspraak en overleg met de bouwheer. Het appartement op de eerste verdieping bestaat uit een inkom met toilet, bureau, woonkamer en keuken, 3 slaapkamers, badkamer, berging en terras toegankelijk via de leefkamer. Aankoop onder registratierecht. Basisakte beschikbaar. Plannen van de plattegrond van het appartement beschikbaar via www.allur.be. Gelegen nabij openbaar vervoer, winkels en sportfaciliteiten. Stedenbouwkundige inlichtingen in aanvraag.
Energie
Op de kaart

Downloads
- .png (png)
Financieel
| Prijs |
|---|
Berekening kosten
Je aankoopkosten? Die heb je snel berekend via de knop hieronder.
Bijkomende info
Gebouw
| Bouwjaar | 2025 |
|---|---|
| Verdieping | 1 |
| Gevels | 3 |
| Badkamers | 1 |
| Slaapkamers | 3 |
| Verdiepingen | 2 |
| Parkeerplaatsen | 0 |
| Toiletten | 1 |
Faciliteiten
| Type vloer |
|---|
Perceel
| P-score | A |
|---|---|
| Voorkeurrecht | Nee |
| Tuin oppervlakte (m²) | 0 |
Vergunning
| Vergunning | Vergunning beschikbaar |
|---|---|
| Verkavelingsvergunning | Geen beschikbaar |
| Bouwovertreding | Geen |
| Bouwovertreding dagvaardiging | Geen |
Uitrusting
| Parking | Nee |
|---|---|
| Garage | Nee |
| Tuin | Nee |
| Terras | Ja |
| Gasaansluiting | Ja |
| Wateraansluiting | Ja |
| Elektriciteitsaansluiting | Ja |
| Telefoonaansluiting | Ja |
Een pand van
Allur vastgoed
Passie voor vastgoed en mensen
allur verkoopt geen huis, wel een thuis...
Welkom bij allur vastgoed, een residentieel vastgoedkantoor met een eigentijdse, persoonlijke, efficiënte aanpak en een focus op de vastgoedmarkt in de westrand rond Brussel.
Discretie, transparante communicatie, ervaring, marktkennis en een persoonlijke benadering zorgen voor een succesvolle vastgoedsamenwerking.
Wenst u te kopen, verkopen, huren of verhuren? Bij allur bent u aan het juiste adres voor een professionele begeleiding van A tot Z.
7559254
Leer meer over vastgoed
23 March 2026
Op Spotto zoeken als een pro: 10 slimme tips
21 March 2026
Hoeveel kan ik lenen om een huis te kopen?
01 March 2026
Wanneer heb ik een bouwvergunning of omgevingsvergunning nodig?
17 February 2026