Grond te koop
€ 199.800
Een pand van Verrassend Vastgoed
Favoriet
Jouw zoektocht
Jouw scoretabel voor dit pand
Aan het laden...
Jouw geplande bezichtigingen
Aan het laden...
Overzicht
- 464 m² grond
Beschrijving
Mooi gelegen bouwgrond aan de Leirekensroute geschikt voor half-open bebouwing!
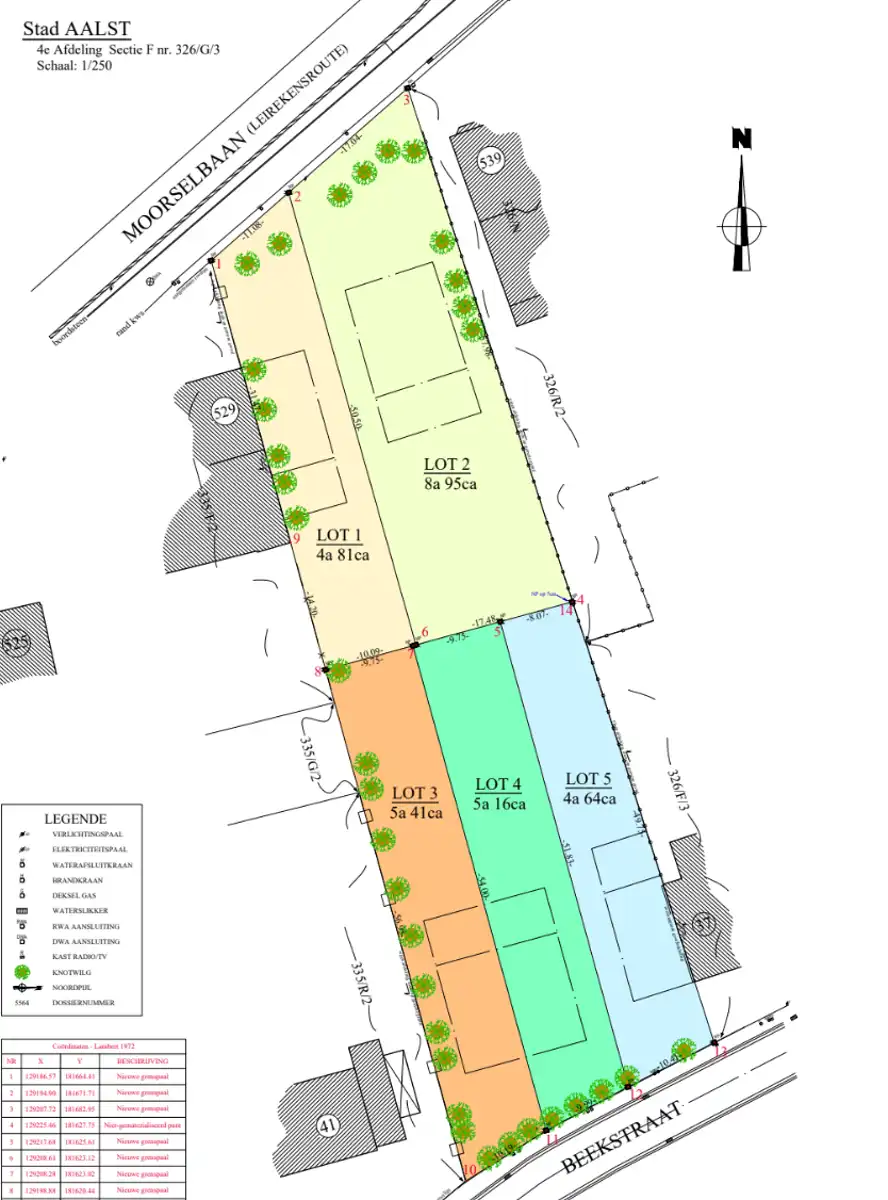
Deze knappe bouwgrond met een oppervlakte van 464m2( LOT 5) is gelegen aan de Beekstraat tussen nr 37 en 41 en is geschikt voor het oprichten van een half-open bebouwing. Topligging aan de Leirekensroute, nabij winkels, aansluiting openbaar vervoer en met een gemakkelijke ontsluiting naar autosnelweg. Verder nog te koop: LOT 1: 481 m2, LOT 2: 895m2, LOT 3: 541m2 en LOT 4: 516m2. Meer info via maarten@verrassendvastgoed.be of 053/42 30 01!
Energie
Op de kaart

Financieel
| Prijs |
|---|
Berekening kosten
Je aankoopkosten? Die heb je snel berekend via de knop hieronder.
Bijkomende info
Perceel
| Overstromingsgevoelig | Geen |
|---|---|
| P-score | B |
| Voorkeurrecht | Nee |
| Totale oppervlakte (m²) | 464 |
| Oriëntatie tuin | Noordwest |
Vergunning
| Vergunning | Geen beschikbaar |
|---|---|
| Verkavelingsvergunning | Geen beschikbaar |
| Bouwovertreding | Geen |
| Bouwovertreding dagvaardiging | Geen |
| Type gebied | Landelijk |
Een pand van
Verrassend Vastgoed
Verrassend Vastgoed
Een appartement of huis kopen of huren in Aalst en omstreken? Verrassend Vastgoed vindt uw droomwoning verrassend vlot. Als ervaren vastgoedmakelaar uit de regio Aalst spot ons team snel de mooiste buitenkansen op de regionale woonmarkt. Wilt u verkopen of verhuren? Dankzij onze grondige kennis van de vastgoedmarkt bent u zeker van de beste prijs voor uw vastgoed.
Verrassend Vastgoed bundelt dynamiek en enthousiasme met jarenlange ervaring. Erkend makelaar Maarten Verhoeven en zijn team kennen de lokale markt door en door. Enthousiasme én ervaring ... de beste garantie voor een immopartner die verrassend vlug vorm geeft aan uw woondromen.
Contacteer ons gerust via 053/42.30.01 of info@verrassendvastgoed.be
7547720
Leer meer over vastgoed
23 March 2026
Op Spotto zoeken als een pro: 10 slimme tips
21 March 2026
Hoeveel kan ik lenen om een huis te kopen?
01 March 2026
Wanneer heb ik een bouwvergunning of omgevingsvergunning nodig?
17 February 2026