Nieuw Virtual tour
EREMBODEGEM - Nieuwbouwwoning op rustige locatie lot 1
€ 478.968
Ouden Aardeweg 30 - 9300 Aalst
Een pand van Immo De Ras
Favoriet
Jouw zoektocht
Jouw scoretabel voor dit pand
Aan het laden...
Jouw geplande bezichtigingen
Aan het laden...
Overzicht
- 160 m² bewoonbaar
- 480 m² grond
- 3 Slaapkamer(s)
- 1 Badkamer(s)
- 2 Toilet(ten)
- 1 Tuin
Beschrijving
EREMBODEGEM - Deze prachtige nieuwbouwwoning is landelijk gelegen, in een deelgemeente van Aalst. De woning zal in afwerkingsfase worden aangeboden waarbij nog dient te worden voorzien door de koper: keuken, vloeren en badkamer (behalve inloopdouche). De mogelijkheid bestaat ook om op maat verder af te werken door de bouwheer.
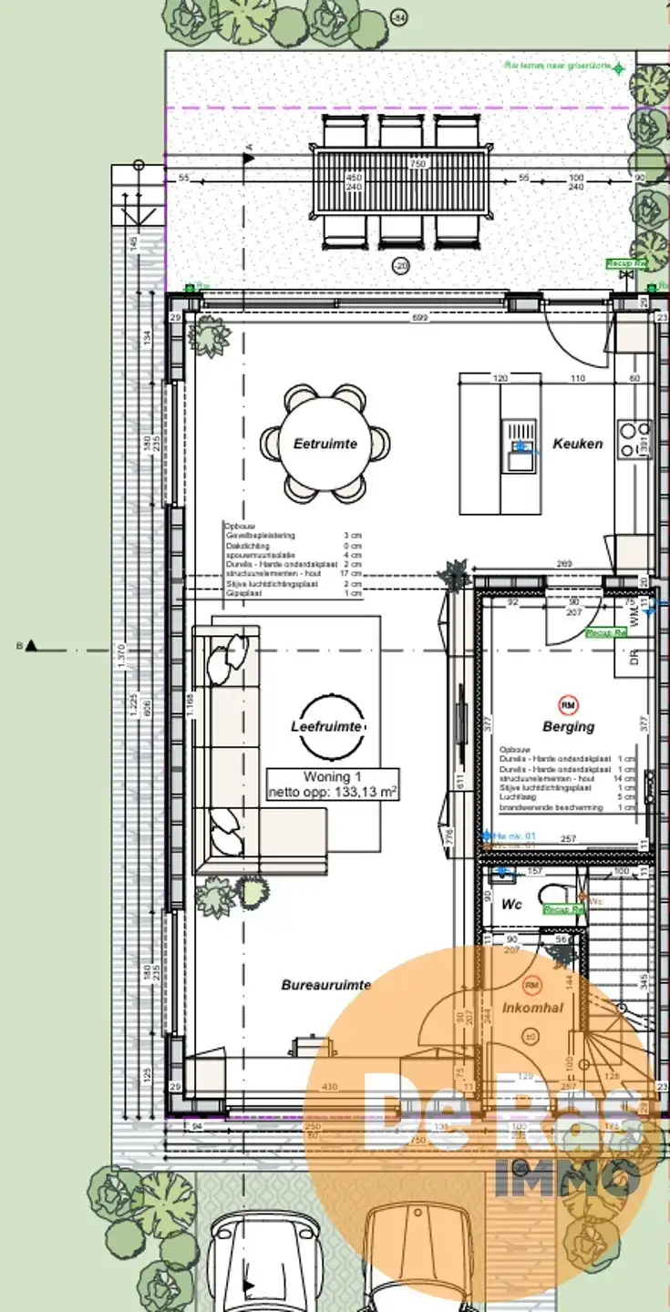
Naar indeling toe bevindt zich op het gelijkvloers een inkomhal met gastentoilet, een lichtrijke woonkamer, een keuken en een praktische berging. Op de eerste verdieping bevinden zich de nachthal, 3 slaapkamers en een badkamer.
Troeven: EPB-nieuwbouw, warmtepomp (koelen en warmen), zonnepanelen, ventilatiesysteem C+, hoge isolatiewaarde, RW-put,..
De ligging van dit pand is bijzonder aantrekkelijk met scholen, banken, en supermarkten in de directe omgeving. Daarnaast geniet deze woning van een heel goede bereikbaarheid door het openbaar vervoer, station, belangrijke invalswegen en de E40.
Aankoop onder gesplitst stelsel:
Constructiewaarde: € 321.200 (21% BTW)
Grondwaarde: € 155.000 (12% registratie)
Bent u opzoek naar een nieuwbouwwoning met 3 slaapkamers op een uiterst rustige locatie? Inkijk bouwplannen en bespreking dossier op kantoor na afspraak: 053/60.65.60
Naar indeling toe bevindt zich op het gelijkvloers een inkomhal met gastentoilet, een lichtrijke woonkamer, een keuken en een praktische berging. Op de eerste verdieping bevinden zich de nachthal, 3 slaapkamers en een badkamer.
Troeven: EPB-nieuwbouw, warmtepomp (koelen en warmen), zonnepanelen, ventilatiesysteem C+, hoge isolatiewaarde, RW-put,..
De ligging van dit pand is bijzonder aantrekkelijk met scholen, banken, en supermarkten in de directe omgeving. Daarnaast geniet deze woning van een heel goede bereikbaarheid door het openbaar vervoer, station, belangrijke invalswegen en de E40.
Aankoop onder gesplitst stelsel:
Constructiewaarde: € 321.200 (21% BTW)
Grondwaarde: € 155.000 (12% registratie)
Bent u opzoek naar een nieuwbouwwoning met 3 slaapkamers op een uiterst rustige locatie? Inkijk bouwplannen en bespreking dossier op kantoor na afspraak: 053/60.65.60
Energie
Downloads
- Gewestinfo.pdf (pdf)
- Kadastraal plan.pdf (pdf)
- OnroerendErfgoed.pdf (pdf)
- Overstromingsgevaar.pdf (pdf)
- Voorkooprecht.pdf (pdf)
- Bodemattest.pdf (pdf)
- Rooilijnplan.pdf (pdf)
- STED.pdf (pdf)
Financieel
| Prijs |
|---|
Bijkomende info
Gebouw
| Bouwjaar | 2025 |
|---|---|
| Bewoonbaar (m²) | 160 |
| Gevels | 3 |
| Gevelbreedte | 8 |
| Zolder | 0 |
| Kelder | 0 |
| Badkamers | 1 |
| Slaapkamers | 3 |
| Verdiepingen | 1 |
| Garages | 0 |
| Parkeerplaatsen | 2 |
| Doucheruimtes | 0 |
| Toiletten | 2 |
Faciliteiten
| Type vloer |
|---|
Perceel
| Overstromingsgevoelig | Geen |
|---|---|
| P-score | A |
| G-score | A |
| Voorkeurrecht | Nee |
| Totale oppervlakte (m²) | 480 |
| Tuin oppervlakte (m²) | 0 |
Vergunning
| Vergunning | Vergunning beschikbaar |
|---|---|
| Verkavelingsvergunning | Vergunning beschikbaar |
Uitrusting
| Geschikt voor rolstoelgebruikers | Nee |
|---|---|
| Parking | Ja |
| Garage | Nee |
| Thuiskantoor | Ja |
| Tuin | Ja |
| Terras | Ja |
| Lift | Nee |
| Wateraansluiting | Ja |
| Elektriciteitsaansluiting | Ja |
| Zwembad | Nee |
| Zwemvijver | Nee |
| Regenwaterput | Ja |
Een pand van
Immo De Ras
IMMO DE RAS
IMMO DE RAS, jouw vastgoedexpert bij het vinden van een nieuwe bestemming voor uw vastgoed. Verkoop en verhuur van huizen, appartementen en gronden. Wij helpen u graag verder met ons groot aanbod te koop in regio Lede, Erpe-Mere, Sint-Lievens-Houtem, Herzele, Zottegem, Wichelen, Wetteren, ... Services: gratis schatting, kopen en verkopen, projectontwikkeling, certificaten en keuringen.
7583630
Leer meer over vastgoed
23 March 2026
Op Spotto zoeken als een pro: 10 slimme tips
21 March 2026
Hoeveel kan ik lenen om een huis te kopen?
01 March 2026
Wanneer heb ik een bouwvergunning of omgevingsvergunning nodig?
17 February 2026