Bouwgrond voor gesloten bebouwing in de Aalsterse stadsrand
€ 125.000
Een pand van Immo Zone
Favoriet
Jouw zoektocht
Jouw scoretabel voor dit pand
Aan het laden...
Jouw geplande bezichtigingen
Aan het laden...
Overzicht
- 160 m² grond
- 1 Tuin
Beschrijving
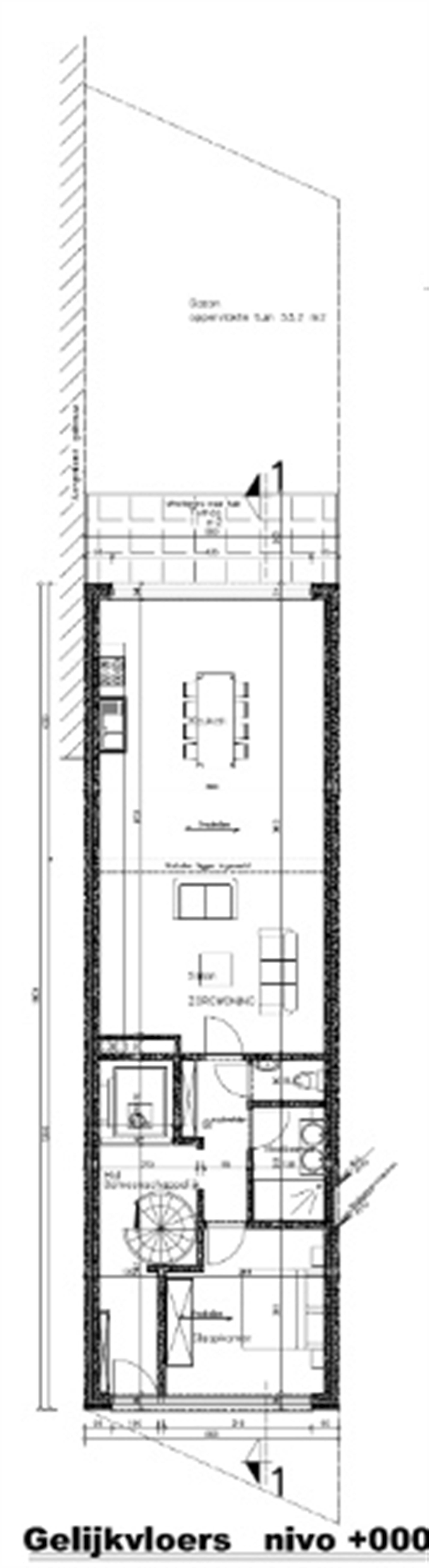
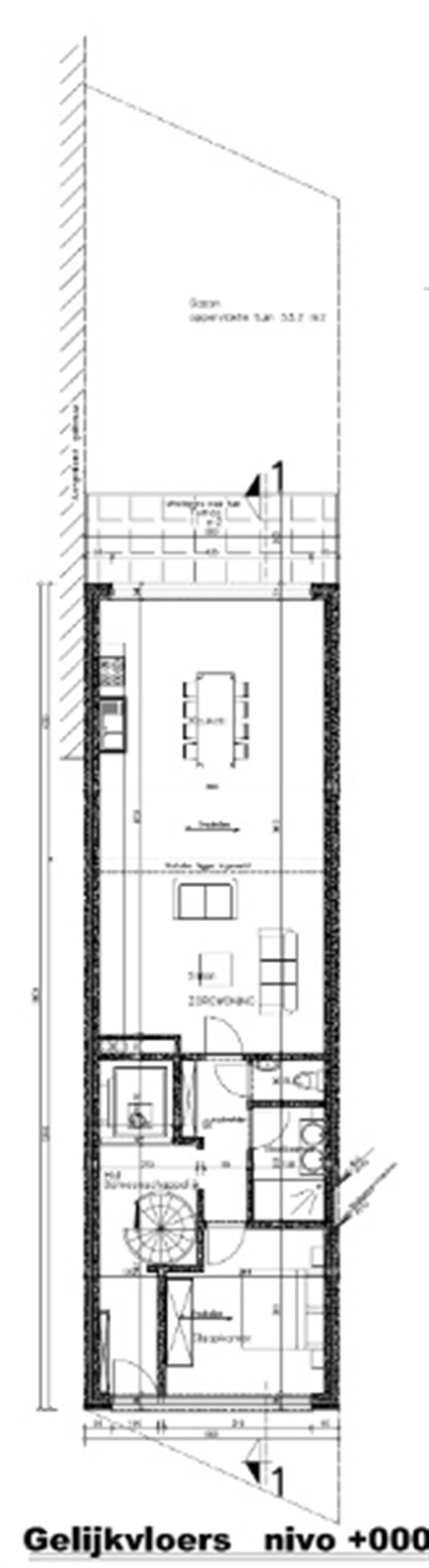
Deze bouwgrond van 160ca is gelegen in de Nette Coessensstraat, een rustig en doodlopende straat tussen de Molendreef en ASZ.
De grond heeft een breedte van 5,53 meter en een diepte van 28,87 meter.
Bouwdiepte 18meter (12 meter op eerste verdieping). Kroonlijsthoogte 6 meter. Dakhelling maximaal 45 graden.
Gelegen in goedgekeurde en niet-vervallen verkaveling. Vergunning beschikbaar voor het uitvoeren van de plannen!
Voor meer informatie en/of een bezoek, contacteert u Didier van Immo Zone op het nummer 0476/ 73. 17. 99.
Energie
- E-peil: E0
- Beglazing: Onbekend
Op de kaart

Financieel
| Prijs | |
|---|---|
| Kadastraal inkomen (niet geïndexeerd) | € 0 |
| Kadastraal inkomen (geïndexeerd) | € 0 |
Berekening kosten
Je aankoopkosten? Die heb je snel berekend via de knop hieronder.
Bijkomende info
Gebouw
| Bouwcertificaat | Nee |
|---|
Perceel
| Overstromingsgevoelig | Geen |
|---|---|
| P-score | A |
| Voorkeurrecht | Nee |
| Totale oppervlakte (m²) | 160 |
Vergunning
| Vergunning | Vergunning beschikbaar |
|---|---|
| Verkavelingsvergunning | Geen beschikbaar |
Uitrusting
| Investeringspand | Nee |
|---|---|
| Rioolaansluiting | Nee |
| Gasaansluiting | Nee |
| Wateraansluiting | Nee |
| Elektriciteitsaansluiting | Nee |
| TV aansluiting | Nee |
| Internetaansluiting | Nee |
| Telefoonaansluiting | Nee |
Een pand van
Immo Zone
thuis in uw regio
Wenst u uw pand zonder zorgen en aan de voordeligste voorwaarden te verkopen ? Of wilt u een pand te huur aanbieden ?
Aantrekkelijke presentatie, online en offline campagnes, professioneel verloop van bezoeken. Immo Zone hecht belang aan een open en transparante communicatie.
Wij doen net dat tikkeltje extra om u zoveel mogelijk te ontzorgen.
Of bent u op zoek naar een Spaans vastgoed in zonzeker gebied? Ook daarvoor bent u aan het goede adres.
Elke dag opnieuw zetten wij ons beste beentje voor om uw nieuwe thuis te vinden, uw panden te verhuren of te verkopen. Vastgoed is onze passie en daar maakt u als klant deel van uit.
AALST NETTE COESSENSSTRAAT 1
Leer meer over vastgoed
23 March 2026
Op Spotto zoeken als een pro: 10 slimme tips
21 March 2026
Hoeveel kan ik lenen om een huis te kopen?
01 March 2026
Wanneer heb ik een bouwvergunning of omgevingsvergunning nodig?
17 February 2026