Totaalrenovatie op uitstekende ligging te Gijzegem
Overzicht
- 157.5 m² bewoonbaar
- 56 m² grond
- 4 Slaapkamer(s)
- 1 Badkamer(s)
- 2 Toilet(ten)
Beschrijving
Met veel trots stellen wij volgende totaalrenovatie aan jullie voor:
De EPC score die vermeld wordt in de advertentie zal worden omgebouwd naar een klasse B zodat u een energiezuinige woning zal hebben.
Het dak zal worden vernieuwd, er zal gebruik gemaakt worden van een plat dank met EPDM afwerking, alle ramen en deuren worden vervangen door PVC met een K-waarde van 1.0 W/m2 van het merk Deceuninck.
Er zal dus gerenoveerd worden met zorgvuldig gekozen materialen die ook voldoen aan de huidige isolatienormen.
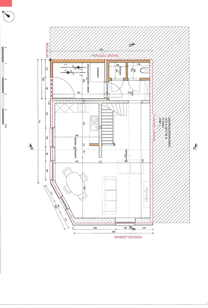
Er wordt op de eerste en tweede verdieping een terras aangelegd, en is er op het gelijkvloers een ruimte voorzien voor fietsenstalling.
De nieuwe keuken is van het merk NOLTE. Hierbij is de koper vrij van keuze tussen een werkblad in composiet of natuursteen alsook in de keuze van de toestellen.
De badkamer bevind zich op de tweede verdieping en bestaat uit dubbele wastafel, inloopdouche met rainshower, bad van 180*80 cm en er zal ook een sierradiator voorzien worden.
Alle nutsvoorzieningen worden vernieuwd en er is vloerverwarming op het gelijkvloers via een verwarmingsketel op gas of warmtepomp.
De bovenverdieping zal verwarmd worden aan de hand van het plaatsen van radiatoren.
De binnendeuren zijn in de massa gekleurd in het wit en hebben zwarte klinken.
Er kan gekozen worden voor een vloertegel van 60*60 of laminaat.
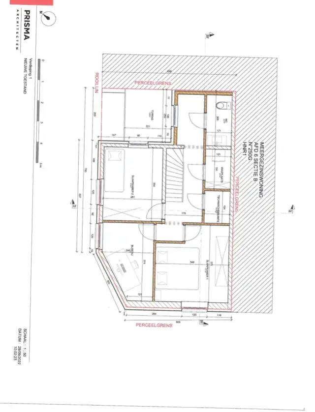
De woning is voorzien van 4 slaapkamers en 2 verdiepingen (met vaste trap en apart toilet).
De buitenzijde van de woning zal in crepi worden afgewerkt die voorzien is van een gebroken witte kleur (kleur naar keuze)
Bijkomende troef is de voldoende bergruimte en extra bureauruimte, daarnaast is er nog een dressing voorzien.
Kortom, deze totaalrenovatie zorgt ervoor dat u een huis kan aankopen zonder zorgen en de vrijheid in materiaalkeuze en kleuren!
Indien u graag nog extra informatie wil of een bezoek wil plannen bij ons op kantoor om alles te bespreken kan dit via volgend e-mailadres of nummer:
julie.de.corte@albert.immo of 0486/969663
De EPC score die vermeld wordt in de advertentie zal worden omgebouwd naar een klasse B zodat u een energiezuinige woning zal hebben.
Het dak zal worden vernieuwd, er zal gebruik gemaakt worden van een plat dank met EPDM afwerking, alle ramen en deuren worden vervangen door PVC met een K-waarde van 1.0 W/m2 van het merk Deceuninck.
Er zal dus gerenoveerd worden met zorgvuldig gekozen materialen die ook voldoen aan de huidige isolatienormen.
Er wordt op de eerste en tweede verdieping een terras aangelegd, en is er op het gelijkvloers een ruimte voorzien voor fietsenstalling.
De nieuwe keuken is van het merk NOLTE. Hierbij is de koper vrij van keuze tussen een werkblad in composiet of natuursteen alsook in de keuze van de toestellen.
De badkamer bevind zich op de tweede verdieping en bestaat uit dubbele wastafel, inloopdouche met rainshower, bad van 180*80 cm en er zal ook een sierradiator voorzien worden.
Alle nutsvoorzieningen worden vernieuwd en er is vloerverwarming op het gelijkvloers via een verwarmingsketel op gas of warmtepomp.
De bovenverdieping zal verwarmd worden aan de hand van het plaatsen van radiatoren.
De binnendeuren zijn in de massa gekleurd in het wit en hebben zwarte klinken.
Er kan gekozen worden voor een vloertegel van 60*60 of laminaat.
De woning is voorzien van 4 slaapkamers en 2 verdiepingen (met vaste trap en apart toilet).
De buitenzijde van de woning zal in crepi worden afgewerkt die voorzien is van een gebroken witte kleur (kleur naar keuze)
Bijkomende troef is de voldoende bergruimte en extra bureauruimte, daarnaast is er nog een dressing voorzien.
Kortom, deze totaalrenovatie zorgt ervoor dat u een huis kan aankopen zonder zorgen en de vrijheid in materiaalkeuze en kleuren!
Indien u graag nog extra informatie wil of een bezoek wil plannen bij ons op kantoor om alles te bespreken kan dit via volgend e-mailadres of nummer:
julie.de.corte@albert.immo of 0486/969663
Energie
![]() |
- EPC Certificaat: 20211203-0002503885-RES-1
- Energieverbruik: 729 kWh/m²/jaar
- Beglazing: Standaard dubbel
Let op, de renovatieverplichting in Vlaanderen verplicht de koper om deze woning na aankoop te renoveren tot een betere energieprestatie. Lees er alles over in dit artikel
Op de kaart

Financieel
| Prijs | |
|---|---|
| Kadastraal inkomen (niet geïndexeerd) | € 0 |
| Kadastraal inkomen (geïndexeerd) | € 0 |
Berekening kosten
Je aankoopkosten? Die heb je snel berekend via de knop hieronder.
Bijkomende info
Gebouw
| Renovatie jaar | 2023 |
|---|---|
| Staat | Goed onderhouden |
| Is beschermd | Nee |
| Bewoonbaar (m²) | 157.5 |
| Gevelbreedte | 11 |
| Badkamers | 1 |
| Slaapkamers | 4 |
| Toiletten | 2 |
Faciliteiten
| Keuken | Open keuken |
|---|---|
| Keuken uitrusting | Standaard |
| Materiaal ramenomlijstingen | PVC |
| Beglazing | Standaard dubbel |
| Luiken | Nee |
| Warm water type | Geen verwarming |
Perceel
| Overstromingsgevoelig | Geen |
|---|---|
| P-score | A |
| G-score | A |
| Voorkeurrecht | Nee |
| Totale oppervlakte (m²) | 56 |
| Bebouwde oppervlakte (m²) | 56 |
Vergunning
| Vergunning | Vergunning beschikbaar |
|---|---|
| Verkavelingsvergunning | Geen beschikbaar |
| Bouwovertreding dagvaardiging | Geen |
| Type gebied | Stedelijk |
Uitrusting
| Meerdere eigenaars | Nee |
|---|---|
| Geschikt als kangoeroewoning | Nee |
| Geschikt voor rolstoelgebruikers | Nee |
| Geschikt voor praktijk | Ja |
| Volledig onderkelderd | Nee |
| Parking | Nee |
| Garage | Nee |
| Thuiskantoor | Ja |
| Kelder | Nee |
| Zolder | Ja |
| Opslagruimte | Ja |
| Tuin | Nee |
| Terras | Ja |
| Lift | Nee |
| Rioolaansluiting | Ja |
| Gasaansluiting | Ja |
| Wateraansluiting | Ja |
| Elektriciteitsaansluiting | Ja |
| TV aansluiting | Nee |
| Internetaansluiting | Nee |
| Zonnepanelen | Nee |
| Zonneboiler | Nee |
| Alarm | Nee |
| Zwembad | Nee |
| Jacuzzi | Nee |
| Toonzaal | Nee |
| Ventilatie | Nee |
Leer meer over vastgoed
01 March 2026
Wanneer heb ik een bouwvergunning of omgevingsvergunning nodig?
17 February 2026
Hoe breng ik een bod uit op een woning?
24 November 2025
Uitgezocht voor jouw gemeente: Hoeveel stijgt de waarde van je woning door een renovatie?
22 October 2025
