Nieuw
Nieuwbouw appartement
€ 355.000
Een pand van Immo Optima
Overzicht
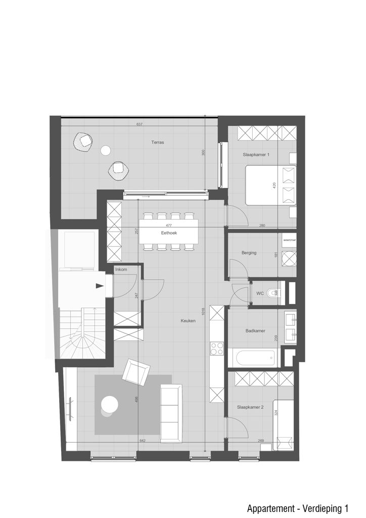
- 108.4 m² bewoonbaar
- 2 Slaapkamer(s)
- 1 Badkamer(s)
- 1 Toilet(ten)
Beschrijving
Nieuwbouw appartement op de eerste verdieping in Erembodegem, met ruime leefruimte en grote raampartijen die zorgen voor een aangename lichtinval. De open en moderne keuken sluit naadloos aan op het gezellige woongedeelte. Het appartement beschikt over twee volwaardige slaapkamers, een kwalitatief afgewerkte badkamer met ligbad en een apart toilet. Een groot pluspunt is het zonnige terras van maar liefst 21 m², perfect om te genieten van rust en privacy. Dankzij de centrale ligging bevinden winkels, openbaar vervoer en belangrijke invalswegen zich in de onmiddellijke omgeving, wat dit appartement ideaal maakt voor wie comfortabel en praktisch wil wonen. Mogelijkheid tot aankoop autostaanplaats. Prijzen exclusief BTW en kosten.
Wenst u een bezoek of wenst u meer informatie? Neem contact op met Hannes op 0476/67.79.87 of hannes@immo-optima.be.
EPB in opmaak
SI in aanvraag
Niet gelegen in een risicozone voor overstromingen P-score: A en G-score: A
Wenst u een bezoek of wenst u meer informatie? Neem contact op met Hannes op 0476/67.79.87 of hannes@immo-optima.be.
EPB in opmaak
SI in aanvraag
Niet gelegen in een risicozone voor overstromingen P-score: A en G-score: A
Energie
Op de kaart

Financieel
| Prijs |
|---|
Berekening kosten
Je aankoopkosten? Die heb je snel berekent via de knop hieronder.
Bijkomende info
Gebouw
| Bouwjaar | 2026 |
|---|---|
| Staat | Nieuw |
| Bewoonbaar (m²) | 108.4 |
| Verdieping | 1 |
| Gevels | 2 |
| Badkamers | 1 |
| Slaapkamers | 2 |
| Verdiepingen | 1 |
| Parkeerplaatsen | 0 |
| Toiletten | 1 |
Faciliteiten
| Type vloer | |
|---|---|
| Keuken uitrusting | Luxueus uitgerust |
Perceel
| P-score | A |
|---|---|
| G-score | A |
| Tuin oppervlakte (m²) | 0 |
| Oriëntatie terras | ZuidOost |
Vergunning
| Vergunning | Geen beschikbaar |
|---|---|
| Verkavelingsvergunning | Geen beschikbaar |
Uitrusting
| Parking | Nee |
|---|---|
| Garage | Nee |
| Tuin | Nee |
| Terras | Ja |
| Lift | Ja |
| Wateraansluiting | Ja |
| Elektriciteitsaansluiting | Ja |
| Videofoon | Ja |
Een pand van
Immo Optima
De makelaar die zegt wat hij doet en doet wat hij zegt.
Ons ambitieus team beschikt over een uitstekende marktkennis en streeft naar een perfecte service. Onze mensen geven dagelijks het uiterste van zichzelf voor Uw vastgoedtransactie door middel van een klantgerichte aanpak waarbij we flexibiliteit en correctheid van informatie centraal stellen.
We streven naar een 100% slagingspercentage van alle bemiddelingsopdrachten. We starten met een gratis waardebepaling van Uw woning op basis van een gefundeerde analyse. Vervolgens ontwikkelen we voor Uw woning een uniek verkoop- en marketingplan en combineren dit met een regelmatige tussentijdse evaluatie. Hiermee vergroten we het verkooppotentieel voor Uw woning wat Optima de meest aangewezen partner maakt voor een succesvolle verkoop van Uw woning.
Neem gerust contact op voor een gratis waardebepaling of meer informatie over onze unieke aanpak voor de verkoop van Uw woning.
7230660
Leer meer over vastgoed
24 November 2025
Uitgezocht voor jouw gemeente: Hoeveel stijgt de waarde van je woning door een renovatie?
22 October 2025
Hoeveel kan ik lenen om een huis te kopen?
11 June 2025
Huis kopen met bouwovertreding? Dit moet je weten
11 May 2025