Nieuw
Energiezuinige woning te koop met personalisatie in de afwerking
€ 428.696
Een pand van Huysman Bouw
Overzicht
- 961 m² grond
- 3 Slaapkamer(s)
- 1 Badkamer(s)
- 2 Toilet(ten)
- 1 Tuin
- 1 Garage(s)
Beschrijving
Wind- en waterdicht gebouwde woning
In opdracht van GhimmoHuysman bouwt Huysman Bouw deze luxueuze villa op een zuidoost georiënteerd perceel van 961m2. De woning is gelegen in St-Goriks met zicht op de Zwalmvallei.
De villa wordt gekenmerkt door een strak moderne en minimalistische architectuur. De uitgekiende materialen zorgen voor een luxueuze én tijdloze uitstraling. Dankzij een slimme indeling geniet je maximaal van alle ruimtes. De grote glaspartijen bieden een perfecte connectie met de zuidoost georiënteerde tuin.
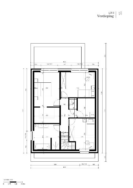
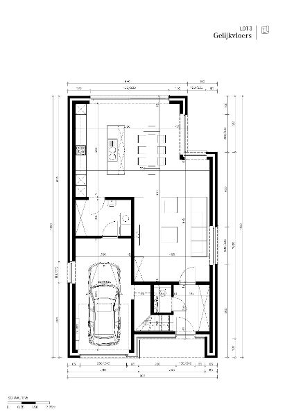
Op het gelijkvloers is er een inkomhal met gastentoilet, een lichtrijke leefruimte met open keuken, een praktische wasplaats/bijkeuken en een garage. Op de eerste verdieping bevinden zich 3 slaapkamers waarvan 1 master bedroom met dressing, een grote badkamer met bad en douche en een berging.
De woning staat reeds wind-en waterdicht gebouwd en wordt afgewerkt binnen de 8 maand na het maken van alle afwerkingskeuzes.
Meer info? Contacteer onze bouwadviseur Ewout op 0497 588 888 of mail naar ewout@huysmanbouw.be
De villa wordt gekenmerkt door een strak moderne en minimalistische architectuur. De uitgekiende materialen zorgen voor een luxueuze én tijdloze uitstraling. Dankzij een slimme indeling geniet je maximaal van alle ruimtes. De grote glaspartijen bieden een perfecte connectie met de zuidoost georiënteerde tuin.
Op het gelijkvloers is er een inkomhal met gastentoilet, een lichtrijke leefruimte met open keuken, een praktische wasplaats/bijkeuken en een garage. Op de eerste verdieping bevinden zich 3 slaapkamers waarvan 1 master bedroom met dressing, een grote badkamer met bad en douche en een berging.
De woning staat reeds wind-en waterdicht gebouwd en wordt afgewerkt binnen de 8 maand na het maken van alle afwerkingskeuzes.
Meer info? Contacteer onze bouwadviseur Ewout op 0497 588 888 of mail naar ewout@huysmanbouw.be
Energie
- E-peil: E0
- Beglazing: Onbekend
Op de kaart

Financieel
| Prijs |
|---|
Bijkomende info
Gebouw
| Staat | Zo goed als nieuw |
|---|---|
| Bouwcertificaat | Ja |
| Verdieping | 0 |
| Badkamers | 1 |
| Slaapkamers | 3 |
| Verdiepingen | 0 |
| Garages | 1 |
| Parkeerplaatsen | 1 |
| Toiletten | 2 |
Faciliteiten
| Septische tank | Nee |
|---|
Perceel
| Overstromingsgevoelig | Geen |
|---|---|
| Totale oppervlakte (m²) | 961 |
| Bebouwde oppervlakte (m²) | 0 |
| Tuin oppervlakte (m²) | 0 |
| Oppervlakte terras (m²) | 0 |
| Oriëntatie tuin | ZuidOost |
Vergunning
| Verkavelingsvergunning | Geen beschikbaar |
|---|
Uitrusting
| Investeringspand | Nee |
|---|---|
| Parking | Ja |
| Garage | Ja |
| Opslagruimte | Ja |
| Tuin | Ja |
| Terras | Ja |
| Lift | Nee |
| Rioolaansluiting | Nee |
| Gasaansluiting | Nee |
| Wateraansluiting | Nee |
| Elektriciteitsaansluiting | Nee |
| Internetaansluiting | Nee |
| Telefoonaansluiting | Nee |
| Zonnepanelen | Nee |
| Zonneboiler | Nee |
| Alarm | Nee |
| Videofoon | Nee |
| Grondwaterput | Nee |
Een pand van
Huysman Bouw
Bouwen mét vertrouwen
Huysman Bouw staat voor meer dan 50 jaar ervaring in bouwen van nieuwbouwwoningen en appartementen in Oost- en West-Vlaanderen. Wij dragen kwaliteit, flexibiliteit en klantvriendelijkheid hoog in het vaandel. Een combinatie van toplocaties, doordachte en gevarieerde architectuur en een interieur afwerking op maat maken van iedere woning een echte thuis. Jong, single, gezin of senior? Wij creëren een sleutel-op-de-deur-woning, afgewerkt appartement of bouwproject op jouw maat.
Zottegem, Traveins - Fase 1: Lot 03 NOV25
Leer meer over vastgoed
22 October 2025
Hoeveel kan ik lenen om een huis te kopen?
11 June 2025
Huis kopen met bouwovertreding? Dit moet je weten
11 May 2025
Renoveren? Vraag je Mijn VerbouwPremie aan
22 April 2025