Beschikbaar vanaf 19 jan. 2026
Bedrijfsvastgoed te koop
€ 149,26
Een pand van SOLVA
Favoriet
Jouw zoektocht
Jouw scoretabel voor dit pand
Aan het laden...
Jouw geplande bezichtigingen
Aan het laden...
Overzicht
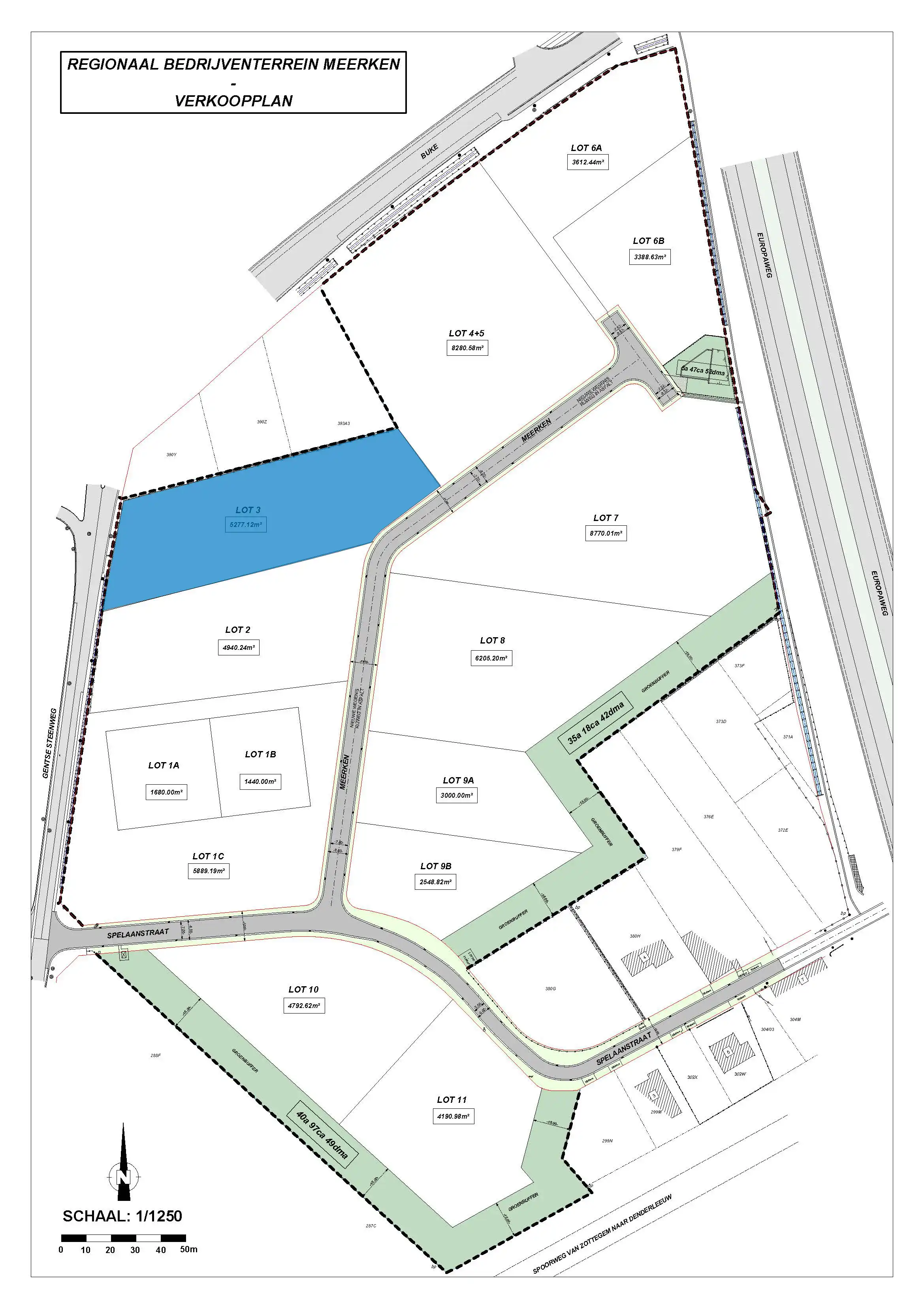
- 5277 m² grond
Beschrijving
Op het bedrijventerrein Meerken (Zottegem) is lot 3 nog beschikbaar. Dit gaat over 5277,12 m². Prijs: 149,26 per vierkante meter. Ontdek de mogelijkheden van dit bedrijventerrein en neem vandaag nog contact op met SOLVA via ondernemen@so-lva.be.
Energie
Op de kaart

Financieel
| Prijs |
|---|
Berekening kosten
Je aankoopkosten? Die heb je snel berekend via de knop hieronder.
Bijkomende info
Perceel
| Totale oppervlakte (m²) | 5277 |
|---|
Een pand van
SOLVA
Intercommunale voor socio-economische expansie
SOLVA werpt zich hierbij graag op als ontwikkelaar die de juiste kennis en expertise aan de dag kan leggen om dergelijke grootse projecten op een doordachte manier te realiseren en te beheren. Op die manier heeft SOLVA doorheen de jaren 432 ha aan bedrijventerreinen in de regio ontwikkeld of op de planning staan.
Leer meer over vastgoed
23 March 2026
Op Spotto zoeken als een pro: 10 slimme tips
21 March 2026
Hoeveel kan ik lenen om een huis te kopen?
01 March 2026
Wanneer heb ik een bouwvergunning of omgevingsvergunning nodig?
17 February 2026