3 nieuwbouwwoningen te Eine
€ 387.000
Een pand van VDS Vastgoed
Beschrijving
Ontdek dit kleinschalige nieuwbouwproject in Eine, bestaande uit drie moderne woningen. Gelegen op een rustige, doch centrale locatie, nabij allerhande voorzieningen, openbaar vervoer en de N60, combineert dit project comfortabel wonen met vlotte bereikbaarheid.
De woningen worden gerealiseerd door ruwbouwaannemer Chris Teirlinck en onderscheiden zich door hun kwaliteitsvolle uitvoering en praktische indeling.
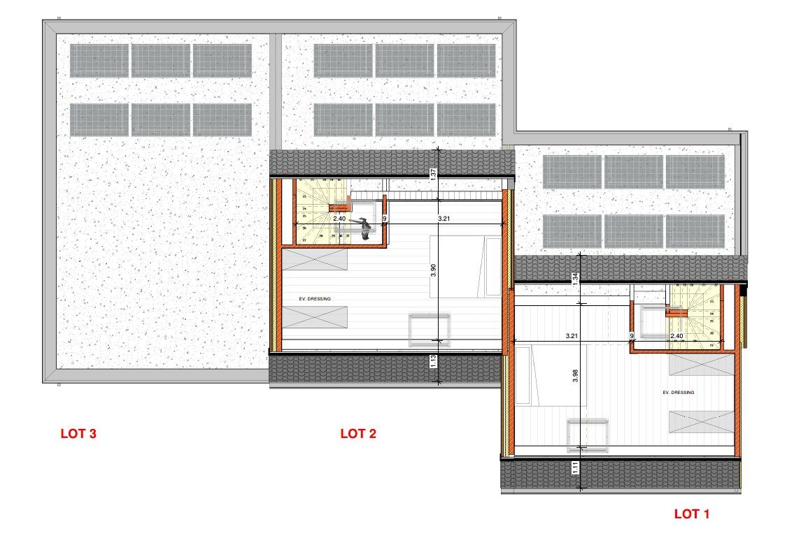
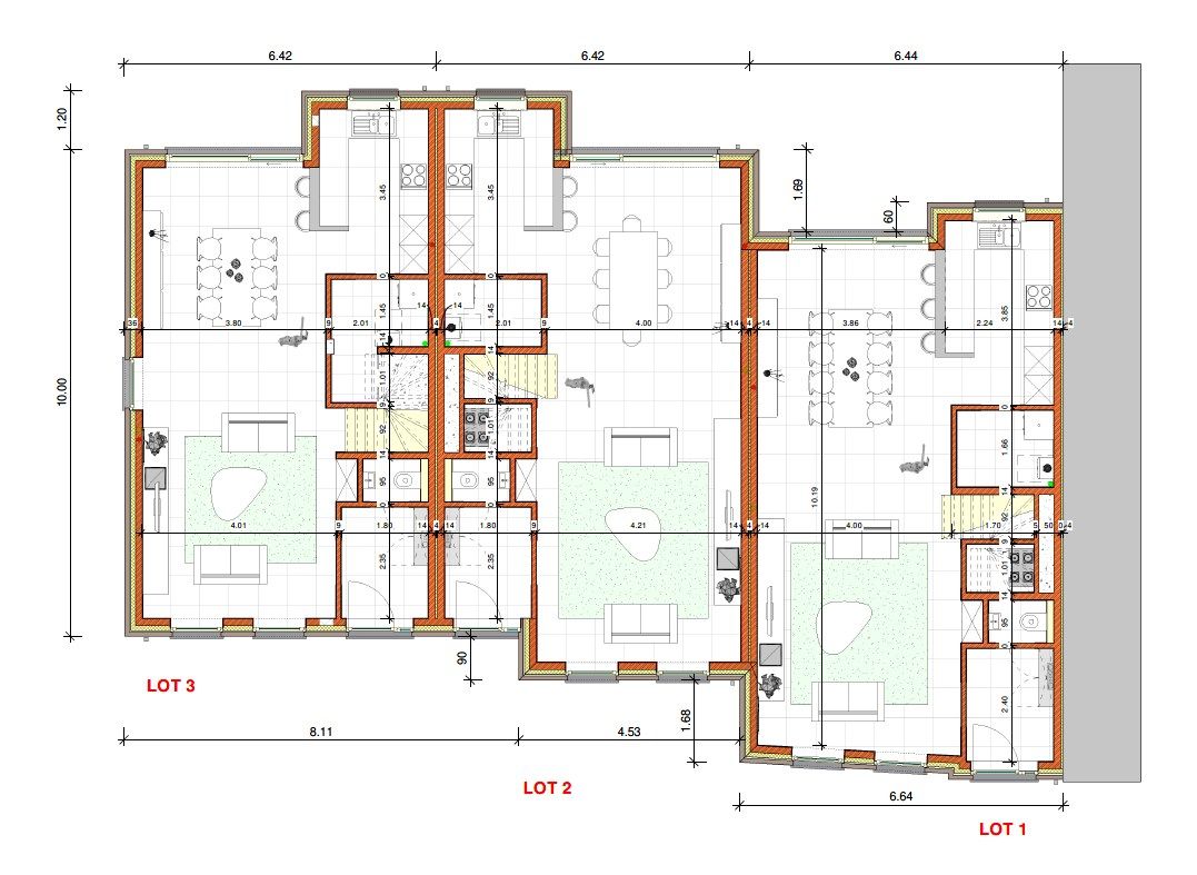
Lot 1 & 2 (gesloten bebouwing) met grondoppervlakte 347 m² & 336 m² - vanaf € 335.000 excl. kosten*.
Lot 3 (halfopen bebouwing) met grondoppervlakte 466 m² - vanaf € 355.000 excl. kosten*.
Elke woning biedt een ruime leefruimte, lichtrijke half-open keuken met zicht op de tuin en een doordacht slaapgedeelte met drie slaapkamers. Bij lot 1 & 2 is eveneens een afgewerkte zolderruimte voorzien (pleisterwerk & chape).
U bepaalt zelf of u de woning volledig laat afwerken door de aannemer, of liever zelf de laatste hand aan de afwerking legt.
Een ideale kans voor wie op zoek is naar een energiezuinige, hedendaagse woning in een aangename woonomgeving met alle comfort binnen handbereik.
* Kosten voor nutsaansluitingen (€ 3744,47 excl. btw), aandeel verkavelingsakte (€ 800,00 excl. btw), prekadastratie (€ 250,00 excl. btw) en notaris te dragen door de koper.
De woningen worden gerealiseerd door ruwbouwaannemer Chris Teirlinck en onderscheiden zich door hun kwaliteitsvolle uitvoering en praktische indeling.
Lot 1 & 2 (gesloten bebouwing) met grondoppervlakte 347 m² & 336 m² - vanaf € 335.000 excl. kosten*.
Lot 3 (halfopen bebouwing) met grondoppervlakte 466 m² - vanaf € 355.000 excl. kosten*.
Elke woning biedt een ruime leefruimte, lichtrijke half-open keuken met zicht op de tuin en een doordacht slaapgedeelte met drie slaapkamers. Bij lot 1 & 2 is eveneens een afgewerkte zolderruimte voorzien (pleisterwerk & chape).
U bepaalt zelf of u de woning volledig laat afwerken door de aannemer, of liever zelf de laatste hand aan de afwerking legt.
Een ideale kans voor wie op zoek is naar een energiezuinige, hedendaagse woning in een aangename woonomgeving met alle comfort binnen handbereik.
* Kosten voor nutsaansluitingen (€ 3744,47 excl. btw), aandeel verkavelingsakte (€ 800,00 excl. btw), prekadastratie (€ 250,00 excl. btw) en notaris te dragen door de koper.
Panden
| Huis | Gelijkvloers | 3 slaapkamer(s) | 131.73 m² | € 387.000 | |
| Huis | Gelijkvloers | 3 slaapkamer(s) | 131.73 m² | € 355.000 | |
| Huis | Gelijkvloers | 3 slaapkamer(s) | 163.03 m² | € 335.000 | |
| Huis | Gelijkvloers | 3 slaapkamer(s) | 163.03 m² | € 367.500 | |
| Huis | Gelijkvloers | 3 slaapkamer(s) | 170.69 m² | € 335.000 | |
| Huis | Gelijkvloers | 3 slaapkamer(s) | 170.69 m² | € 368.000 |
Energie
- Verwarming: Geen
- Beglazing: Onbekend
Op de kaart

Financieel
| Prijs | |
|---|---|
| Kadastraal inkomen (niet geïndexeerd) | € 0 |
| Kadastraal inkomen (geïndexeerd) | € 0 |
Bijkomende info
Gebouw
| Is beschermd | Nee |
|---|---|
| Bewoonbaar (m²) | 170.69 |
Faciliteiten
| Luiken | Nee |
|---|---|
| Primair verwarmingstype | Geen verwarming |
| Brandstof primaire verwarming | Geen |
| Warm water type | Geen verwarming |
Perceel
| Overstromingsgevoelig | Geen |
|---|---|
| Voorkeurrecht | Nee |
Vergunning
| Vergunning | Vergunning beschikbaar |
|---|---|
| Verkavelingsvergunning | Vergunning beschikbaar |
| Bouwovertreding dagvaardiging | Geen |
| Type gebied | Stedelijk |
Uitrusting
| Meerdere eigenaars | Nee |
|---|---|
| Geschikt voor rolstoelgebruikers | Nee |
| Geschikt voor praktijk | Nee |
| Volledig onderkelderd | Nee |
| Parking | Nee |
| Garage | Nee |
| Thuiskantoor | Nee |
| Kelder | Nee |
| Zolder | Nee |
| Opslagruimte | Nee |
| Tuin | Nee |
| Terras | Nee |
| Lift | Nee |
| Rioolaansluiting | Nee |
| Gasaansluiting | Nee |
| Wateraansluiting | Nee |
| Elektriciteitsaansluiting | Nee |
| TV aansluiting | Nee |
| Internetaansluiting | Nee |
| Zonnepanelen | Nee |
| Zonneboiler | Nee |
| Alarm | Nee |
| Zwembad | Nee |
| Jacuzzi | Nee |
| Toonzaal | Nee |
| Ventilatie | Nee |
Appartementsblok
| Aantal wooneenheden | 6 |
|---|---|
| Lift | Nee |
| Intercom | Nee |
Een pand van
VDS Vastgoed
STERK IN VASTGOED
#WeStekenErBovenuit
Leer meer over vastgoed
Nieuw
24 November 2025
Uitgezocht voor jouw gemeente: Hoeveel stijgt de waarde van je woning door een renovatie?
22 October 2025
Hoeveel kan ik lenen om een huis te kopen?
11 June 2025
Huis kopen met bouwovertreding? Dit moet je weten
11 May 2025