Nieuw
Te renoveren woning op perceel van 5.643m² in Kruisem te koop
€ 495.000
Een pand van Casteels vastgoed
Overzicht
- 225 m² bewoonbaar
- 5643 m² grond
Overstromingsgevaar perceel
Beschrijving
Contacteer Camille op 09 396 10 20 of via camille@casteelsvastgoed.be
Dossierstukken en plannen steeds beschikbaar op onze website
__
Op een perceel van 5.643 m² bevindt zich deze vrijstaande te renoveren woning in Kruisem, deelgemeente van Gavere. Dankzij de zuidgerichte tuin, de ruime oppervlakte en de vlotte bereikbaarheid richting N60, Gent en Oudenaarde is dit een unieke kans voor wie houdt van ruimte, rust en een centrale ligging.
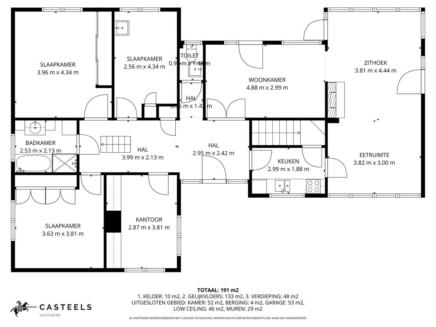
De woning heeft een bewoonbare oppervlakte van ca. 225 m² en een klassieke indeling: inkomhal, lichtrijke leefruimte, keuken, drie slaapkamers, badkamer, bureau en logeerkamer. Op de verdieping bevinden zich drie extra kamers en een ruime zolder met potentieel. Verder is er een inpandige garage met kruipkelder en een zuidgerichte tuin met vrij uitzicht en privacy. Op het perceel bevindt zich ook een ruime, aparte werkplaats of opslagruimte, ideaal voor zelfstandigen, hobbyisten of als extra berging
Gelegen in agrarisch gebied, zonder verkavelingsvoorschriften of RUP/BPA. De basisrechten voor zonevreemde woningen (art. 4.4.10-4.4.19 VCRO) zijn van toepassing: verbouwen, herbouwen of uitbreiden kan tot max. 1.000 m³. Bij herbouw geldt 75% overlap met de bestaande inplanting; bij verplaatsing op het perceel gelden extra voorwaarden. Geen meergezinswoningen of tweede bouwlijn toegestaan.
Veel mogelijkheden voor renovatie of heropbouw binnen het toegestane volume. De combinatie van ligging, bereikbaarheid, perceeloppervlakte en oriëntatie maakt dit een zeldzame opportuniteit. Contacteer ons voor meer info, documenten of een bezoek.
Dossierstukken en plannen steeds beschikbaar op onze website
__
Op een perceel van 5.643 m² bevindt zich deze vrijstaande te renoveren woning in Kruisem, deelgemeente van Gavere. Dankzij de zuidgerichte tuin, de ruime oppervlakte en de vlotte bereikbaarheid richting N60, Gent en Oudenaarde is dit een unieke kans voor wie houdt van ruimte, rust en een centrale ligging.
De woning heeft een bewoonbare oppervlakte van ca. 225 m² en een klassieke indeling: inkomhal, lichtrijke leefruimte, keuken, drie slaapkamers, badkamer, bureau en logeerkamer. Op de verdieping bevinden zich drie extra kamers en een ruime zolder met potentieel. Verder is er een inpandige garage met kruipkelder en een zuidgerichte tuin met vrij uitzicht en privacy. Op het perceel bevindt zich ook een ruime, aparte werkplaats of opslagruimte, ideaal voor zelfstandigen, hobbyisten of als extra berging
Gelegen in agrarisch gebied, zonder verkavelingsvoorschriften of RUP/BPA. De basisrechten voor zonevreemde woningen (art. 4.4.10-4.4.19 VCRO) zijn van toepassing: verbouwen, herbouwen of uitbreiden kan tot max. 1.000 m³. Bij herbouw geldt 75% overlap met de bestaande inplanting; bij verplaatsing op het perceel gelden extra voorwaarden. Geen meergezinswoningen of tweede bouwlijn toegestaan.
Veel mogelijkheden voor renovatie of heropbouw binnen het toegestane volume. De combinatie van ligging, bereikbaarheid, perceeloppervlakte en oriëntatie maakt dit een zeldzame opportuniteit. Contacteer ons voor meer info, documenten of een bezoek.
Op een perceel van maar liefst 5.643 m² bevindt zich deze vrijstaande te renoveren woning in Kruisem, deelgemeente van Gavere. Dankzij de zuidgerichte tuin, de grote oppervlakte én de vlotte bereikbaarheid richting N60, Gent en Oudenaarde, is dit een opportuniteit voor wie op zoek is naar ruimte en vrijheid met een centrale ligging.
Indeling van de woning
De bestaande woning heeft een bewoonbare oppervlakte van ca. 225 m² en biedt een klassieke, ruime indeling:
Stedenbouwkundige informatie – Zonevreemde woning
Deze eigendom is gelegen in agrarisch gebied en wordt juridisch beschouwd als een zonevreemde woning. Er zijn geen verkavelingsvoorschriften, RUP of BPA van toepassing. Hierdoor gelden de basisrechten voor zonevreemde woningen zoals bepaald in art. 4.4.10 t.e.m. 4.4.19 van de VCRO:
Unieke kans voor renovatie of heropbouw
Deze eigendom biedt veel mogelijkheden voor wie op zoek is naar een woning met karakter, ruimte en herontwikkelingspotentieel. Of u nu kiest voor een volledige renovatie of een nieuwbouwproject binnen het toegestane volume: de combinatie van ligging, bereikbaarheid, perceeloppervlakte en oriëntatie is zeldzaam.
Mis deze kans niet en contacteer ons voor meer informatie, documenten, plannen of om een bezoek in te plannen.
Indeling van de woning
De bestaande woning heeft een bewoonbare oppervlakte van ca. 225 m² en biedt een klassieke, ruime indeling:
- Gelijkvloers: inkomhal, lichtrijke leefruimte, keuken, drie slaapkamers, een badkamer, bureauruimte en logeerkamer
- Verdieping: drie bijkomende kamers + grote zolderruimte met potentieel voor extra afwerking of berging
- Kelder & Garage: inpandige garage met onderliggende kruipkelder
- Tuin: volledig zuidgericht, met mooi uitzicht op het achterliggende groen en volledige privacy
- Extra: op het perceel bevindt zich ook een ruime, aparte werkplaats of opslagruimte, ideaal voor zelfstandigen, hobbyisten of als bijkomende bergruimte.
Stedenbouwkundige informatie – Zonevreemde woning
Deze eigendom is gelegen in agrarisch gebied en wordt juridisch beschouwd als een zonevreemde woning. Er zijn geen verkavelingsvoorschriften, RUP of BPA van toepassing. Hierdoor gelden de basisrechten voor zonevreemde woningen zoals bepaald in art. 4.4.10 t.e.m. 4.4.19 van de VCRO:
- Verbouwen, herbouwen of uitbreiden is mogelijk met een maximum brutovolume van 1.000 m³
- Bij herbouw op dezelfde plaats is minstens 75% overlap vereist met de bestaande inplanting
- Bij herbouw op een andere plaats op het perceel gelden extra voorwaarden:
- De aanvraag moet goed gemotiveerd zijn (betere integratie in de omgeving, efficiëntere terreinbezetting…)
- De nieuwe voorbouwlijn moet aansluiten bij deze van de naburige bebouwing of overeenstemmen met de courante inplantingswijze
- Het aantal woonentiteiten mag niet vermeerderd worden
- Meergezinswoningen of tweede bouwlijn zijn niet toegestaan
Unieke kans voor renovatie of heropbouw
Deze eigendom biedt veel mogelijkheden voor wie op zoek is naar een woning met karakter, ruimte en herontwikkelingspotentieel. Of u nu kiest voor een volledige renovatie of een nieuwbouwproject binnen het toegestane volume: de combinatie van ligging, bereikbaarheid, perceeloppervlakte en oriëntatie is zeldzaam.
Mis deze kans niet en contacteer ons voor meer informatie, documenten, plannen of om een bezoek in te plannen.
Energie
![]() |
- EPC Certificaat: 20250908-0003681413-RES-1
- Energieverbruik: 744 kWh/m²/jaar
- E-peil: E0
- Beglazing: Standaard dubbel
Let op, de renovatieverplichting in Vlaanderen verplicht de koper om deze woning na aankoop te renoveren tot een betere energieprestatie. Lees er alles over in dit artikel
Extra budget nodig voor je renovatie?
De overheid helpt je dit pand energetisch te renoveren! Hieronder zie je het premiebedrag dat je mogelijks van de overheid krijgt.
Het huidige EPC-label is:

Op de kaart

Financieel
| Prijs | |
|---|---|
| Kadastraal inkomen (niet geïndexeerd) | € 1.286 |
Berekening kosten
Je aankoopkosten? Die heb je snel berekent via de knop hieronder.
Bijkomende info
Gebouw
| Bouwjaar | 1959 |
|---|---|
| Bewoonbaar (m²) | 225 |
| Badkamers | 0 |
| Slaapkamers | 0 |
| Verdiepingen | 0 |
| Garages | 0 |
| Parkeerplaatsen | 0 |
| Toiletten | 0 |
Faciliteiten
| Beglazing | Standaard dubbel |
|---|---|
| Septische tank | Nee |
Perceel
| Overstromingsgevoelig | Geen |
|---|---|
| P-score | D |
| G-score | B |
| Totale oppervlakte (m²) | 5643 |
| Bebouwde oppervlakte (m²) | 0 |
| Oriëntatie tuin | Zuid |
Vergunning
| Verkavelingsvergunning | Geen beschikbaar |
|---|
Uitrusting
| Investeringspand | Nee |
|---|---|
| Parking | Nee |
| Garage | Nee |
| Lift | Nee |
| Rioolaansluiting | Nee |
| Gasaansluiting | Nee |
| Wateraansluiting | Ja |
| Elektriciteitsaansluiting | Ja |
| Internetaansluiting | Nee |
| Telefoonaansluiting | Nee |
| Zonnepanelen | Nee |
| Zonneboiler | Nee |
| Alarm | Nee |
| Videofoon | Nee |
| Grondwaterput | Nee |
Een pand van
Casteels vastgoed
Vastgoedmakelaardij met een verfrissende aanpak.
Authentiek, ongedwongen en met een communicatie van mens tot mens. Als moderne vastgoedmakelaar begeleiden we jou zo naar een vlotte aankoop of verkoop van je woning. Door het verkoopproces zoveel mogelijk te optimaliseren, profiteer jij als koper of verkoper van een uitstekende dienstverlening aan een scherpe prijs. Casteels vastgoed, vastgoed dat raakt.
CK25_005_Galgestraat4_9750
Leer meer over vastgoed
Nieuw
22 October 2025
Hoeveel kan ik lenen om een huis te kopen?
11 June 2025
Huis kopen met bouwovertreding? Dit moet je weten
11 May 2025
Renoveren? Vraag je Mijn VerbouwPremie aan
22 April 2025



