Charmante op te frissen woning met drie kamers en zonnige tuin
Een pand van Bordes Merelbeke
Overzicht
- 146 m² bewoonbaar
- 210 m² grond
- 3 Slaapkamer(s)
- 1 Badkamer(s)
- 1 Tuin
Beschrijving
Deze charmante woning met drie slaapkamers beschikt over een bewoonbare oppervlakte van ca. 145 m² en ligt op een perceel van 210 m². De woning is gunstig gelegen ten opzichte van openbaar vervoer, winkels en scholen en vlakbij de Merelbeekse scheldemeersen.
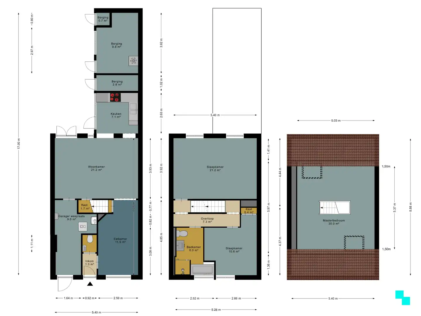
Indeling
Gelijkvloers
Inkomhal, gastentoilet, eetkamer, woonkamer, berging onder de trap, keuken en inpandige garage.
Eerste verdieping
Op de eerste verdieping bevindt zich de nachthal met twee slaapkamers en de badkamer met ligbad en douche.
Zolderverdieping
De zolder werd omgevormd tot masterbedroom.
Exterieur
Zonnige tuin met tuinbergingen aanwezig.
Praktisch
- Vloerverwarming
- Warmtepomp
- Hoogrendementsbeglazing
- Voldoende opbergruimte
- Stedenbouwkundige inlichtingen in aanvraag
- Plattegrond hieronder te downloaden
Troeven
- Aangename buurt
- Praktische indeling
- Zonnige buitenruimte
Benieuwd?
Kyara (BIV 514 129) organiseert voor deze woning een Bordes-bezoekdag op zaterdag 31 januari 2026, mits het maken van een afspraak.
Verkoop via Bordes, met Kyara, al jaren marktleider in vastgoed in Merelbeke en de omliggende gemeenten. Met de glimlach, met de sleutel en met veel goesting.
Energie
![]() |
- Energieverbruik: 271 kWh/m²/jaar
- E-peil: E0
- Beglazing: Standaard dubbel
Op de kaart

Financieel
| Prijs | |
|---|---|
| Kadastraal inkomen (niet geïndexeerd) | € 451 |
Berekening kosten
Je aankoopkosten? Die heb je snel berekent via de knop hieronder.
Bijkomende info
Gebouw
| Staat | Op te frissen |
|---|---|
| Bewoonbaar (m²) | 146 |
| Badkamers | 1 |
| Slaapkamers | 3 |
| Verdiepingen | 0 |
| Garages | 0 |
| Parkeerplaatsen | 0 |
| Toiletten | 0 |
Faciliteiten
| Keuken uitrusting | Goed uitgerust |
|---|---|
| Beglazing | Standaard dubbel |
| Septische tank | Ja |
Perceel
| Overstromingsgevoelig | Geen |
|---|---|
| Totale oppervlakte (m²) | 210 |
| Bebouwde oppervlakte (m²) | 0 |
| Tuin oppervlakte (m²) | 0 |
| Oppervlakte terras (m²) | 0 |
| Oriëntatie tuin | Oost |
Vergunning
| Verkavelingsvergunning | Geen beschikbaar |
|---|
Uitrusting
| Investeringspand | Nee |
|---|---|
| Parking | Nee |
| Garage | Nee |
| Kelder | Ja |
| Opslagruimte | Ja |
| Tuin | Ja |
| Terras | Ja |
| Lift | Nee |
| Rioolaansluiting | Ja |
| Gasaansluiting | Nee |
| Wateraansluiting | Ja |
| Elektriciteitsaansluiting | Ja |
| Internetaansluiting | Ja |
| Telefoonaansluiting | Ja |
| Zonnepanelen | Ja |
| Zonneboiler | Nee |
| Alarm | Nee |
| Videofoon | Nee |
| Grondwaterput | Nee |
