Nieuw
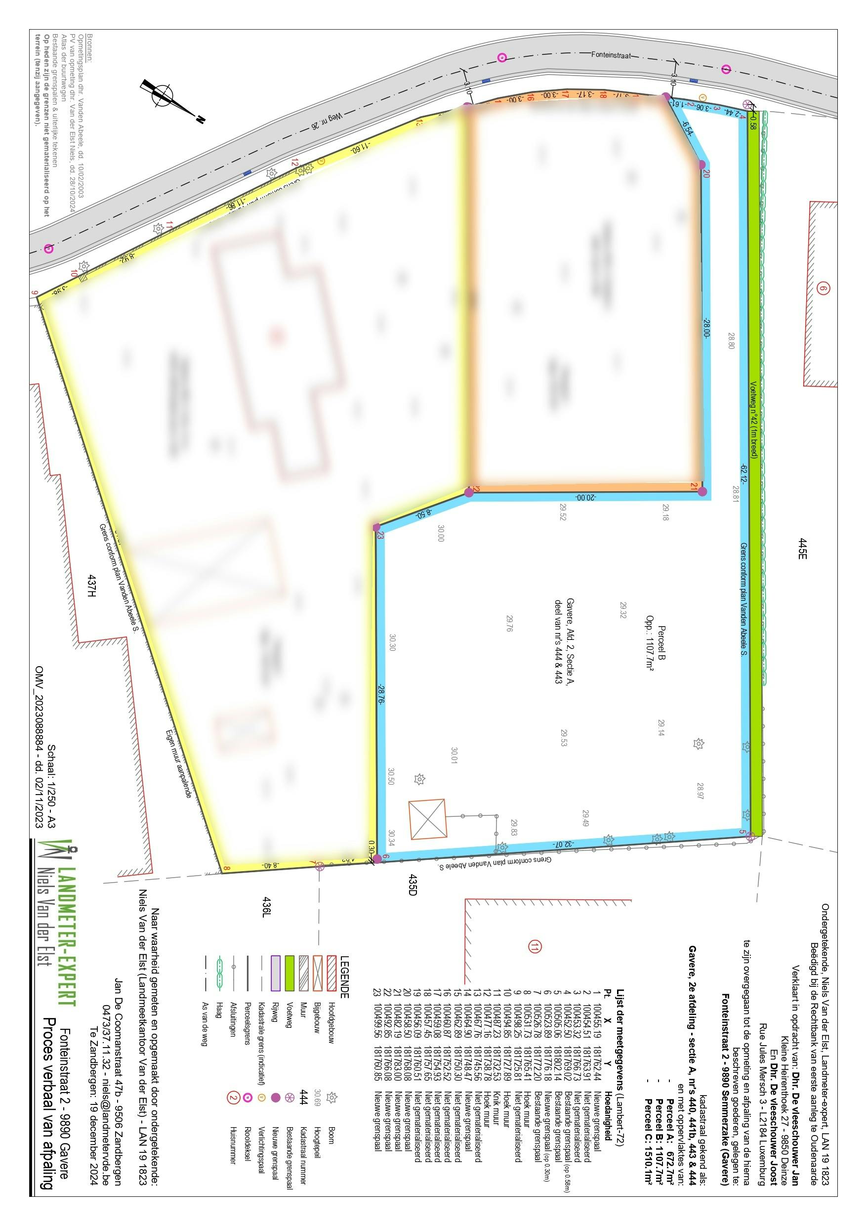
Perceel bouwgrond van 1108 m² te koop in Semmerzake
€ 220.000
Een pand van Dewaele Vastgoed
Overzicht
- 1108 m² grond
Beschrijving
Perceel bouwgrond (1108 m²) voor het bouwen van een alleenstaande woning in Semmerzake (Gavere)
Dit perceel bouwgrond is gelegen een een rustige straat in Semmerzake, Gavere.
Het perceel heeft een oppervlakte van 1108 m² en is bestemd voor het bouwen van een eengezinswoning.
Aarzel niet om ons te contacteren voor de volledige en gedetailleerde bouwvoorschriften.
Het perceel heeft een oppervlakte van 1108 m² en is bestemd voor het bouwen van een eengezinswoning.
Aarzel niet om ons te contacteren voor de volledige en gedetailleerde bouwvoorschriften.
Energie
Op de kaart

Financieel
| Prijs |
|---|
Berekening kosten
Je aankoopkosten? Die heb je snel berekent via de knop hieronder.
Bijkomende info
Perceel
| Totale oppervlakte (m²) | 1108 |
|---|
Uitrusting
| Investeringspand | Nee |
|---|
Een pand van
Dewaele Vastgoed
Dewaele Real Estate nv
Dewaele Real Estate nv
D9700-24105
Leer meer over vastgoed
24 November 2025
Uitgezocht voor jouw gemeente: Hoeveel stijgt de waarde van je woning door een renovatie?
22 October 2025
Hoeveel kan ik lenen om een huis te kopen?
11 June 2025
Huis kopen met bouwovertreding? Dit moet je weten
11 May 2025