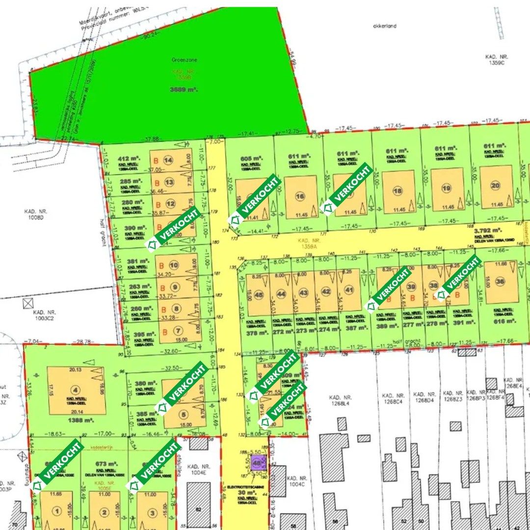
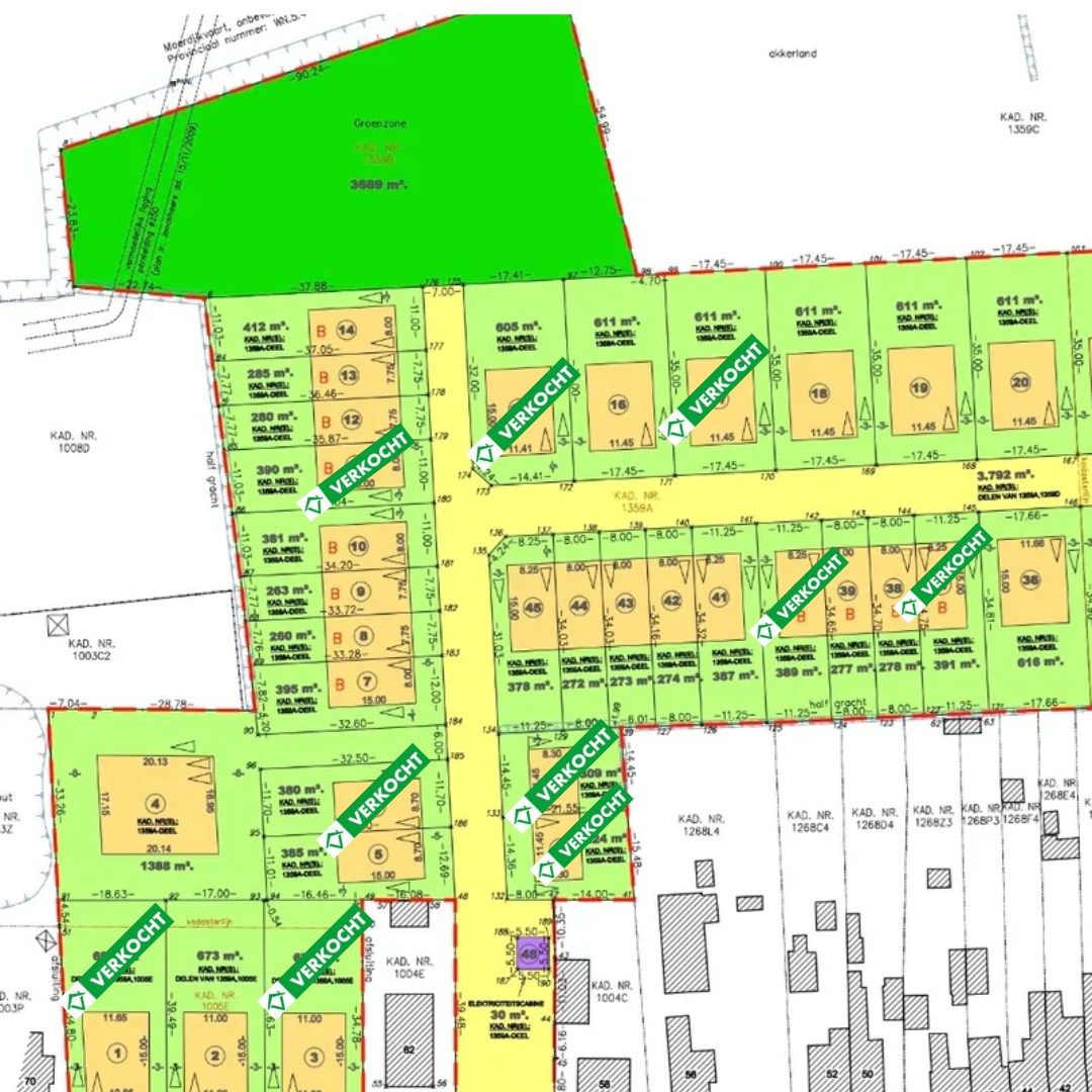
Huis te koop in Koekelare
Resultaten in Koekelare
- Te koop
- Huizen
69 panden gevonden - Pagina 4 van de 4
Relevantie
Relevantie
Dat zijn alle woningen in Koekelare. Hieronder vind je alle types woningen in de buurtgemeenten van Koekelare. Via de knop hiernaast krijg je een melding als er nieuwe huizen beschikbaar komen.





